Naverland 21-23
2600 Glostrup

Sagsnr. IP-24140

Ejendomstype

Etageareal

Energiklasse

1.005 m²

C

Årlig leje

Leje pr. m²

Depositum

Årlig driftsudgift

Årlig driftsudgift pr. m²

687.000 kr.

684 kr.

343.500 kr.

76.626 kr.

76 kr.

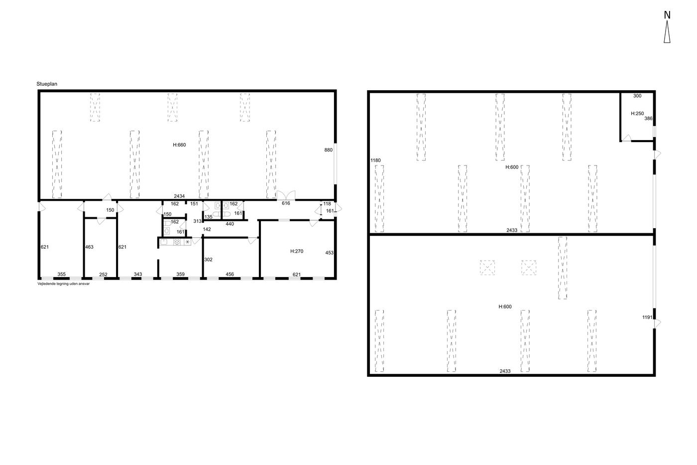
Lager- og kontorlejemål i attraktivt erhvervsområde

Vi præsenterer et attraktivt lejemål på Naverland 21-23 i Glostrup, der rummer 794 m² højloftet lager og 177 m² kontor. Dette lejemål er perfekt til virksomheder, der har behov for både opbevarings- og kontorfaciliteter under ét tag. Det højloftede lager giver optimal udnyttelse af pladsen og er ideelt til effektiv håndtering af varer, hvilket muliggør en fleksibel og funktionel opbevaring. Beliggenheden i Glostrup er yderst strategisk, da den tilbyder nem adgang til motorvejsnettet samt offentlig transport, hvilket gør det nemt for både medarbejdere og kunder at komme til og fra. Dette lejemål er derfor en ideel løsning for virksomheder, der ønsker en kombination af lager- og kontorfaciliteter med høj synlighed og tilgængelighed.

Vi ser frem til at præsentere lejemålet for jer og besvare eventuelle spørgsmål, I måtte have.

Læs mere

Vil du vide mere?

Ida Marie Pontoppidan

ipo@nordicals.dk

+45 5385 4083

Vesterbrogade 10, 4. sal, 1620 København V

+45 7788 2020

1620@nordicals.dk

Besøg vores mæglerside

Lignende ejendomme

Til top