Hørskætten 9, st., Klovtofte
2630 Taastrup

Sagsnr. 12-9367

Ejendomstype

Etageareal

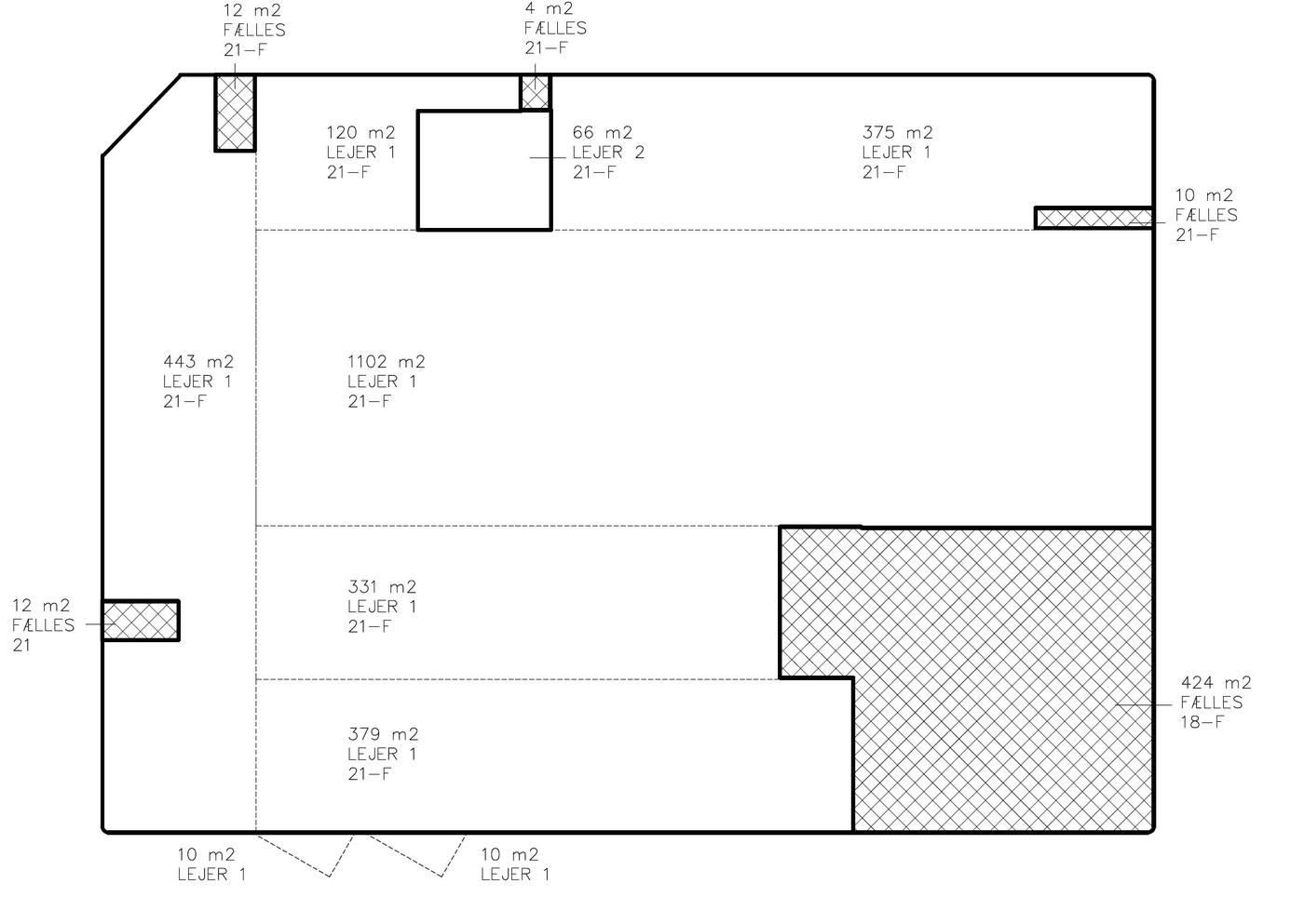
3.057 m²

Årlig leje

Leje pr. m²

Depositum

Årlig driftsudgift

Årlig driftsudgift pr. m²

2.139.900 kr.

700 kr.

1.069.950 kr.

426.510 kr.

140 kr.

3.057 m² kombineret lager og kontor

Dette store og funktionelle erhvervslejemål på 3.057 m² udbydes nu til leje i det eftertragtede erhvervskvarter i Klovtofte, Taastrup. Lejemålet består af en kombination af regulære lagerfaciliteter og velindrettede kontorlokaler, hvilket gør det særdeles velegnet til virksomheder med behov for både administration og logistik under samme tag.

Lagerdelen har god loftshøjde og er forsynet med to læsseramper, som sikrer nem og effektiv adgang for lastbiler, hvilket gør lejemålet ideelt til distribution, varehåndtering og lettere produktion. Kontordelen er indrettet med lyse og brugbare rum, der giver gode arbejdsvilkår for medarbejdere, og som kan tilpasses efter behov.

Ejendommen har gode tilkørselsforhold, med let adgang til det overordnede motorvejsnet, hvilket sikrer hurtig forbindelse til både København og resten af Sjælland. Området er veludbygget med erhvervsaktører og understøtter en effektiv drift med nem adgang for både medarbejdere, kunder og leverandører.

Lejemålet fremstår som en stærk mulighed for virksomheder, der ønsker rummelige og logistisk optimale rammer i et etableret erhvervsmiljø med central beliggenhed i Storkøbenhavn.

Kontakt os for yderligere information eller for at arrangere en fremvisning.

Læs mere

Vil du vide mere?

Jakob Mygind

jmy@nordicals.dk

+4541400030

Askvang 4, st., 3400 Hillerød

+4570230047

3400@nordicals.dk

Besøg vores mæglerside

Lignende ejendomme

Til top