Mårkærvej 5-9
2630 Taastrup

Sagsnr. 12-9120

Ejendomstype

Etageareal

1.898 m²

Rummeligt erhvervslejemål med lager, kontor og gode tilkørselsforhold

På Mårkærvej 5 udbydes dette højloftede lager med dertilhørende kontorlokaler til leje. Erhvervslejemålet placerer sig i et attraktivt industriområde i Taastrup med hurtige ankomstmuligheder, så her kan man virkelig tale om at indretning og beliggenhed tilsammen går op i en højere enhed.

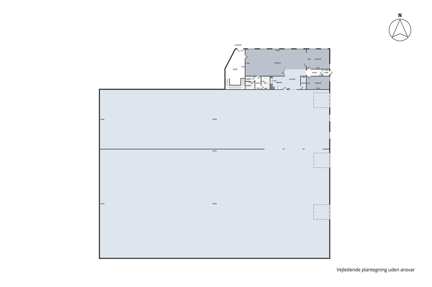
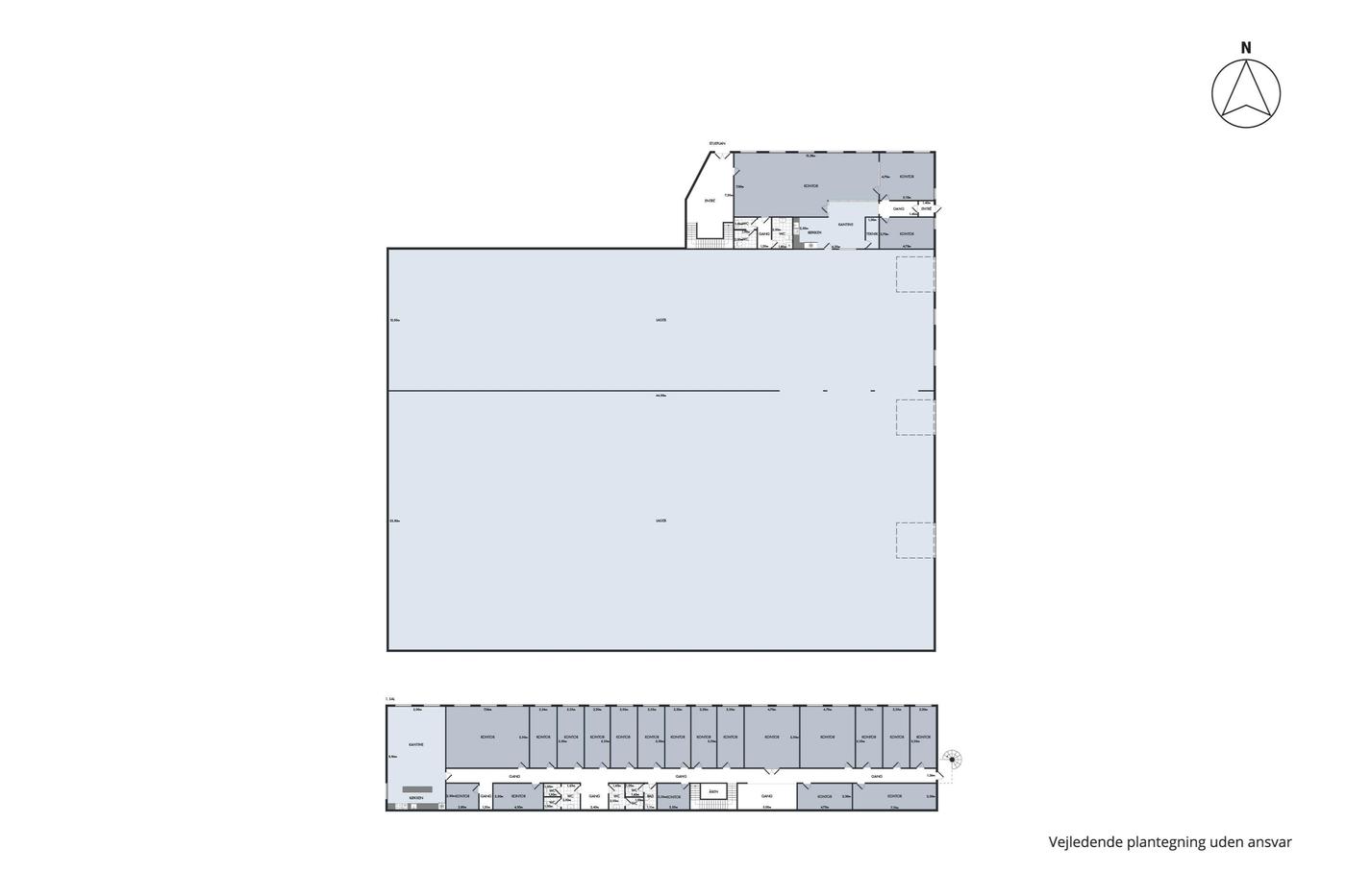
Så snart I drejer af ved matriklen, vil den store bygning åbenbare sig for jeres øjne. Jeres kommende kontor præsenterer sig som en klassisk industriejendom med en velholdt facade og kvadratiske vinduer i hvide rammer. Langs siderne ser I de mange parkeringspladser, og så er der flere porte ind til lageret, hvilket gør vareleveringen og -afhentningen både nem og bekvem. Indendørs venter over 2.000 kvadratmeter fordelt på to plan: Stueplan rummer de store og højloftede lagerlokaler samt flere kontorrum og toiletter, hvortil førstesalen bidrager med yderligere kontorlokaler, en kantine, en række toiletter og et badeværelse. Hver og en afdeling er fint vedligeholdt med et dejligt lysindfald, og så er der en god fordeling af lageret og kontorrummene med plads til mange medarbejdere. Erhvervslejemålet egner sig altså perfekt til jer, der ønsker at have administration og lager under ét og samme tag.

Fra adressen er der nem adgang til både motorvejen og offentlig transport. Nærmeste afkørsel ligger blot 1,6 kilometer herfra, og så er der hhv. 100 meter og 1,5 kilometer til nærmeste busstoppested og S-togsstation med gode forbindelser til det resterende Storkøbenhavn. I bliver desuden en del af et attraktivt og velbesøgt industriområde, hvor arbejdsdagen præges af et ambitiøst nærmiljø.

Læs mere

Denne ejendom er udlejet

Vil du vide mere?

Christian Jessen

chj@nordicals.dk

+4540518040

Askvang 4, st., 3400 Hillerød

+4570230047

3400@nordicals.dk

Besøg vores mæglerside

Lignende ejendomme

Til top