Vandmestervej 40
2630 Taastrup

Sagsnr. 11821291

Ejendomstype

Etageareal

Grund

510 m²

1.808 m²

Værksted til salg i Taastrup syd

Sjældent udbudt værksted i Taastrups sydlige erhvervskvarter.

Nu er det muligt at blive "herre i eget hus" og købe dette værksted.

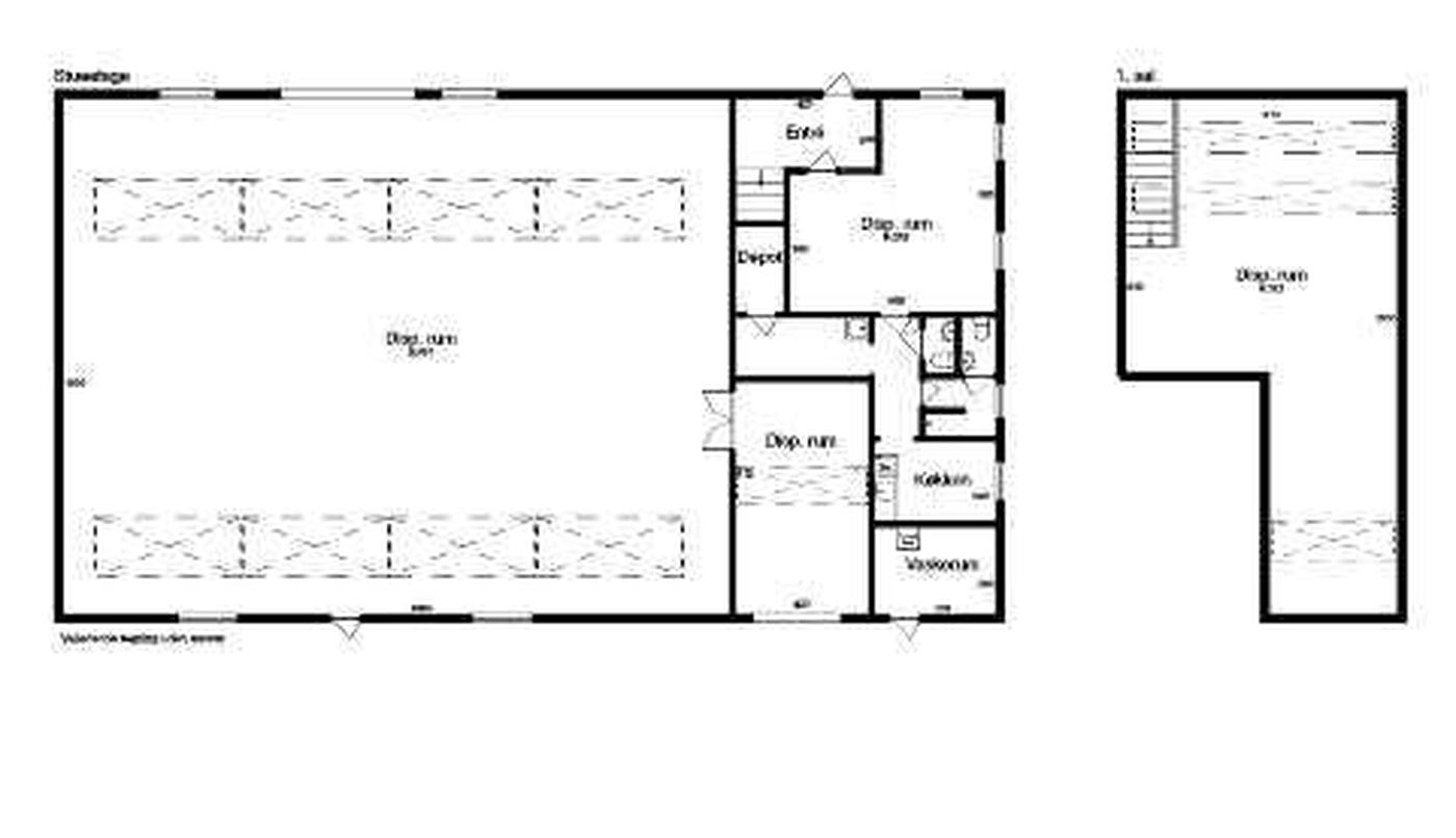
Ejendommen er indrettet med et stort åbent værksted, hvor der er 4-6 meter til loftet og med port. Der er videre adgang til et mindre værksted med egen port, mandskabsrum, kontor samt frokoststue.

Der er olieudskiller på grunden, som er indhegnet og belagt med SF-sten og asfalt.

Læs mere

Denne ejendom er solgt

Vil du vide mere?

Tonny Olsen

ton@nordicals.dk

+45 2020 7268

Allehelgensgade 8 , 4000 Roskilde

+45 4635 2292

4000@nordicals.dk

Besøg vores mæglerside

Lignende ejendomme

Til top