Ishøj Søndergade 19B
2635 Ishøj

Sagsnr. TH-24092

Ejendomstype

Etageareal

Energiklasse

342 m²

E

Årlig leje

Leje pr. m²

Depositum

324.900 kr.

950 kr.

162.450 kr.

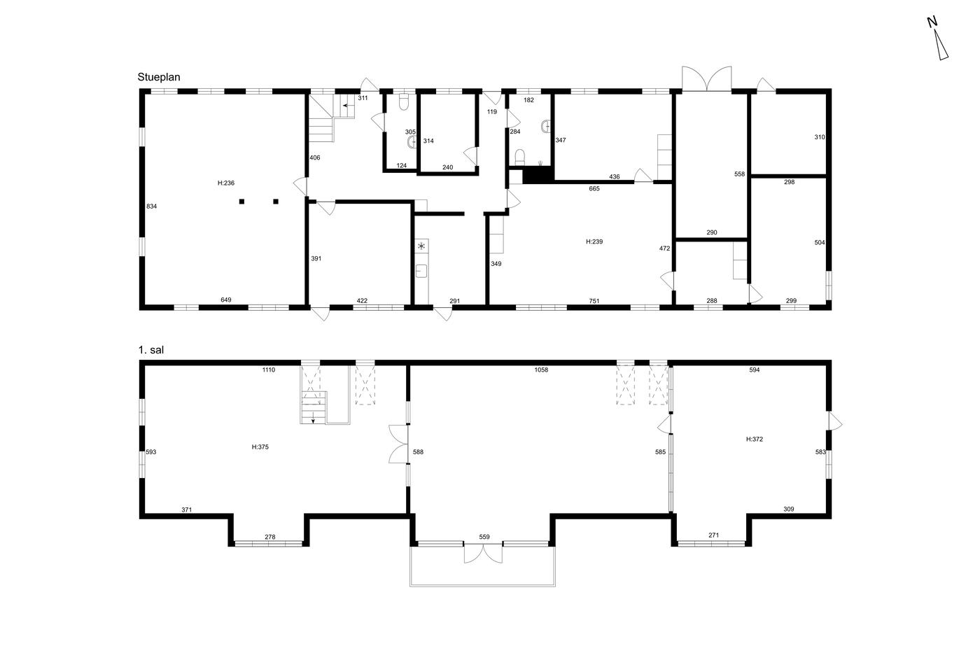
Kontorer i grønne omgivelser - masser af parkering

342 kvm veldisponerede kontorer i grønne omgivelser.

Indgangsparti med toilet og trappe til 1. sal.
Stueplan indeholder 3 mindre kontorer med plads til 1-2 medarbejdere. 2 større kontorer med hver plads til 3-4 medarbejdere.
Lagerlokale, køkken med plads til at nyde frokosten. Udgang til en terrasse, hvor man kan nyde de grønne omgivelser i sommerhalvåret.
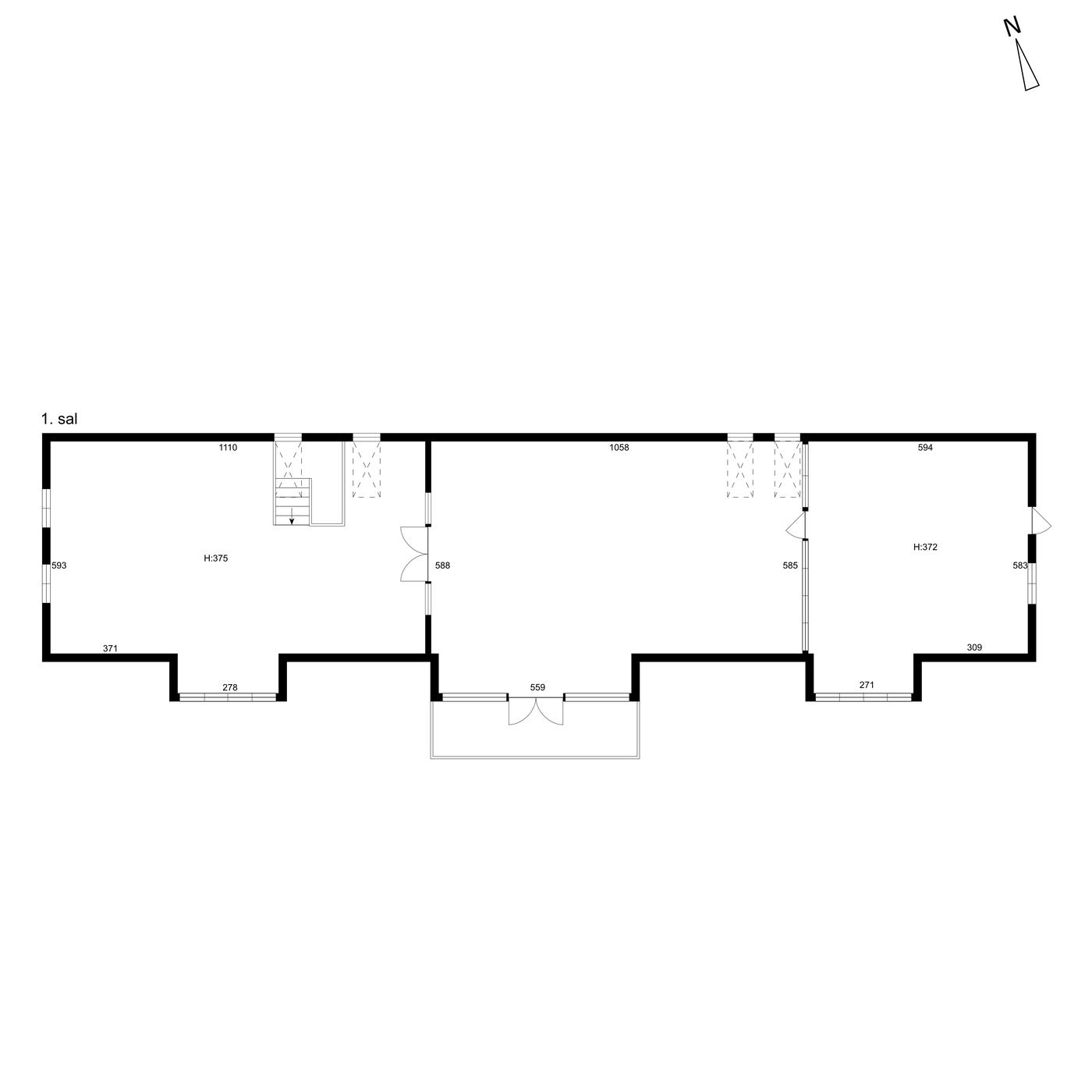
1. sal åbent med mulighed for 4-6 medarbejdere. Konferencelokale og mulighed for yderligere kontor.

Såfremt man ønsker ændringer, kan det ske efter aftale.

Ejendommen ligger i forbindelse med golfbane og masser af grønne omgivelser.
Ejendommen har tidligere været en gård, der nu er istandsat til kontorer.

Der er parkering i forbindelse med ejendommen.

Tæt på motorvejsnettet og København.

Læs mere

Vil du vide mere?

Martin Norup

mno@nordicals.dk

+45 5352 9931

Vesterbrogade 10, 4. sal, 1620 København V

+45 7788 2020

1620@nordicals.dk

Besøg vores mæglerside

Lignende ejendomme

Til top