Guldalderen 28A, Fløng
2640 Hedehusene

Sagsnr. 20825153

Ejendomstype

Etageareal

Energiklasse

735 m²

C

Årlig leje

Leje pr. m²

Depositum

580.000 kr.

789 kr.

290.000 kr.

Velholdt ejendom i Fløng

Velholdt ejendom - optimal til f.eks. fødevarer.

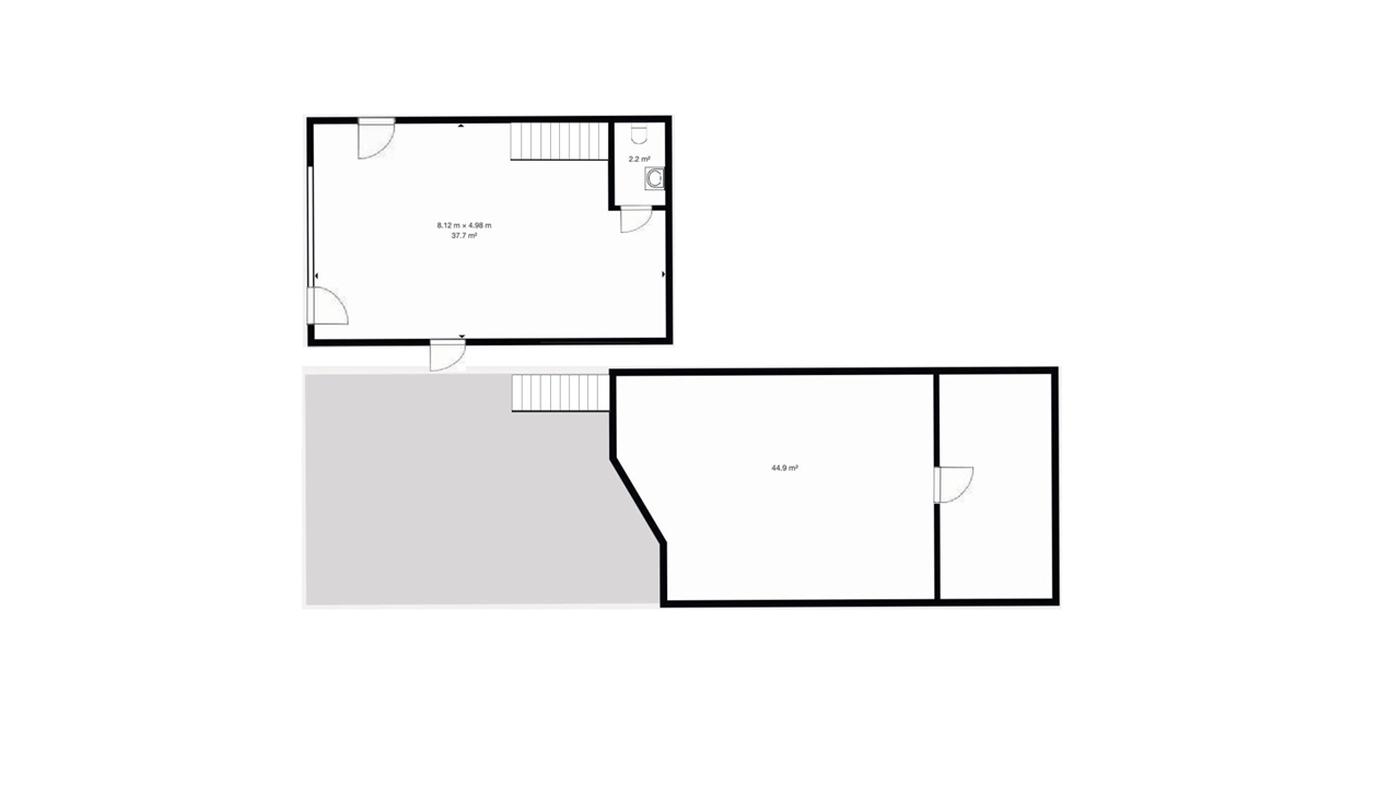
Ejendommen er indrettet med god port ind til nyere køle- og fryselager på ca. 575 m2, hertil moderne administration, med storrumskontor, mødelokaler, toiletter og køkken.

Der er indlagt 3x160 AMP på ejendommen.

Grunden, der deles med naboen, er belagt med SF-sten og indhegnet.

Ejendommen ligger lige ved motorvejsafkørsel 8 Fløng på Holbækmotorvejen.

Læs mere

Vil du vide mere?

Tonny Olsen

ton@nordicals.dk

+45 2020 7268

Allehelgensgade 8 , 4000 Roskilde

+45 4635 2292

4000@nordicals.dk

Besøg vores mæglerside

Lignende ejendomme

Til top