Stendraget 4, Nærheden
2640 Hedehusene

Sagsnr. 20823115

Ejendomstype

Etageareal

Energiklasse

198 m²

A2020

Årlig leje

Leje pr. m²

Depositum

257.400 kr.

1.300 kr.

128.700 kr.

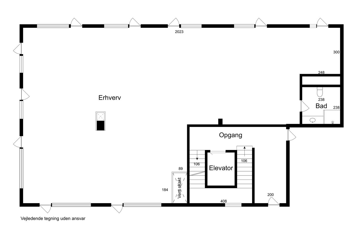
Unik mulighed for cafe, butik eller klinik lige ved stationen

Ønsker du en butik, klink eller cafe beliggende i et nybygget bolig og erhvervsområde "Nærheden" lige ved Hedehusene station - så er der her en unik mulighed. Lejemålet kan istandsættes efter lejers ønske.

Området er opført med bolig, erhverv, rekreative områder, skole, institutioner samt en hovedsti, der forbinder de enkelte områder, så det er nemt at færdes rundt i området.

På modsatte side af stationen ligger den hyggelige hovedgade, hvor der både findes indkøbsmuligheder, cafeer og restauranter.

Blot 2 km. fra lejemålet er det muligt at komme på Holbækmotorvejen og 10 min. senere være i City2 i Høje Taastrup eller på Ros' Torv i Roskilde.

Ønsker du at gå en tur i det skønne Hedeland ligger dette blot 4 km. væk, hvor det også er muligt at besøge Hedelands Golfklub.

Læs mere

Vil du vide mere?

Tonny Olsen

ton@nordicals.dk

+45 2020 7268

Allehelgensgade 8 , 4000 Roskilde

+45 4635 2292

4000@nordicals.dk

Besøg vores mæglerside

Lignende ejendomme

Til top