Mileparken 20E 2.
2740 Skovlunde

Sagsnr. 12-9177

Ejendomstype

Etageareal

Energiklasse

722 m²

C

Stor kontorejendom med masser af lys og gode faciliteter

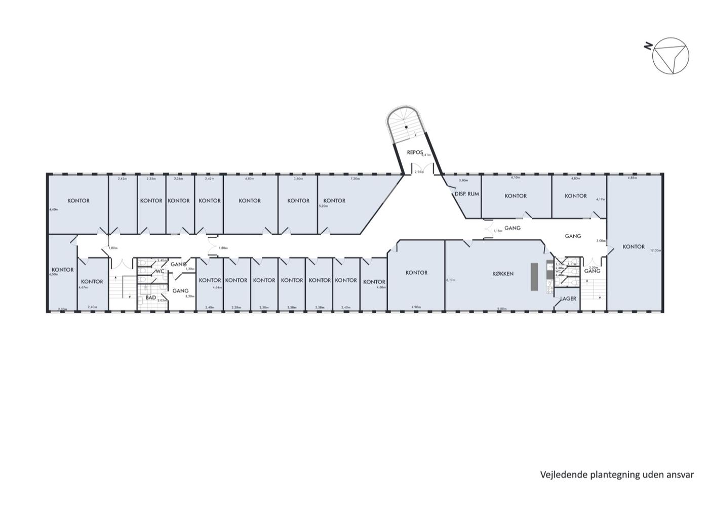
På anden sal i denne velplacerede ejendom får I nu muligheden for at skabe nogle optimale rammer om jeres fremtidige arbejdsliv. Her er nemlig plads til kollegialt fællesskab såvel som fordybelse, og de mange kontorer og gode faciliteter bliver hurtigt klar til brug.

Lejemålet kræver dog først en modernisering, men udlejer er åben for at hjælpe jer ordentligt på plads, og udgangspunktet er både godt og lyst. Der er uden tvivl gode rammer for selv den store virksomhed, for hele 21 kontorer af varierende størrelse står til jeres rådighed. De forbindes af et stort gangareal med tre indgangspartier, der ydermere åbner op til et dejligt og rummeligt spisekøkken med køkkenø og spisekammer, mens der også er mere opbevaringsplads i det disponible rum overfor. Der er derudover etableret toiletfaciliteter i begge ender af lejemålet med tre toiletter i den ene side og tre toiletter samt et badeværelse i den anden.

Den gode indretning suppleres af et virkelig skønt lysindfald. Ejendommen ligger nemlig helt uden tætliggende naboer, så der ikke er nogle bygninger, der skygger for solen. Ude foran er der ydermere rigtig gode parkeringsmuligheder og ikke mindst et hyggelig udeområde med græsplæne og bordebænkesæt.

Beliggenheden fuldender det gode indtryk, da adressen ligger attraktivt i Skovlunde i et veletableret erhvervsområde med mange andre større virksomheder. Man forstår godt, hvorfor området er blevet populært, for der er nem adgang til vejnettet, der giver jer kort køreafstand til hele Storkøbenhavn, og så ligger Vestskoven bare 400 meter væk med mulighed for frisk luft og grønne omgivelser efter en lang arbejdsdag. Slutteligt er der gode forbindelser med offentlig transport, da bussen stopper fire minutter fra ejendommen og kører til Herlev St. på 10 minutter.

Læs mere

Denne ejendom er udlejet

Vil du vide mere?

Jakob Mygind

jmy@nordicals.dk

+4541400030

Askvang 4, st., 3400 Hillerød

+4570230047

3400@nordicals.dk

Besøg vores mæglerside

Lignende ejendomme

Til top