Kongevejen 353, kl.
2840 Holte

Sagsnr. 12-9073B

Ejendomstype

Etageareal

Energiklasse

75 m²

D

Lyse og pæne erhvervslokaler

I Holte udbyder vi nu et erhvervslejemål med en god beliggenhed ud til Kongevejen. Lokalerne vil f.eks. egne sig til kontor, lager eller klinik og fremtræder i fin stand, så man nemt kan finde sig til rette.

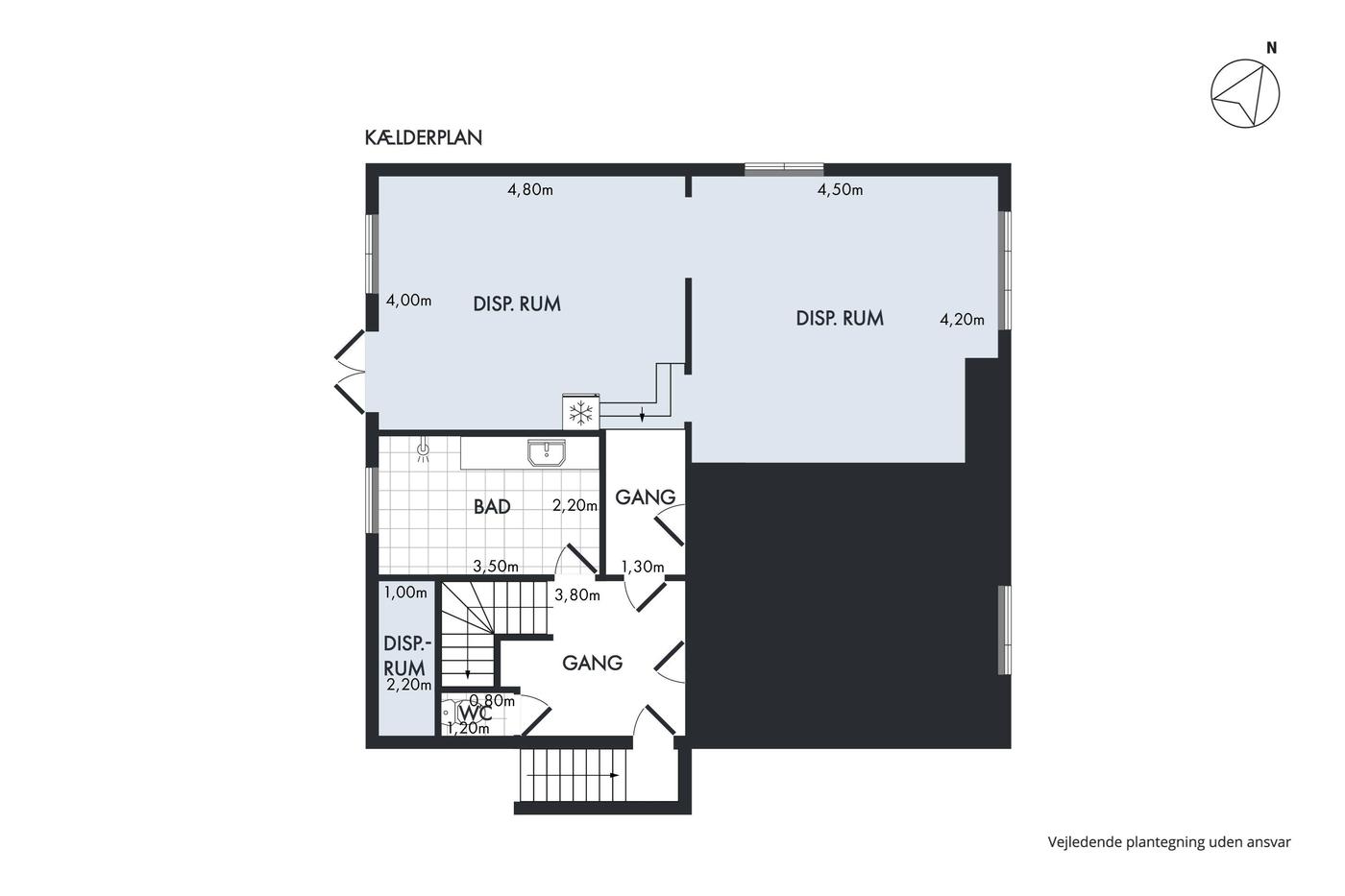
Den gode planløsning i kælderplan, giver mange anvendelsesmuligheder. Her kan man f.eks. indrette flere kontorer, klinikrum, opbevaringsløsninger eller noget helt tredje. I lejemålet får man tilmed praktiske faciliteter, såsom et badeværelse.
Kælderplan præsenterer sig i god stand med flere disponible rum der kan udnyttes efter eget ønske. Ejendommen har en fin synlighed, og da gaden er meget trafikeret, vil mange passere forbi erhvervslejemålet i løbet af dagen.

Med en placering i Holte bliver man en del af et attraktivt lokalområde, hvor mange ønsker at bosætte sig. Ejendommen er kun 500 meter fra Holte Midtpunkt, et bycenter med forretninger, indkøbsmuligheder og bibliotek m.m., og på den måde er der masser af liv i kvarteret. Kongevejen er en trafikal hovedåre, som man ikke kommer udenom, hvorfra det også er muligt at benytte den offentlige transport i form af bus.

Læs mere

Denne ejendom er udlejet

Vil du vide mere?

Jakob Mygind

jmy@nordicals.dk

+4541400030

Askvang 4, st., 3400 Hillerød

+4570230047

3400@nordicals.dk

Besøg vores mæglerside

Lignende ejendomme

Til top