Nærum Hovedgade 10
2850 Nærum

Sagsnr. 12-8465

Ejendomstype

Etageareal

Grund

Energiklasse

852 m²

15.531 m²

C

Virkelig flot lejemål kun 200 meter fra Helsingørmotorvejen

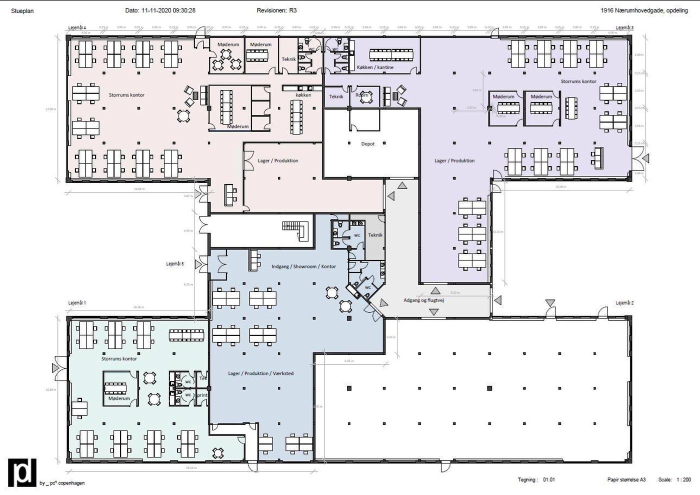
I denne ejendom, er der en sjælden mulighed for at kombinere behovet for kontor med lager og showroom. Du kan få det hele samlet på samme etage, og derved sørge for at samle både produktion, lager og kontor.
Lejer har stor indflydelse på, hvordan arbejdsfordelingen skal være imellem de enkelte aktiviteter.
Kontor og administration kan f.eks placeres helt naturlig langs facaderne, hvor de store vinduespartier sikrer et behageligt lysindfald.
Det er muligt at køre direkte til døre og porte og transportere varer ind og ud på pallevogn. Skal du bruge større faciliteter end det, så lad os drøfte mulighederne for at få det tilpasset dine behov
Loftshøjden bliver 2,83 meter efter nedtagning af nedsænkede lofter og 2,54 under drager.
Det ledige areal er placeret i stueetagen og kan kombineres på utallige måder.

Ejendommen er beliggende bare 200 meter fra Helsingørmotorvejens Nærum-afkørelsen men i fredelige omgivelser pænt tilbagetrukket fra trafikken. Der er parkering direkte omkring ejendommen og tillige fin adgang for varetransport.
Nærumbanens station er 600 meter fra ejendommen. Herfra kan man fange S-toget til Jægersborg Station samt bus 150S Nørreport - Kokkedal, samt en række andre buslinjer.
I nærområdet findes Nærumvænge Butikstorv, adskillige kontorvirksomheder og bilforhandlere.

Læs mere

Denne ejendom er udlejet

Vil du vide mere?

Jakob Mygind

jmy@nordicals.dk

+4541400030

Askvang 4, st., 3400 Hillerød

+4570230047

3400@nordicals.dk

Besøg vores mæglerside

Lignende ejendomme

Til top