Tobaksvejen 21, 1. tv. & 2. tv
2860 Søborg

Sagsnr. 12-9537

Ejendomstype

Etageareal

Energiklasse

918 m²

B

Årlig leje

Leje pr. m²

Depositum

Årlig driftsudgift

Årlig driftsudgift pr. m²

1.009.800 kr.

1.100 kr.

504.900 kr.

426.466 kr.

465 kr.

Moderne kontorrammer med skræddersyede indretningsmuligheder

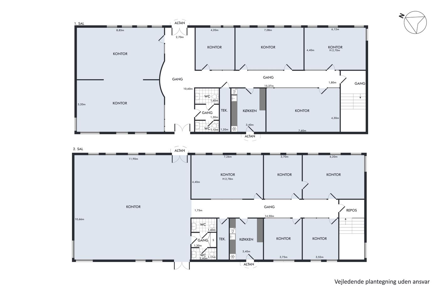
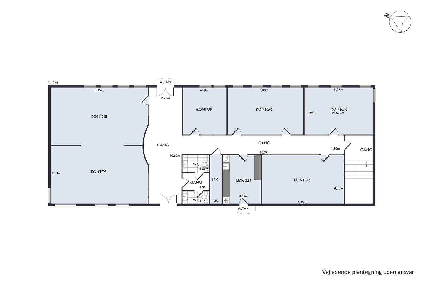
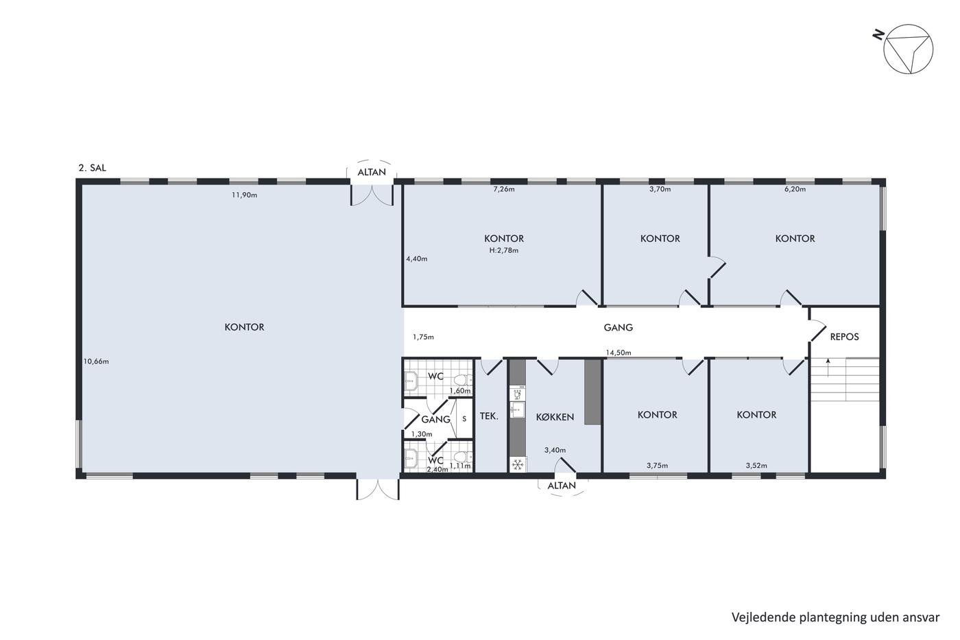
På Tobaksvejen 21 udbydes et attraktivt kontorlejemål fordelt på to etager i en ejendom, der netop er gennemrenoveret med moderne faciliteter, grønne udearealer og et stærkt erhvervsmiljø. Lejemålet giver en virksomhed mulighed for at indrette sig efter egne behov, da lokalerne kan moderniseres yderligere eller tilpasses efter nærmere aftale.

Lejemålet fremstår lyst og imødekommende med en fleksibel planløsning, der egner sig til både åbne kontorarealer, møderum og cellekontorer. Kombinationen af to etager skaber gode muligheder for at adskille funktioner, eksempelvis drift, ledelse eller projektarbejde, og indretningen kan tilpasses, så den understøtter virksomhedens daglige arbejdsgange.

Som lejer får man adgang til ejendommens fællesfaciliteter, herunder kantineordning, fitness med bad og omklædning, møde og loungeområder samt et opgraderet gårdmiljø med grønne opholdszoner og gode parkeringsforhold lige ved indgangen. Ejendommen ligger få minutter fra Ring 3 og Gladsaxe Ringvej, og den kommende Letbane vil yderligere styrke tilgængeligheden. Der er direkte adgang til letbanen via egen trappe fra ejendommen til ringvejen.

Et moderne, fleksibelt og velbeliggende lejemål, hvor virksomheden får mulighed for at skræddersy rammerne efter egne ønsker.

Læs mere

Vil du vide mere?

Christian Jessen

chj@nordicals.dk

+4540518040

Askvang 4, st., 3400 Hillerød

+4570230047

3400@nordicals.dk

Besøg vores mæglerside

Lignende ejendomme

Til top