Skelstedet 1A
2950 Vedbæk

Sagsnr. 12-8160A

Ejendomstype

Etageareal

Grund

1.134 m²

1.750 m²

STORE PRODUKTIONSLOKALER MED TILHØRENDE KONTOR

Nordicals formidler salget af denne spændende ejendom.
Skelstedte 1A er i en utrolig flot stand og benyttes af sælger selv til produktion samt kontor.
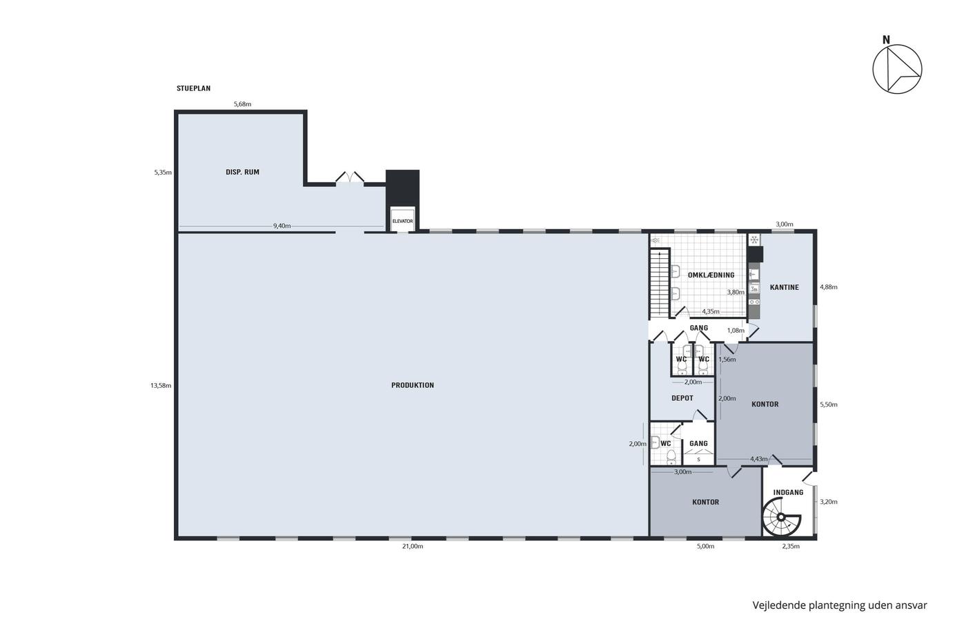
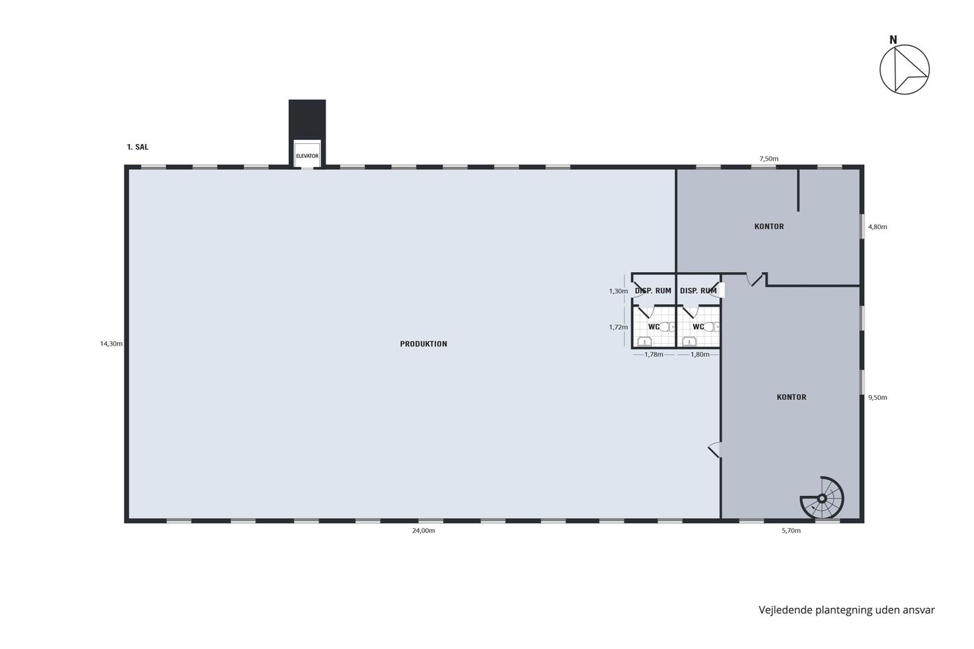
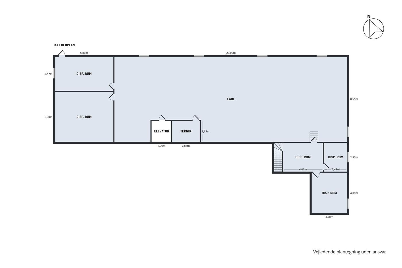
De mange, veldisponerede kvadratmeter fordeler sig over kælder- og stueplan samt Der er en vare elevator i bygningen, som sikre at både 1. sal og kælder er fuldt anvendelige. Ejendommen byder indenfor i stueetagen, som byder på et stort produktionslokale, et disponibelt rum, kantine, to kontorer, omklædningsrum og toilet. 1. salen rummer endnu et produktionslokale, to kontorer og to toiletter kontorerne på 1. sal kan nedlægges og arealet kan blive lagt til lager/produktions lokalet. Dertil kommer kælderen med fem disponible rum og et stort opbevaringsrum. Mulighederne er mange - og vi byder gerne indenfor på en fremvisning. På bygningen er tag og ovenlysvinduer for nyligt skiftet, samt ejendommen har fået helt nyt gasfyr.
Ejendommen har et fint og klassisk arkitektonisk udtryk, og den ligger på en lukket grund, som tæller 1.750 kvadratmeter. Erhvervsmålet udgør de fleste kvadratmeter, men på grunden får du naturligvis også af- og pålæsningsområder. Samtidig er der gode parkeringsmuligheder for både ansatte og kunder, hvilket er meget praktisk. Beliggenheden følger trop og er mindst lige så attraktiv, som erhvervet i sig selv. Her befinder du dig i et attraktivt industrikvarter i Trørød, som ligger tæt på mange af Nordsjællands store byer. Infrastrukturen er i top - og der er ikke andet end 900 meter til motorvejen, hvilket må siges at være et stort plus.

Læs mere

Denne ejendom er solgt

Vil du vide mere?

Jakob Mygind

jmy@nordicals.dk

+4541400030

Askvang 4, st., 3400 Hillerød

+4570230047

3400@nordicals.dk

Besøg vores mæglerside

Lignende ejendomme

Til top