Ambolten 8
2970 Hørsholm

Sagsnr. 12-9457

Ejendomstype

Etageareal

Grund

Energiklasse

537 m²

900 m²

C

Kontantpris

Købspris pr. m²

Årlig driftsudgift

Årlig driftsudgift pr. m²

7.000.000 kr.

13.035 kr.

78.498 kr.

146 kr.

Fleksibel erhvervsejendom med port, kontor og lager

Nu udbydes denne velholdte og alsidige erhvervsejendom i det eftertragtede erhvervskvarter i Hørsholm - og endda til en ny og mere attraktiv pris. Ejendommen består af i alt 537 m² fordelt på to plan og er opført i 1989. Den rummer både kontor-, showroom- og lagerfaciliteter og kan nemt tilpasses forskellige behov - uanset om du er bruger, investor eller ønsker kombinationen.

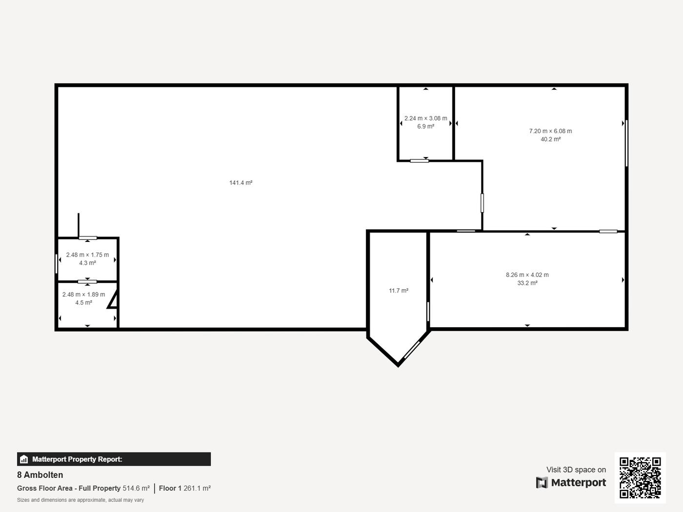
I stueetagen finder du et præsentabelt kontorområde, et rummeligt showroom og et lagerlokale med tilhørende port, som giver nem adgang for varelevering og logistik. Herudover er der adgang til både et moderne tekøkken og et badeværelse med bruseniche. Indretningen muliggør let opdeling eller samling af funktionerne, alt efter om man ønsker et åbent kontorlandskab eller separat lager og administration.

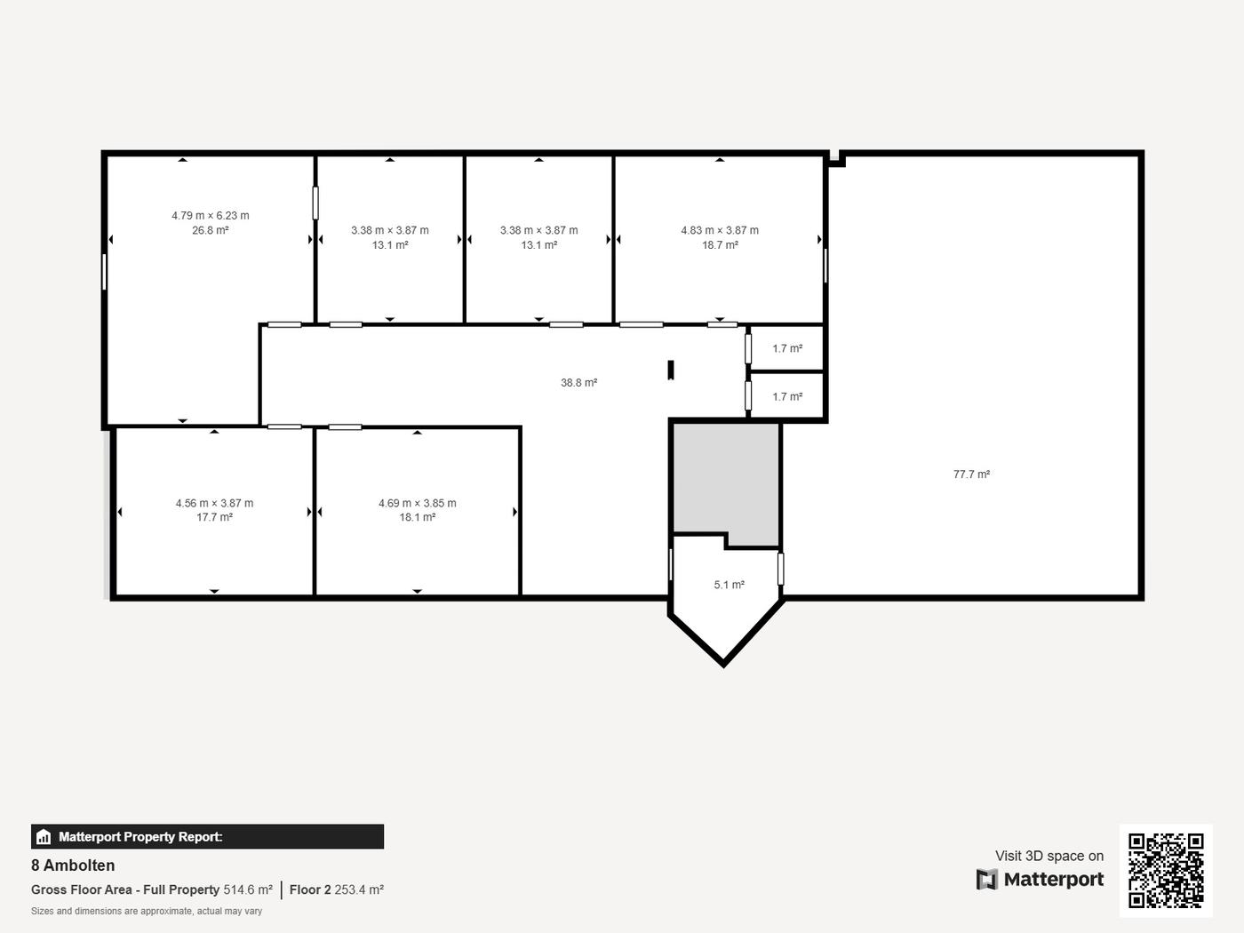
På 1. salen er der seks lyse kontorer i forskellige størrelser, to toiletter samt et større fælleskøkken med plads til spiseområde - oplagt som frokostrum, mødelokale eller social zone. De to etager fungerer fint samlet til én virksomhed, men kan også benyttes separat, hvis man ønsker at udleje en del eller opdele i flere enheder.

Ejendommen fremstår i god og indflytningsklar stand og er løbende vedligeholdt. Der er gode parkeringsmuligheder på grunden, og området byder på nærhed til både detailhandel, dagligvarebutikker og spisesteder. Kokkedal Station ligger kun ca. 1 km væk, og med E47 få hundrede meter fra adressen er tilkørselsforholdene optimale - både mod København og Helsingør.

Ejendommen er ideel for virksomheder, der ønsker kombinationen af kontor og lager, og som sætter pris på fleksibilitet, synlighed og tilgængelighed. Den integrerede portadgang giver klare fordele for driftsfunktioner, og det rummelige layout giver plads til vækst, opdeling eller optimering.

Prøv en virtuel fremvisning her: https://my.matterport.com/show/?m=pFWfnPQTcKy

Læs mere

Vil du vide mere?

Jakob Mygind

jmy@nordicals.dk

+4541400030

Askvang 4, st., 3400 Hillerød

+4570230047

3400@nordicals.dk

Besøg vores mæglerside

Lignende ejendomme

Til top