Blichersvej 57B+C
3000 Helsingør

Sagsnr. 12-8261

Ejendomstype

Etageareal

Grund

Energiklasse

554 m²

1.353 m²

E

Erhvervslejemål med god synlighed og super planløsning

På Blichersvej 57B+C i Helsingør har vi fornøjelsen af at udbyde dette erhvervslejemål, der er ideel som butik.

Lokalerne ligger lige ved et hjørne, hvor der er masser af synlighed fra gadeplan. Facaden er pudset og der er nogle store vinduer, der nemt kan udstilles med butikkens bedste varer og tilbud, som hurtigt giver et indblik i udvalget og lokker folk indenfor. Den lille plads foran butikken har gode parkeringsmuligheder til både biler og cykler.

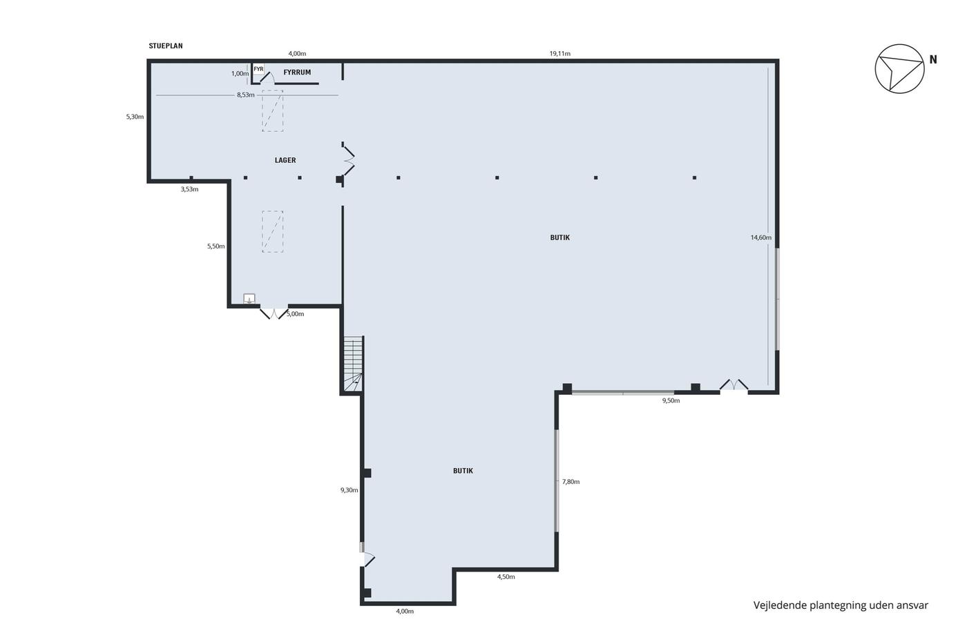
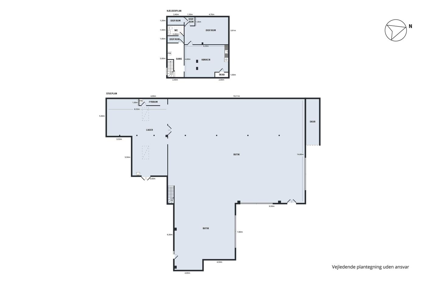
Lejemålet fordeler sig over 554 etagemeter, som er aldeles veludnyttet. I får to etager og en velindrettet planløsning, der nemt kan tilpasses efter jeres ønsker og behov. Selve butikken ligger som et stort og indbydende rum i stueetagen, hvor der er masser af plads til hylde- og stativvarer, kolonialvarer og friske grøntsager - alt efter, hvilken butik I vil drive. Tilstødende er der et stort lagerlokale med tilhørende fyrrum. Bevæger vi os ned i kælderen, så finder vi flere disponible rum, toiletfaciliteter og et grovkøkken, der egner sig godt som personalestue. Kælderens samlede areal udgør 86 m².

Lejemålet har et stort potentiale og beliggenheden er attraktiv. Med en let istandsættelse vil det store butikslokale hurtigt fremstå indbydende.

Kontakt os for en fremvisning, og oplev de mange muligheder med egne øjne.
Vi glæder os til at byde jer velkommen.

Læs mere

Denne ejendom er udlejet

Vil du vide mere?

Askvang 4, st., 3400 Hillerød

+4570230047

3400@nordicals.dk

Besøg vores mæglerside

Lignende ejendomme

Til top