Bramstræde 7B, st.
3000 Helsingør

Sagsnr. 12-9441

Ejendomstype

Etageareal

Energiklasse

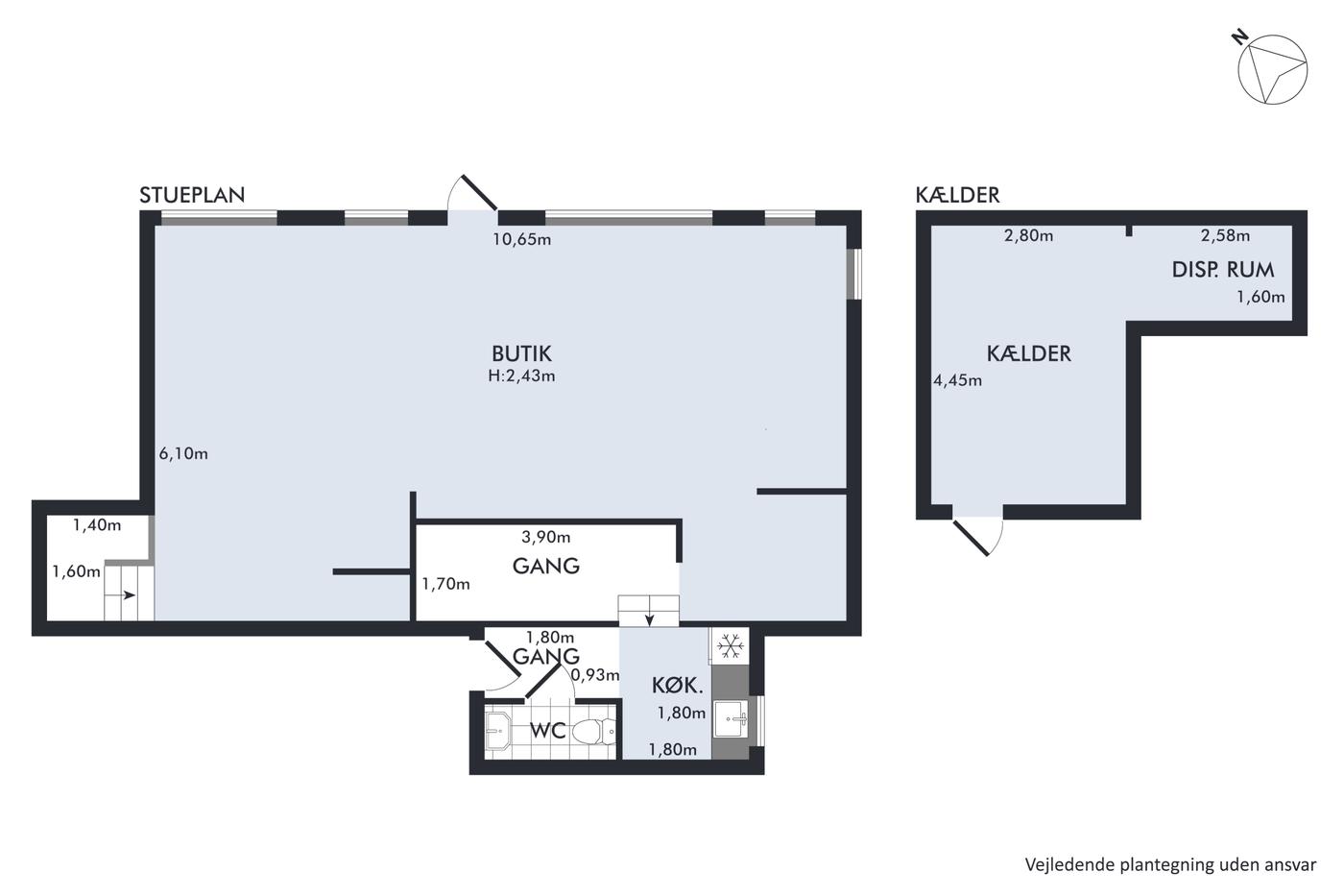
132 m²

D

Årlig leje

Leje pr. m²

Depositum

Årlig driftsudgift

Årlig driftsudgift pr. m²

86.000 kr.

652 kr.

43.000 kr.

25.476 kr.

193 kr.

Butikslejemål i charmerende gade i Helsingør

Der tilbydes en opstartsrabat, hvor lejen frem til 01.07 udgør halv leje, svarende til kr. 86.000 årligt (ca. kr. 7.166 pr. måned).
Fra 01.07 reguleres lejen til den fulde årlige leje på kr. 172.000 (ca. kr. 14.333 pr. måned), så en ny lejer får gode forudsætninger for at komme i gang i lejemålet.

I en af Helsingørs hyggeligste og mest levende handelsgader udbydes nu et spændende lejemål på Bramstræde 7B. Lejemålet har en markant facade med store vinduespartier, der sikrer et fremragende lysindfald og gode udstillingsmuligheder - ideelt for virksomheder, der ønsker at være synlige i gadebilledet.

De 112 m² i stueplan er indrettet som ét stort, lyst og fleksibelt butikslokale med god lofthøjde og plads til individuel indretning. Bagest i lokalet findes et praktisk køkken, toilet samt adgang til ekstra opbevaringsplads i kælderen, der udgør yderligere 20 m² - perfekt til lager, arkiv eller baglokale.

Ejendommens fine murstensfacade og nærhed til både Helsingør Station og Stengade gør placeringen særdeles attraktiv - både for forbipasserende, faste kunder og turister. Lejemålet egner sig til alt fra detail og showroom til klinik, galleri eller livsstilskoncept.

Med et åbent og letindretteligt rum, diskrete bagfaciliteter og en beliggenhed i hjertet af Helsingør, får du her rammerne til at skabe en butik eller erhvervsdrift med karakter og synlighed.

Læs mere

Vil du vide mere?

Lignende ejendomme

Til top