Bakkegårdsvej 509
3050 Humlebæk

Sagsnr. 12-9463

Ejendomstype

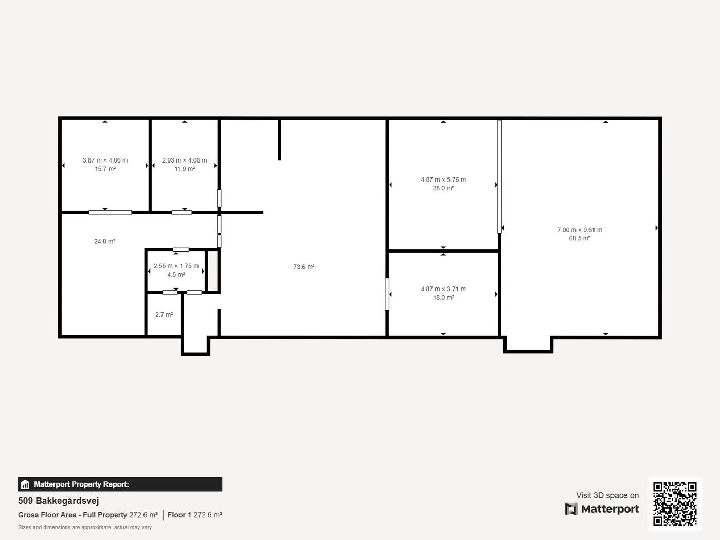
Etageareal

270 m²

Årlig leje

Leje pr. m²

Depositum

216.000 kr.

800 kr.

108.000 kr.

Attraktivt lager- og kontorlejemål med port og præsentable faciliteter

Nu udlejes et funktionelt og præsentabelt lager- og kontorlejemål på attraktiv beliggenhed i Humlebæk. Lejemålet rummer en god kombination af lager med portadgang og lyse, moderne kontor- og mødefaciliteter - ideelt for virksomheder, der har behov for logistik, administration og præsentabel kunde- eller medarbejdermodtagelse samlet ét sted.

Lagerdelen har egen port og egner sig til lettere produktion, opbevaring eller varemodtagelse. De tilhørende kontorer fremstår moderne med trægulve, store vinduespartier og gode indretningsmuligheder. Herudover er der et indbydende mødelokale samt funktionelt køkken og toiletforhold.

Ejendommen ligger i et roligt og velfungerende erhvervskvarter med nem adgang til Helsingørmotorvejen og kort afstand til både Humlebæk Station og byens centrum. Der er gode parkeringsmuligheder lige ved døren, hvilket gør adgangen nem for både medarbejdere og besøgende.

Et oplagt valg til virksomheder, der ønsker præsentable rammer og praktisk funktionalitet i naturskønne og tilgængelige omgivelser. Få en virtuel tour via linket her: https://my.matterport.com/models/xkVoZccsW2p

Læs mere

Vil du vide mere?

Jakob Mygind

jmy@nordicals.dk

+4541400030

Askvang 4, st., 3400 Hillerød

+4570230047

3400@nordicals.dk

Besøg vores mæglerside

Lignende ejendomme

Til top