Aa.Louis-Hansens Alle 14
3060 Espergærde

Sagsnr. 12-9147A

Ejendomstype

Etageareal

1.129 m²

Årlig leje

Leje pr. m²

Depositum

Årlig driftsudgift

Årlig driftsudgift pr. m²

784.655 kr.

695 kr.

392.328 kr.

75.000 kr.

66 kr.

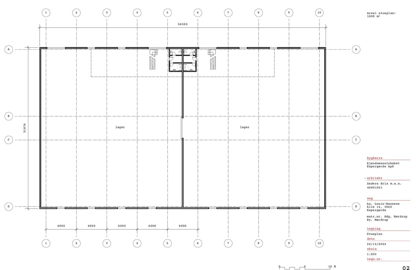
Højloftet lager i Espergærdes industriområde

Vi præsenterer her et topmoderne og indflytningsklart erhvervslejemål beliggende i det eftertragtede industriområde i Espergærde. Lejemålet fremstår helt færdigt og klar til overtagelse, og rummer en optimal kombination af højloftet lager, funktionelle kontorer og gode personalefaciliteter.

I stueplan finder man et højloftet og regulært lagerareal med god arbejds- og opbevaringshøjde. Herudover er der etableret toilet og badefaciliteter, samt en praktisk port, der giver nem adgang for varelevering og logistik.

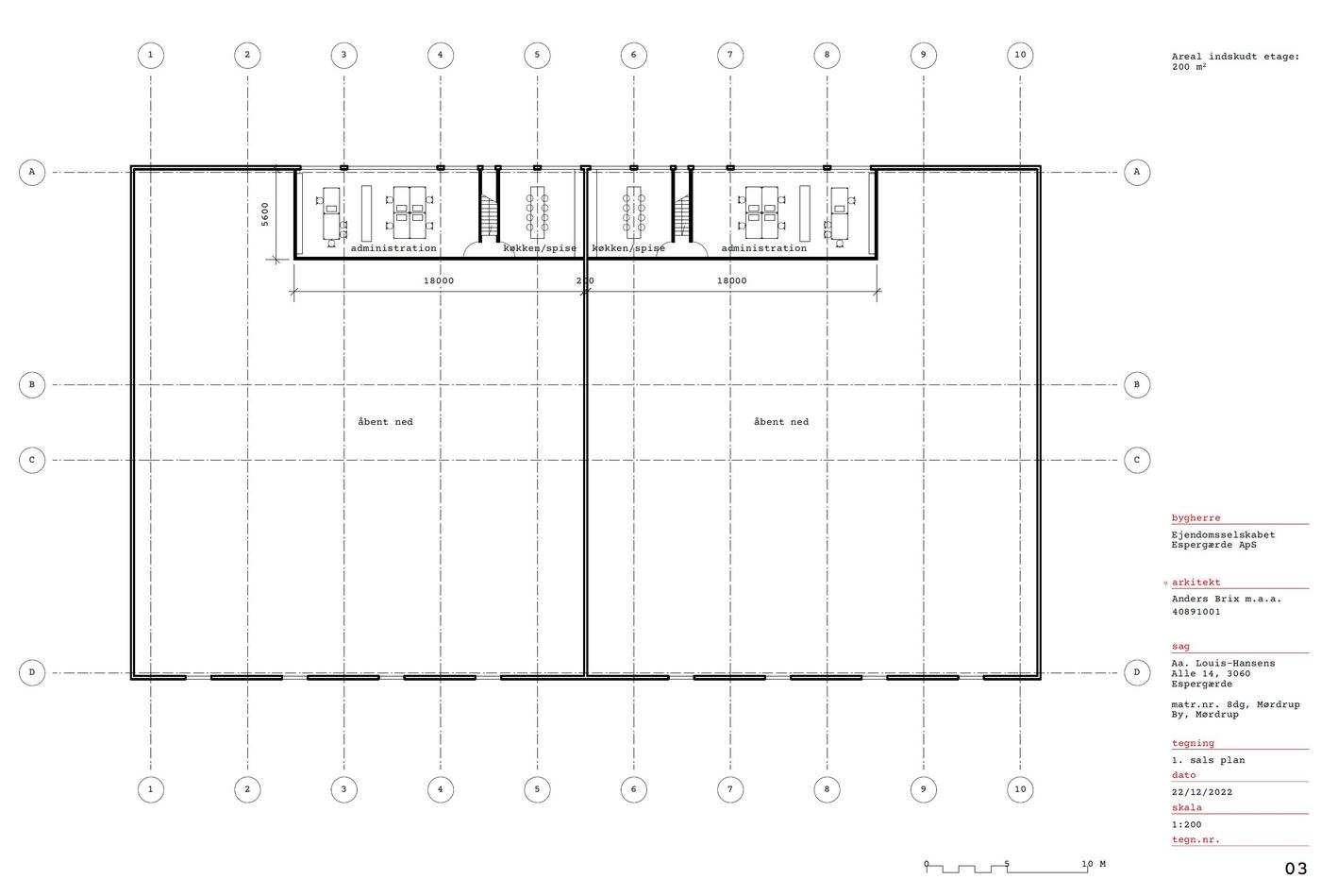
På det indskudte dæk ligger et velindrettet kontorområde bestående af tre kontorer, thekøkken og toiletter. Indretningen giver mulighed for at samle både administration og drift på samme adresse og sikrer gode rammer for medarbejdere og daglig drift.

Ejendommen fremstår i moderne og tidssvarende stil og er opført med henblik på at skabe en effektiv og fleksibel arbejdsplads. Den harmonerer arkitektonisk med de omkringliggende erhvervsbygninger, hvilket bidrager til et ensartet og professionelt udtryk i området.

Beliggende i Espergærdes dynamiske industriområde har lejemålet en strategisk placering med nem adgang til motorvejsnettet og øvrige transportforbindelser, hvilket understøtter effektiv drift for virksomheder med behov for tilgængelighed og logistik.

Læs mere

Vil du vide mere?

Lignende ejendomme

Til top