Engerødvej 43
3200 Helsinge

Sagsnr. 12-8215

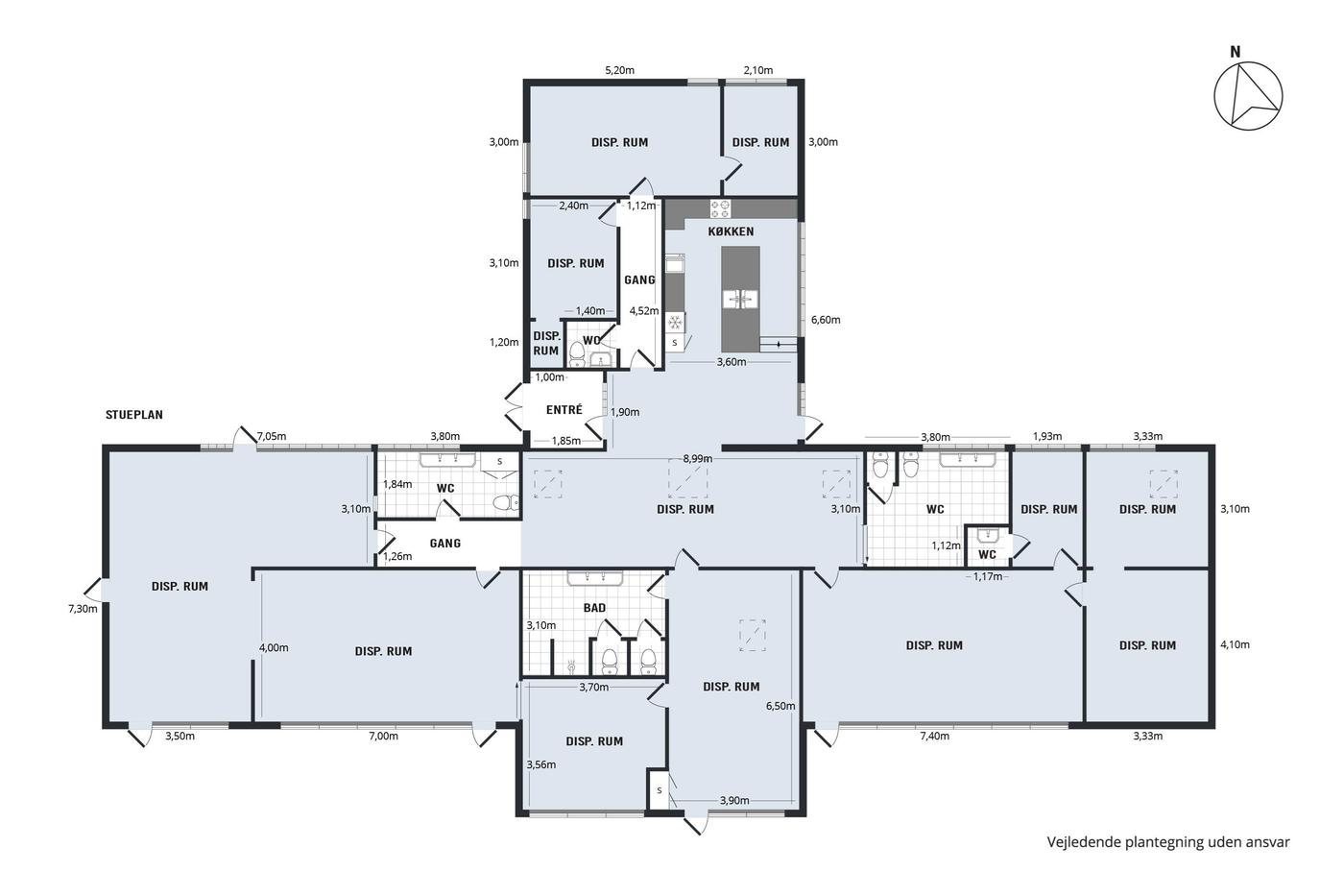
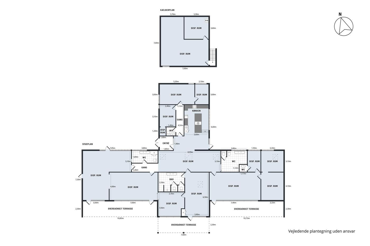
Ejendomstype

Etageareal

Grund

Energiklasse

339 m²

5.049 m²

D

Tidligere børnehave med mulighed for omdannelse til boliger

Nyt spændende projekt udbydes for Gribskov Kommune.

Beliggende på Engerødvej 43 midt i Helsinge by udbydes 5.049 kvadratmeter projektgrund, hvor der med fordel kan opføres boliger. Omdannelsen vil dog kræve en ny lokalplan. Ejendommen ligger meget centralt i populært familiekvarter og er tæt på station, indkøb samt naturskønt område. Ejendommen står som oprindeligt opført og har tidligere huset børneinstitutionen Engerød Børnehave.

Ejendommen udbydes efter reglerne i Lov om kommunernes styrelse § 68 og Bekendtgørelse nr. 799 af den 24. juni 2011 om offentligt udbud ved salg af kommunens henholdsvis regionens faste ejendomme.

Afgivne købstilbud skal være gældende 14 uger fra udbudsfristens udløb.

Købstilbuddet med tilhørende bilag skal sendes i en lukket kuvert/emballage som mærkes:

"Fortroligt" og "Udbud af Engerødvej 43, 3200 Helsinge" til: Nordicals Nordsjælland A/S, Helsingørsgade 21, 1., 3400 Hillerød

Tilbuddet skal være Nordicals Nordsjælland A/S i hænde senest mandag d. 11.11.2019 kl. 12.00

Det påhviler tilbudsgiver at sikre sig, at tilbuddet er kommet rettidigt frem til Nordicals Nordsjælland A/S. Hvis der ønskes kvittering for modtagelsen kan dette ske ved, at tilbudsgiver skriver sin mailadresse på kuverten/emballagen.

Indkomne tilbud er i henhold til bekendtgørelsens § 4 fortrolige, indtil salg har fundet sted. Salg har fundet sted, når både køber og sælger har underskrevet købsaftalen.

Læs mere

Denne ejendom er solgt

Vil du vide mere?

Askvang 4, st., 3400 Hillerød

+4570230047

3400@nordicals.dk

Besøg vores mæglerside

Lignende ejendomme

Til top