Enghavevej 2
3200 Helsinge

Sagsnr. 12-8649

Ejendomstype

Etageareal

Grund

Energiklasse

220 m²

740 m²

E

Centralt beliggende boligudlejningsejendom med gode parkeringsforhold

Nu udbyder vi en investeringsejendom med en central placering i Helsinge - tæt på gågaden og stationen. Ejendommen indeholder fire gode lejlighed med brugsret til en mindre have, og de fine parkeringsforhold er med til at gøre boligerne attraktive.

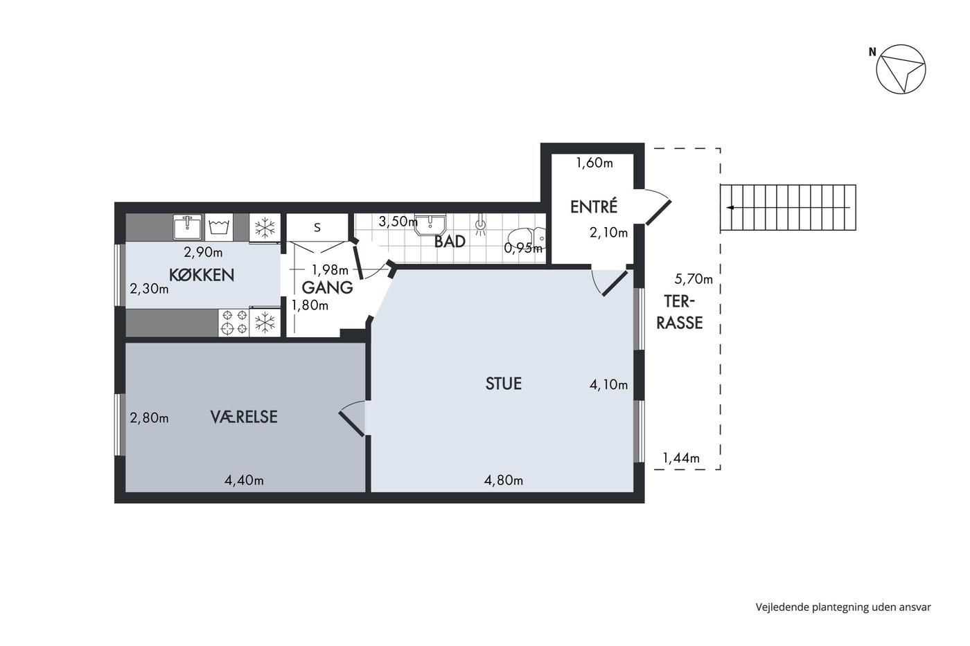
Lejlighederne har en funktionel planløsning, der indeholder en rummelig stue med god plads til hverdagslivet, og herfra kan man tilgå et fredeligt værelse. Fra et mindre gangareal med skabsplads har man adgang til badeværelset, der er opført med separat brus, og boligerne fremtræder generelt i god stand med moderne faciliteter. Køkkenet er holdt i et tidløst design med hvide fronter, og de hårde hvidevarer inkluderer en vaskemaskine. Slutteligt byder en entre velkommen til, og hver etage har desuden egen indgang udefra. Til hver lejlighed hører endvidere en mindre terrasse, ligesom der også er brugsret til den fælles have.

Denne boligudlejningsejendom har en god beliggenhed med nærhed til indkøbsmuligheder og stationen, som kun er 180 meter væk. Det vil derfor være nemt at benytte den offentlige transport, mens Helsinges handelsliv også befinder sig i gåafstand fra ejendommen - her finder man nemlig gågadens mange butikker og caféer. Placeringen er derfor særdeles attraktiv, da ejendommens beboere nemt kan komme til byens forskellige faciliteter - læg dertil de private parkeringsmuligheder og fire veldisponerede lejligheder, og du har en god investering.

Læs mere

Denne ejendom er solgt

Vil du vide mere?

Christian Jessen

chj@nordicals.dk

+4540518040

Askvang 4, st., 3400 Hillerød

+4570230047

3400@nordicals.dk

Besøg vores mæglerside

Lignende ejendomme

Til top