Vp-Arkaden 24
3200 Helsinge

Sagsnr. 12-9454

Ejendomstype

Etageareal

Energiklasse

224 m²

C

Kontantpris

Købspris pr. m²

Afkast

Årlig lejeindtægt

Årlig lejeindtægt pr. m²

Årlig driftsudgift

Årlig driftsudgift pr. m²

2.665.000 kr.

11.897 kr.

8,75 %

286.550 kr.

1.279 kr.

53.270 kr.

238 kr.

Investeringsejendom i Helsinges bymidte

I Vp-Arkaden i Helsinges absolutte bymidte finder du denne mindre investeringsmulighed. Her overtager du lejekontrakten med Kulturcaféen, som er en helt unik blomstrende café der hovedsageligt drives af frivillighedens vej. Kulturcaféen byder deres gæster på en helt særlig atmosfære og en hjemlig fornemmelse. Her er der plads til alle i de hyggelige ældre møbler, hvor man kan nyde sin kaffe eller køkkenets gode serveringer. Her mødes gæsterne også til kulturelle indslag som debatter, koncerter eller foredrag.

Kulturcaféen er et af de bedst besøgte steder og emmer altid af liv. Denne café og deres koncept er unikt og vil via deres frivilliges bidrag kunne forblive en god forretning i mange år frem. Investerer man i denne ejendom køber man sig ikke blot ind i en investering, man får også en stor del af en lokal ejendom med sjæl og masser af hjerte.

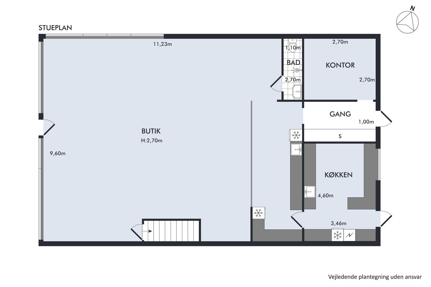
Erhvervsejerlejlighederne fordeler sig over to etager, hvor den øverste del rummer kontor, omklædning og opbevaring. Stueplan byder på køkken, serveringslokaler, en mindre scene og et toilet. Derudover er der et større udeserveringsareal der er overdækket.

Læs mere

Vil du vide mere?

Jakob Mygind

jmy@nordicals.dk

+4541400030

Askvang 4, st., 3400 Hillerød

+4570230047

3400@nordicals.dk

Besøg vores mæglerside

Lignende ejendomme

Til top