Vp-Arkaden 20
3200 Helsinge

Sagsnr. 12-9590

Ejendomstype

Etageareal

Energiklasse

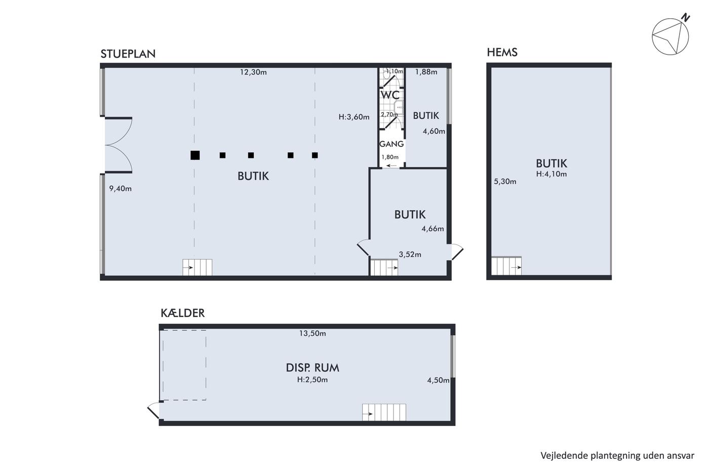
203 m²

C

Årlig leje

Leje pr. m²

Depositum

Årlig driftsudgift

Årlig driftsudgift pr. m²

203.000 kr.

1.000 kr.

101.500 kr.

83.230 kr.

410 kr.

Flot og indbydende butikslokale

Lejemålet er beliggende centralt i VP Arkaden i Helsinge og tilbyder et regulært etageareal på 203 m² med en fleksibel planløsning, der kan tilpasses en bred vifte af liberale erhverv, detail- eller serviceorienterede anvendelser. Placeringen i arkaden sikrer både god synlighed og en stabil kundestrøm, samtidig med at man er en del af et veletableret handelsmiljø med blandede butikker og specialforretninger.

Lokalet fremstår lyst og indbydende med store facadepartier mod arkaden og et godt naturligt lysindfald, hvilket gør indretningen enkel og effektiv. Arealet er overvejende åbent, suppleret af mindre sektioner til lager, personalefaciliteter eller behandlingsrum efter behov.

Beliggenheden i hjertet af Helsinge giver en stærk tilgængelighed for både gående og bilende kunder, og der er gode parkeringsmuligheder i nærområdet. Lejemålet henvender sig derfor til virksomheder, der ønsker en synlig og funktionel placering midt i et aktivt centerområde og med mulighed for at præge indretningen efter eget koncept.

Læs mere

Vil du vide mere?

Deniz Alincak

dal@nordicals.dk

+45 2834 1801

Askvang 4, st., 3400 Hillerød

+4570230047

3400@nordicals.dk

Besøg vores mæglerside

Lignende ejendomme

Til top