Rågelejevej 102
3210 Vejby

Sagsnr. 12-8224

Ejendomstype

Etageareal

Grund

49 m²

547 m²

Unikt ishus/cafe i storslået naturområde

Nu udbyder vi dette dejligt beliggende erhvervsmål - en ideel kiosk eller café.

Adressen er helt nøjagtigt Rågelejevej 102, og det her unikke område er utrolig velbesøgt, for det lægger sig nemlig lige ved Heatherhill; et åbent og fredet naturområde, som tiltrækker folk fra nær og fjern. Campingpladsen og Heatherhills store parkeringsplads ligger begge i en radius af få hundrede meter, og dermed er ejendommen godt eksponeret for forbipasserende.

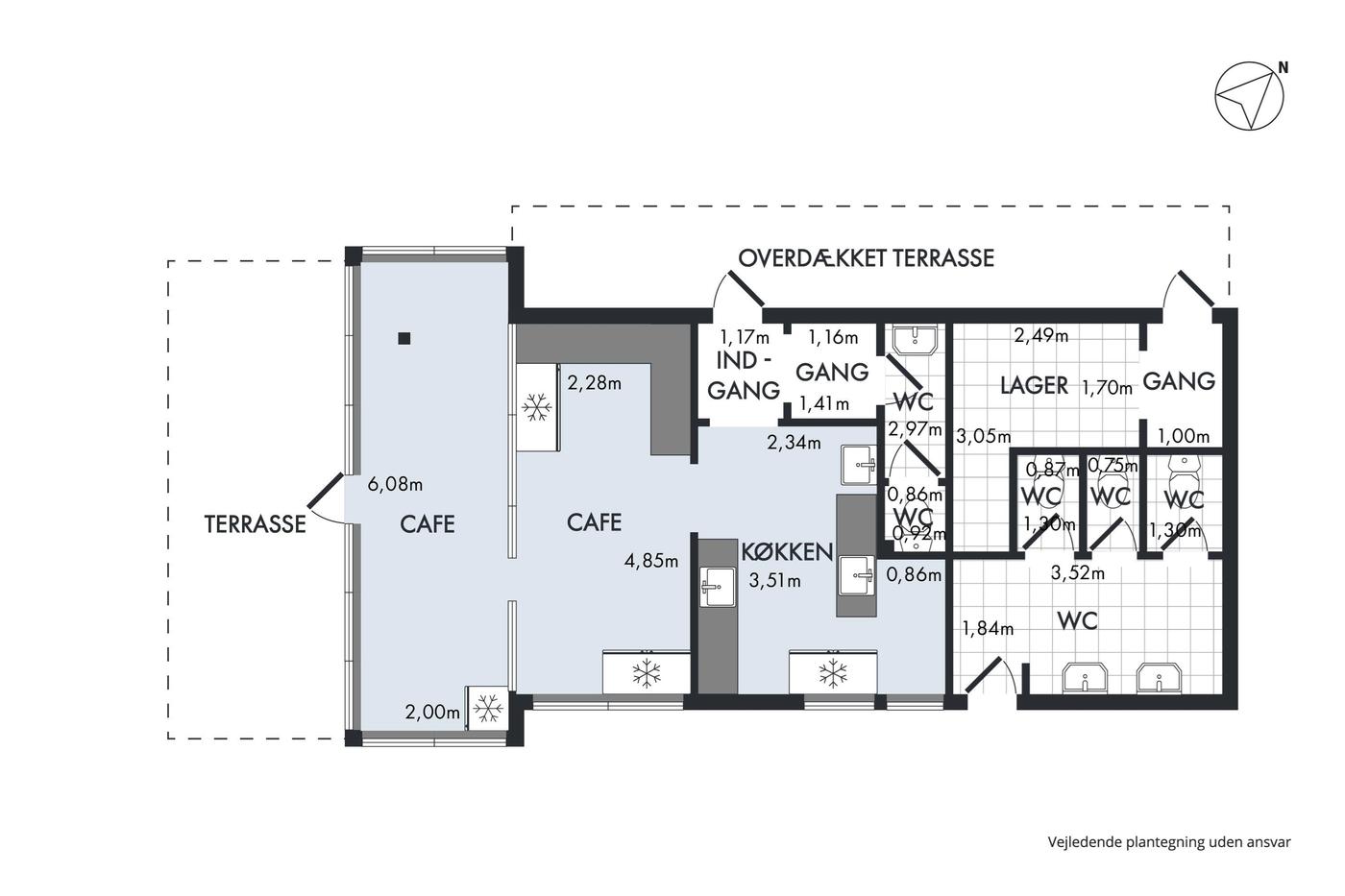
Ejendommen ligger for sig selv og er omgivet af grønt med gode muligheder for udeservering i det gode vejr. Indendørs fordeler de 49 kvadratmeter sig over planløsning med to lagerrum, et butikslokale med bar- og køkkenområde samt diverse toiletter. De offentlige toiletter administreres af Gribskov Kommune, som der skal indgås en lejekontrakt med.

De betagende naturvidder strækker sig allerede fra foden af ejendommen, hvilket skaber en attraktiv ramme om lejemålet. Heatherhill strækker sig langs kysten med smukke græs- og lyngbevoksede bakker - med unikke vandreruter og gode muligheder for forfriskende dukkerter. Kombinationen af den nærliggende campingplads og p-plads sikrer mange forbipasserende, og de nærliggende byer huser velfungerende handelsliv.

Det her er med andre ord en unik mulighed.

BUDVILKÅR

Ejendommen udbydes efter reglerne i Lov om kommunernes styrelse § 68 og Bekendtgørelse nr. 396 af den 3. marts 2021 om offentligt udbud ved salg af kommunens henholdsvis regionens faste ejendomme. Ejendommen udbydes på pris alene.

Købstilbud skal afgives på dansk og med beløbsangivelsen i danske kroner (DKK)

Købstilbuddet skal afleveres og mærkes:

"Udbud af Rågelejevej 102, 3210 Vejby" til: Nordicals Nordsjælland A/S, Helsingørsgade 21, 2., 3400 Hillerød

Tilbuddet skal være Nordicals Nordsjælland A/S i hænde senest onsdag d. 23.06.2021 kl. 12.00

Kun tilbud der afgives på nærværende købsaftale i fuldt udfyldt stand, vil blive taget i betragtning.

Det påhviler tilbudsgiver at sikre sig, at tilbuddet er kommet rettidigt frem til Nordicals Nordsjælland A/S. Hvis der ønskes kvittering for modtagelsen kan dette ske ved, at tilbudsgiver angiver sin mailadresse.

Gribskov kommune forbeholder sig ret til, ud fra varetagelse af en saglig kommunal interesse, at vælge mellem de indkomne tilbud eller forkaste dem alle.

Læs mere

Denne ejendom er solgt

Vil du vide mere?

Christoffer Hendrich

chr@nordicals.dk

+4561603979

Askvang 4, st., 3400 Hillerød

+4570230047

3400@nordicals.dk

Besøg vores mæglerside

Lignende ejendomme

Til top