Mestervangen 2
3230 Græsted

Sagsnr. 12-8295

Ejendomstype

Etageareal

Grund

Energiklasse

497 m²

2.140 m²

E

Pæn og velholdt investeringsejendom i Græsted

I industrikvarteret i det sydlige Græsted ligger denne pæne og velholdte værksted, lager- og produktionsejendom.

Der er 2 gode og reelle bygninger på grunden.
Begge bygninger er udlejede.
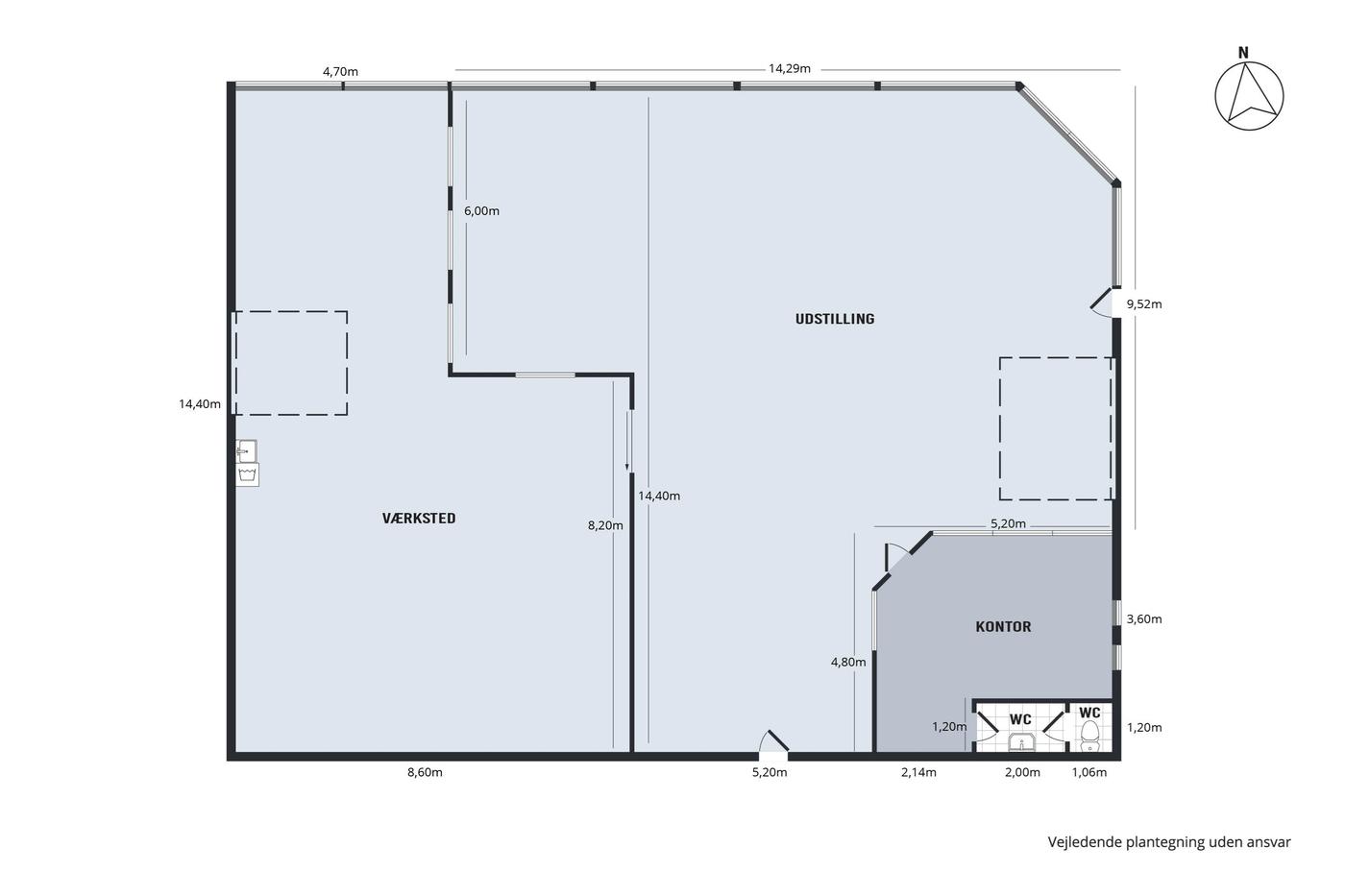
Den ene bygning er på hele 295 kvadratmeter og anvendes i forbindelse med autovirksomhed, den indeholder et stort flot showroom, et værksted, kontor samt personale faciliteter, i det hele taget en rigtig pæn og godt indrettet bygning.
Den anden ejendom anvendes til butik, lager og kontor. Ejendommen er opført i henholdsvis gasbeton og røde mursten. Den rummer i alt 202 kvadratmeter, som byder velkommen med et rummeligt indgangsparti, der til venstre glider ud i et lagerlokale og til højre det store værksted med højt til loftet, ovenlysvinduer, et langstrakt vinduesparti mod øst og en bred, elektrisk port mod syd. Værkstedet har i sig selv et areal på næsten 100 kvadratmeter. Mellem værkstedet og kontoret, som også nyder godt af egen indgang, ligger et toilet, et flisebadeværelse med separat bruseniche samt et personalerum med et mindre køkken, vask og spiseplads.

Grunden er stor og der er god plads til parkering på den store gårdsplads, endvidere er der opført skure som ligeledes er udlejede, ca. 50 kvadratmeter.

Som stationsby er Græsted beriget med en god beliggenhed i Nordsjælland med nem adgang via offentlig transport samt knap 20 kilometer til centrum af Hillerød og den halve strækning til nordkysten ved Gilleleje.

Mestervangen er en sidevej til Esbønderupvej og som første ejendom på vejen nyder den godt af nemme tilkørselsforhold.

Faciliteterne favner bredt såvel indvendigt som udvendigt og ejendommen kan således benyttes til mange formål såsom lager, kontor, mindre produktion,værksted og butik.

Læs mere

Denne ejendom er solgt

Vil du vide mere?

Askvang 4, st., 3400 Hillerød

+4570230047

3400@nordicals.dk

Besøg vores mæglerside

Lignende ejendomme

Til top