Birkevang 214
3250 Gilleleje

Sagsnr. 12-7776

Ejendomstype

Etageareal

Grund

Energiklasse

2.920 m²

19.121 m²

B

Flot investerings- eller projektejendom centralt i Gilleleje

Birkevang 214 har tidligere dannet rammerne for Gilleleje Rådhus og fungerer pt. som administrationsbygning, men nu udbydes ejendommen til omdannelse til boliger i form af tæt-lav og/eller etageboliger - eventuelt kombineret med liberale erhverv i mindre omfang.

Med adressen kan man på blot 13 minutters gang ankomme til Gilleleje Havn, hvor flere udsøgte spisesteder holder til. Lidt længere nordpå ligger Gilleleje Strand, hvor sommerens fornøjelser kan udfolde sig i sandet og langs vandkanten. Endvidere er der gode trafikale forhold, da man let kan komme rundt i landet via rute 251 samt tage lokaltoget fra Gilleleje Station, der ligger 750 meter fra ejendommen. Hverdagens indkøb er også bekvem med utallige supermarkeder, der ligeledes kan nås til fods, sammen med skole og flere dagtilbud.

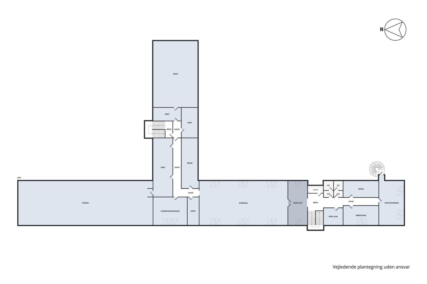
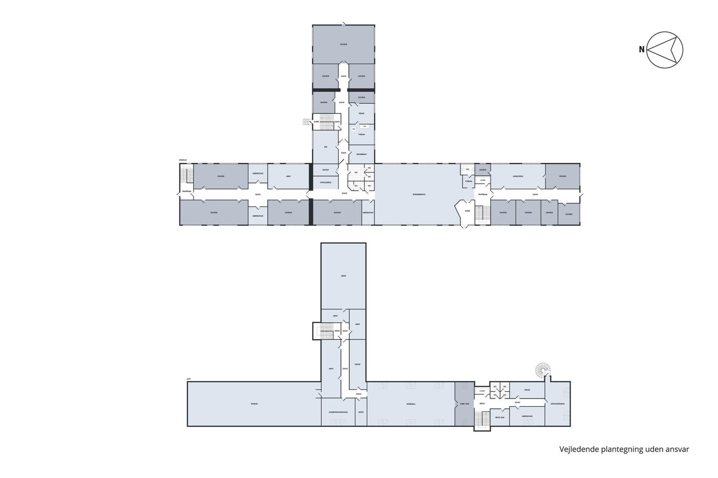
Det udbudte areal består af delområder A (ca. 9.462 m²) og B (ca. 9.659 m²) og udgør samlet ca. 19.121 m2. Grunden har et stort græsareal og frodige beplantninger, så man har et fint, grønt view inde fra bygningen. Derudover er der et flisebelagt terrasseområde med borde-bænkesæt, så man kan tage en pause udendørs.

Ejendommens i alt 2.920 m2 fremtræder lyse og indbydende, og alle tre etager kan tilgås via elevator eller to trappeopgange. Dermed kan de gode rammer hurtigt omdannes til ideelle boliger for alle aldersgrupper samt mindre liberale erhverv.

I øjeblikket er ejendommen indrettet med kontorlokaler opført i bløde vægge, så omdannelse og indretning af lejligheder er en oplagt mulighed. Andensalen er i dag ikke fuldt udnyttet, og ejendommens omdannelsespotentiale er stort, da fremtidige beboere kan glæde sig over en rolig base med en grøn udsigt.

Den sydlige del af arealet fremstår idag ubebygget med 9.659 m² og danner rig mulighed for at tillægge området flere boligenheder.

BUDVILKÅR

Ejendommen udbydes efter reglerne i Lov om kommunernes styrelse § 68 og Bekendtgørelse nr. 396 af den 3. marts 2021 om offentligt udbud ved salg af kommunens henholdsvis regionens faste ejendomme. Ejendommen udbydes til salg til boligformål (tæt-lav og/eller etageboliger) eventuelt kombineret med liberale erhverv i mindre omfang. Ejendommen udbydes på pris alene.

Købstilbud skal afgives på dansk og med beløbsangivelsen i danske kroner (DKK)

Købstilbuddet samt kort projektbeskrivelse, dokumentation for budgivers likviditet og tidsplan skal afleveres og mærkes:

"Udbud af Birkevang 214, 3250 Gilleleje" til: Nordicals Nordsjælland A/S, Helsingørsgade 21, 2., 3400 Hillerød

Tilbuddet skal være Nordicals Nordsjælland A/S i hænde senest tirsdag d. 31.08.2021 kl. 12.00

Kun tilbud der afgives på nærværende købsaftale i fuldt udfyldt stand med ovennævnte bilag, vil blive taget i betragtning.

Det påhviler tilbudsgiver at sikre sig, at tilbuddet er kommet rettidigt frem til Nordicals Nordsjælland A/S. Hvis der ønskes kvittering for modtagelsen kan dette ske ved, at tilbudsgiver angiver sin mailadresse.

Gribskov kommune forbeholder sig ret til, ud fra varetagelse af en saglig kommunal interesse, at vælge mellem de indkomne tilbud eller forkaste dem alle.

Læs mere

Denne ejendom er solgt

Vil du vide mere?

Christoffer Hendrich

chr@nordicals.dk

+4561603979

Askvang 4, st., 3400 Hillerød

+4570230047

3400@nordicals.dk

Besøg vores mæglerside

Lignende ejendomme

Til top