Gilleleje Hovedgade 13A
3250 Gilleleje

Sagsnr. 12-9256

Ejendomstype

Etageareal

Grund

Energiklasse

541 m²

560 m²

C, F

Flot investeringsejendom i hjertet af Gilleje

Attraktivt beliggende på Gilleleje Hovedgade tæt på byens pulserende havnemiljø og hyggelige bymidte udbyder vi nu en gedigen, blandet ejendom, omfattende et stk. erhvervslejemål og to super fine lejligheder til udlejning.

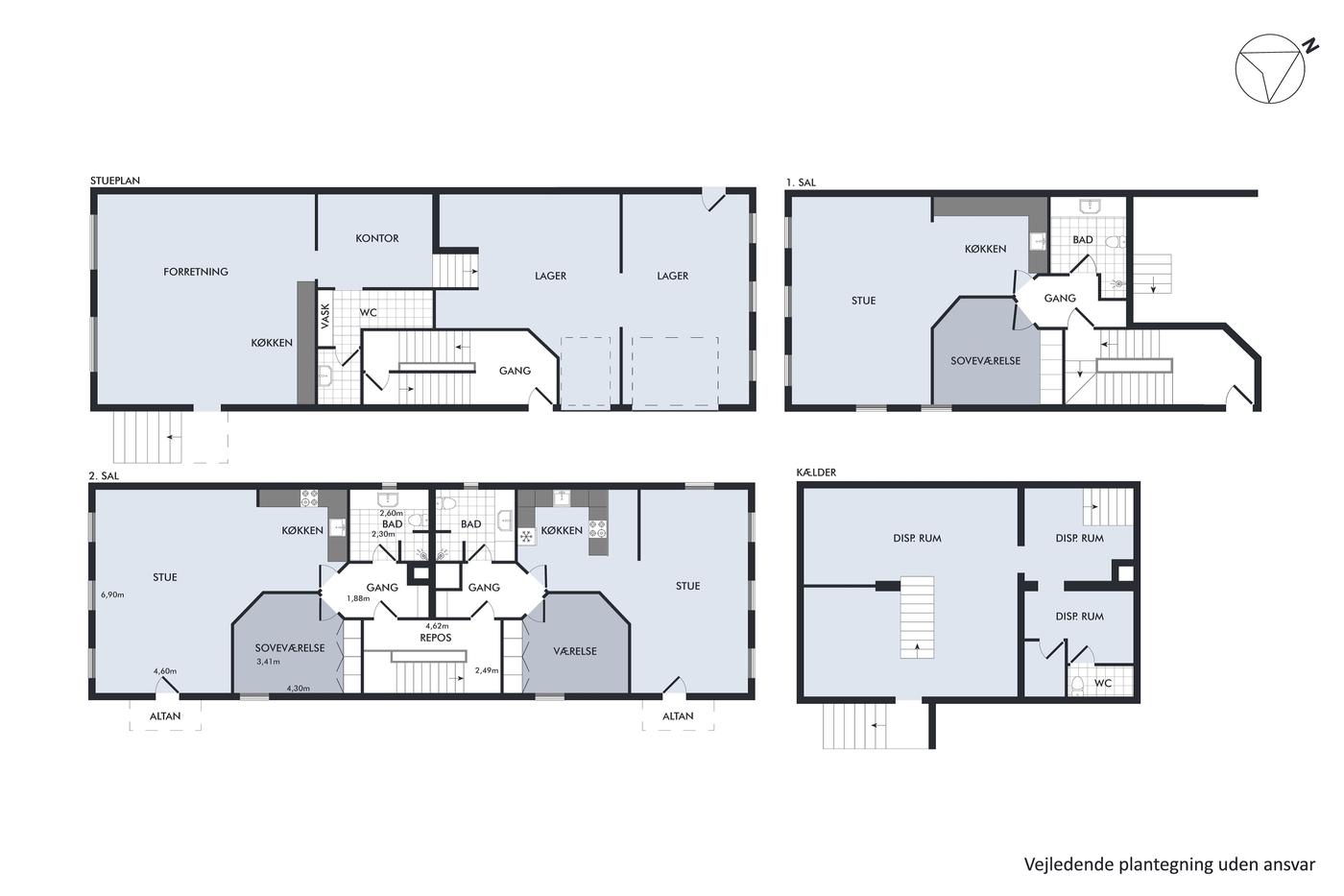
Vi skal tage et nærmere kig på nummer 13A-B, som placerer sig i en velholdt ejendom fra 1877 med en flot, hvidpudset facade og sprossevinduer. Til ejendommen er der gode parkeringsmuligheder med pladser foran samt en stor parkeringsplads bagved. Her er også indrettet et lille, lukket areal i hjørnet af pladsen, hvor man kan sidde og nyde en pause i det fri.

Erhvervslejemålene er placeret i stueetagen og udfolder sig på tre store lagerrum. Hertil er der også en super brugbar kælderetage, der byder på ekstra disponibel plads og et toilet. Alt fremstår i særdeles god stand og er velegnet til udlejning af mange forskellige typer af erhverv.

På 1. og 2. sal ligger tre lejligheder, som alle er udlejet. Lejlighederne er i fremragende stand med samme veltænkte planløsning, der tæller et værelse, et badeværelse samt kombineret køkken-alrum og stue. Køkkenet er udstyret med god opbevaringsplads og de nødvendige hvidevarer, mens badeværelset er indrettet med bruseniche. Stuen er yderst indretningsvenlig med plads til både spisebordet og sofaen. Alle lejligheder har desuden brugsret til altaner, der vender mod øst og byder på morgensol.

I 13B findes endvidere 2 beboelseslejligheder, som begge er udlejet.

Prikken over i'et sættes af beliggenheden, for adressen placerer sig i smørhullet mellem bymidtens rige handelsliv, Gilleleje St. og havnen, der uden tvivl er byens omdrejningspunkt - alt sammen ligger inden for gåafstand.

Læs mere

Denne ejendom er solgt

Vil du vide mere?

Askvang 4, st., 3400 Hillerød

+4570230047

3400@nordicals.dk

Besøg vores mæglerside

Lignende ejendomme

Til top