Rostgårdsvej 2 og 5
3250 Gilleleje

Sagsnr. 12-8260

Ejendomstype

Etageareal

Grund

Energiklasse

5.334 m²

9.100 m²

E

Skole i Gilleleje udbydes til salg

Åbent hus med tilmelding - tirsdag d. 7/1-20 kl. 15.00-17.00. Kontakt os for at aftale nærmere.

Skolen på Rostgårdsvej i Gilleleje bliver nu offentligt udbudt med henblik på at blive omdannet til beboelse, så hvis I er på jagt efter en god investeringsmulighed, så byder netop den mulighed sig lige her.

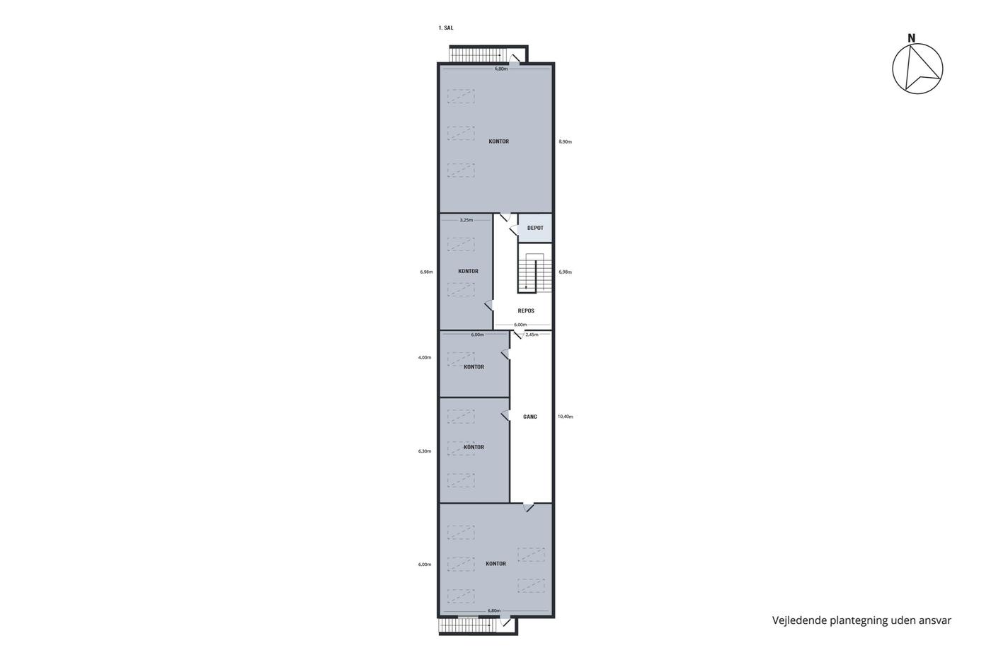
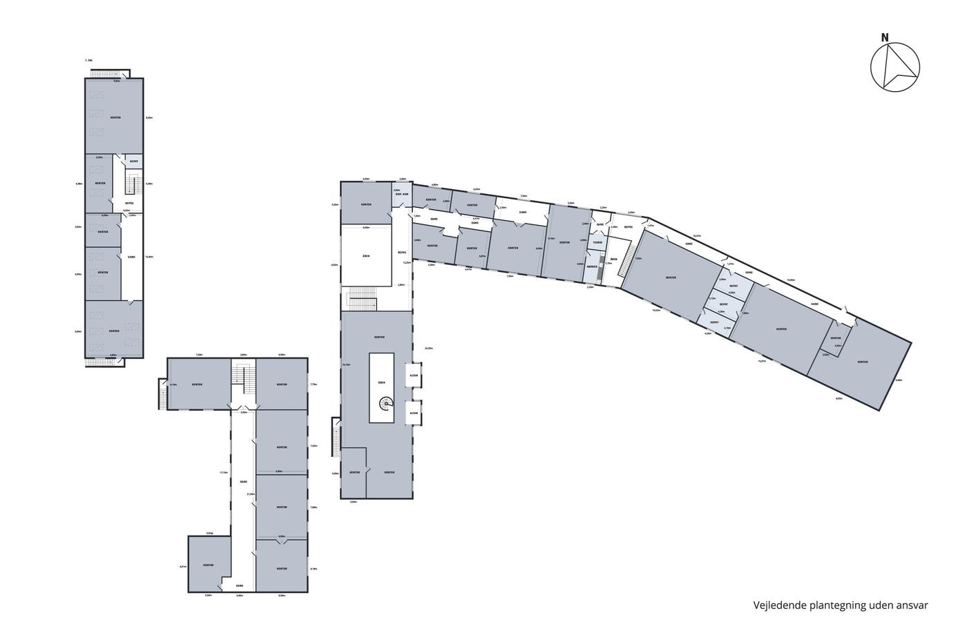
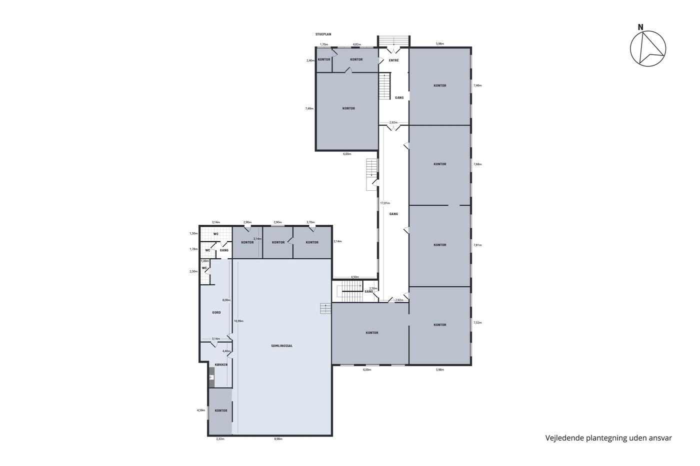
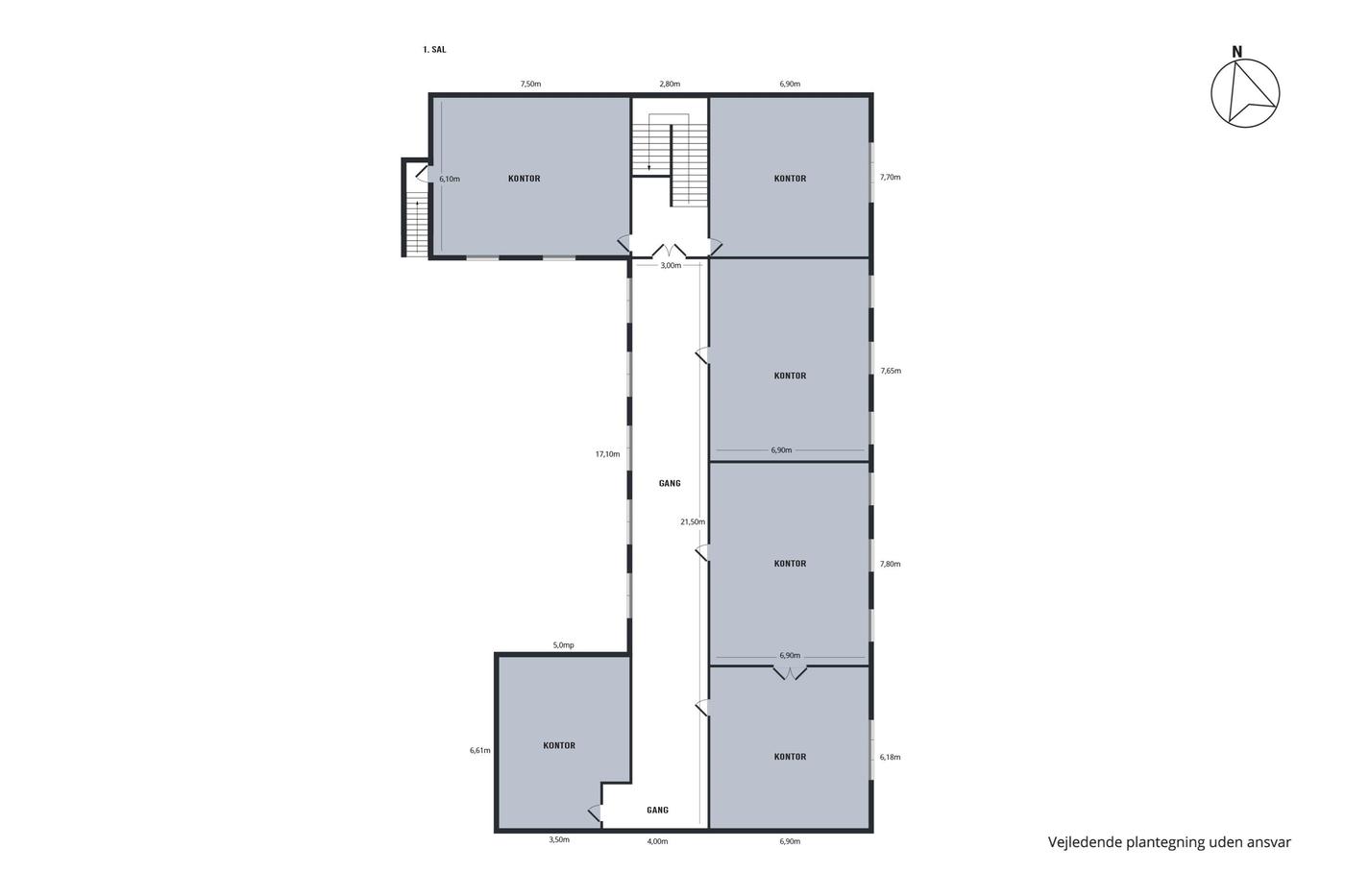
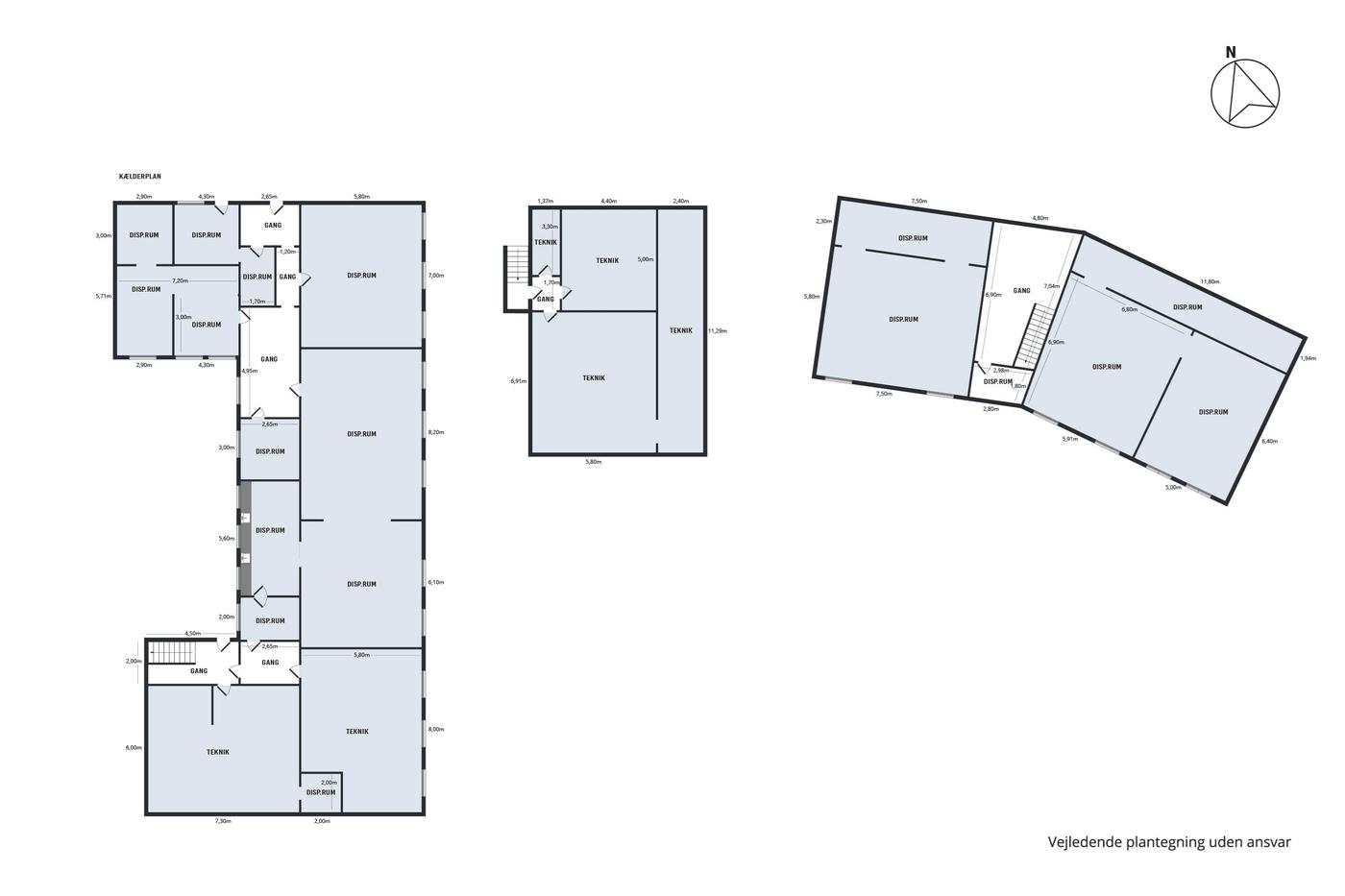
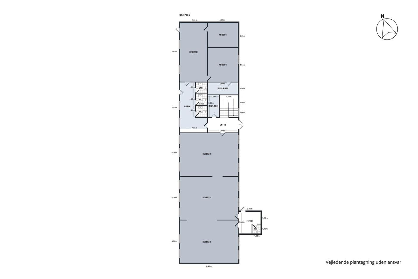
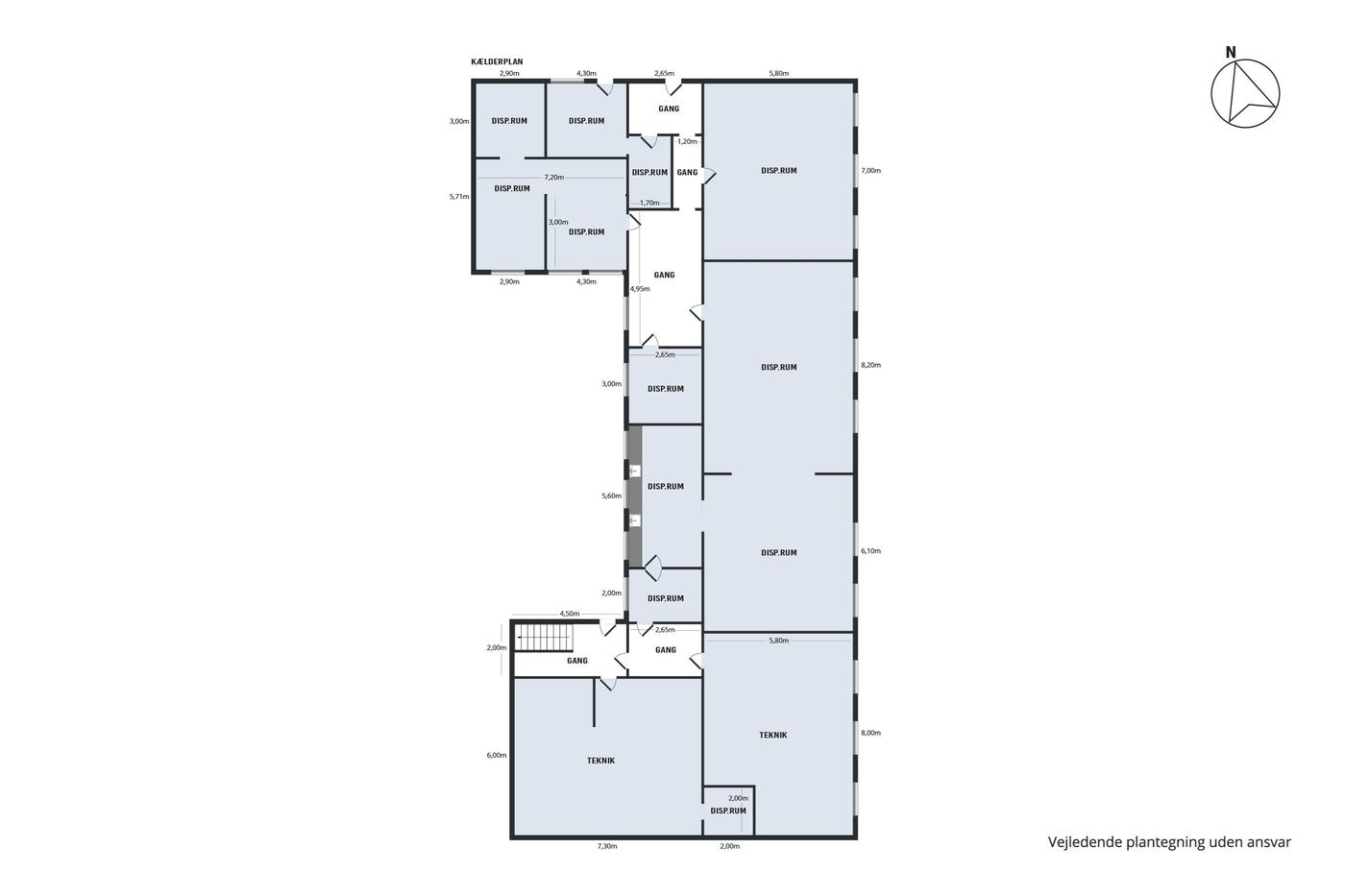
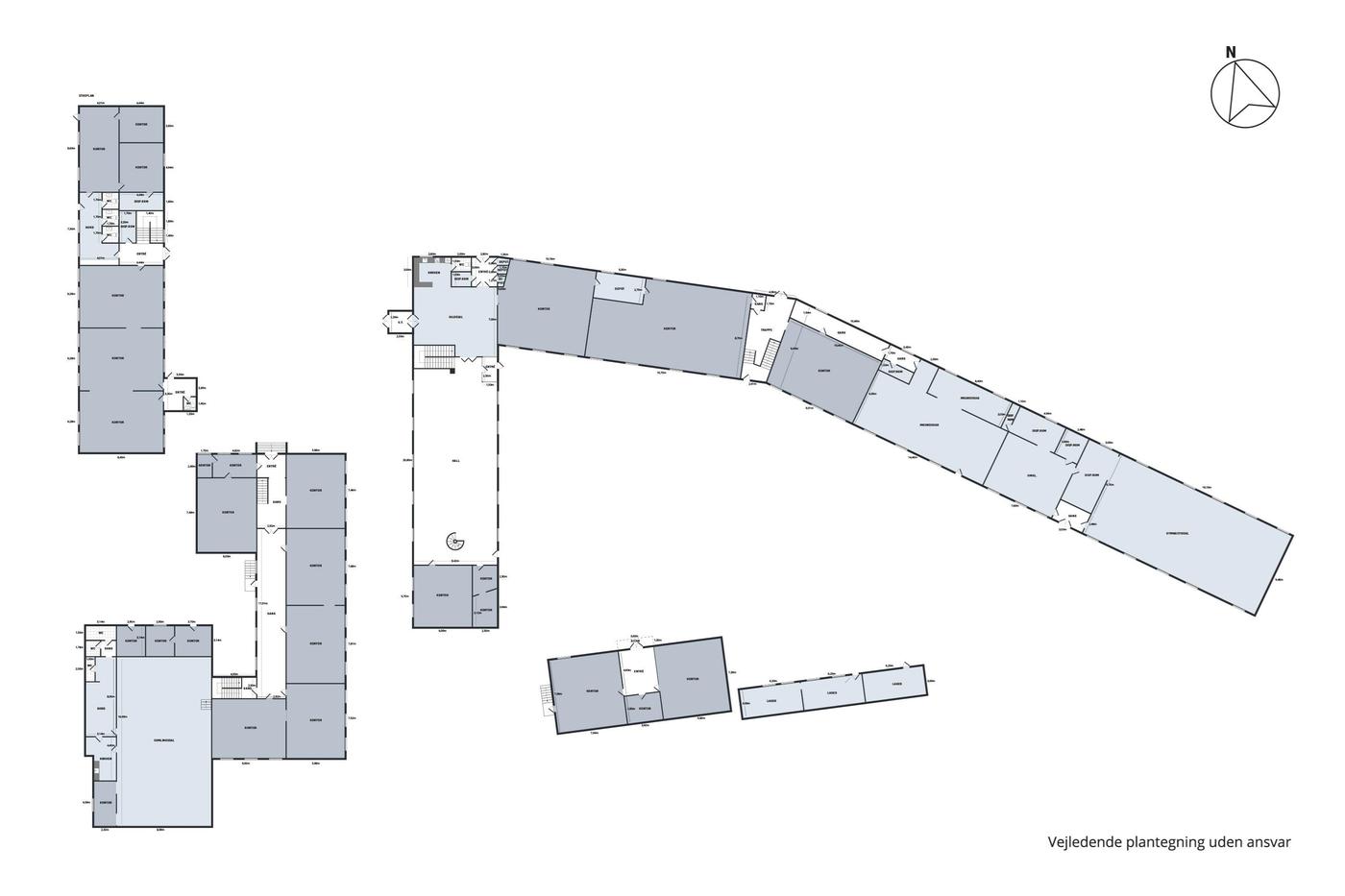
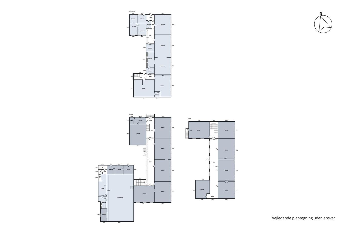
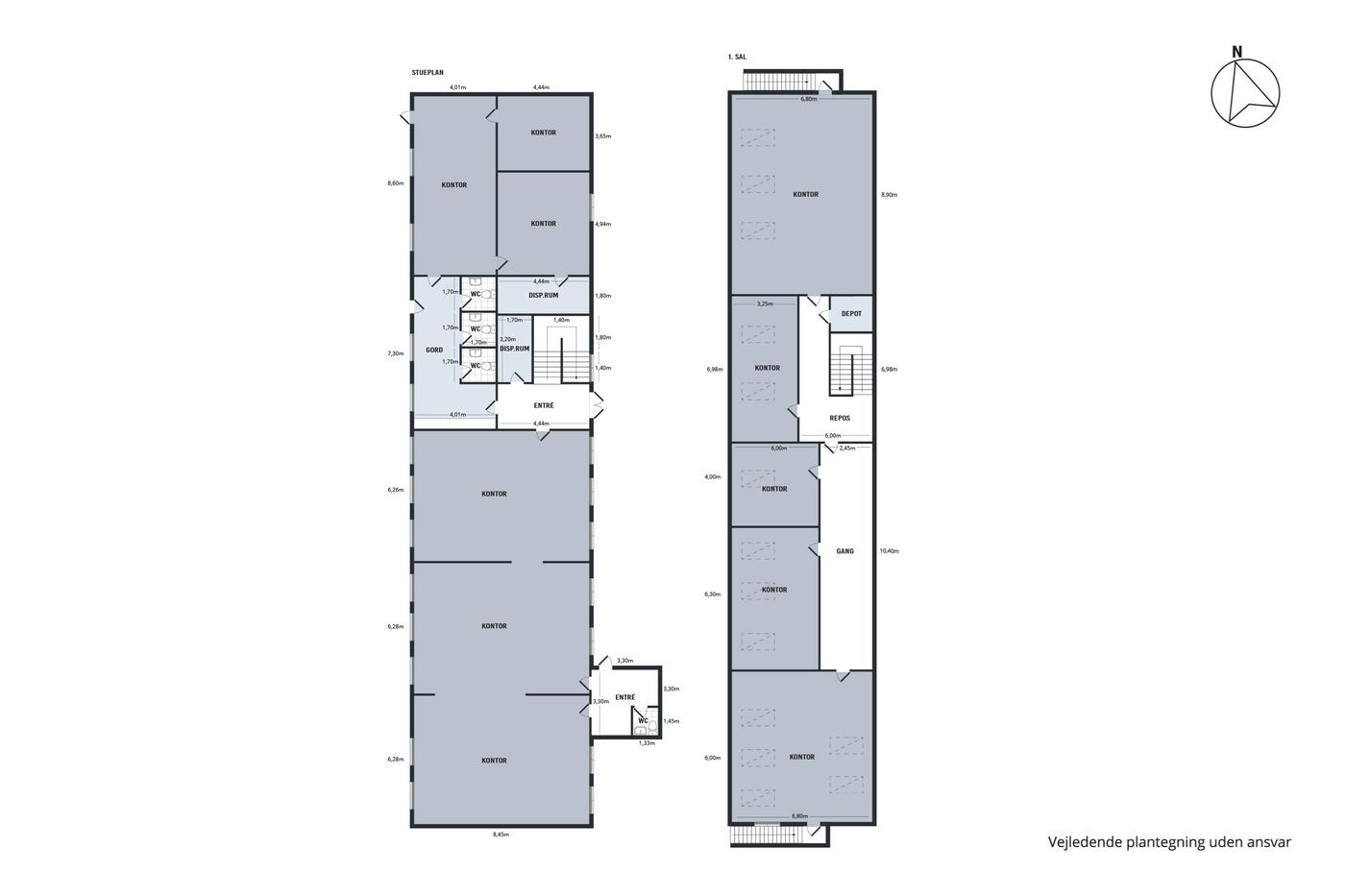
Ejendommen er opført/ombygget i perioden 1867-2000 og fordeler sig over flere bygninger, der både har kælderetager, stueplan og 1. sal, hvorfra der er udsigt, hvilket er en attraktiv faktor for dem, der flytter ind, når skolen er omlagt til boliger. Den ene del er nem at opdele grundet den smalle bygningsdybde, og gennemgående for alle delene er lysindfaldet, de store rum og den gode plads, der giver rig mulighed for at tilpasse planløsningerne og skabe nogle boliger, hvor rummelighed, moderne komfort og lysindfald blot er nogle af nøgleordene. Der kan ydermere punktvis opnås godkendelse til at anlægge ekstra etager til det eksisterende byggeri. For ejendommen er gældende en maksimal bebyggelsestæthed på 80%, samt der skal være et friareal svarende til min. 25 % af boligetagearealet og et areal til parkering.

Adressen er aldeles tiltalende. Vi befinder os centralt i Gilleleje, hvorfor de nye indflyttere nemt kan få glæde af byens goder og det maritime miljø ved havnen, som kun ligger få minutters gang fra hoveddøren. Gilleleje er en skøn fiskerby i Nordsjælland, der særligt er kendt for netop sit fiskeri og det stemningsfyldte havnemiljø, der også indbyder til at dyrke fritidssejllads eller fiskeri på egen hånd. Byen har alt fra gode spisesteder og cafeer til handlemuligheder, skole, sportsfaciliteter og fritidsaktiviteter - og med denne beliggenhed ligger det hele indenfor gå- eller cykelafstand. Tilmed er der kort afstand til stationen, så det er nemt og bekvemt at komme fra A til B. Her vil både børnefamilier, par, unge og seniorer kunne finde sig til rette.

Minimumspris kr. 8.000.000

Kontakt os for en fremvisning og oplev det store potentiale med egne øjne.

Ejendommen udbydes til salg i henhold til bekendtgørelse nr. 799 af 24. juni 2011 om offentligt udbud ved salg af kommunens henholdsvis regionens faste ejendomme.

Købstilbud skal afgives på dansk og med beløbsangivelsen i danske kroner (DKK).

Købstilbuddet med tilhørende kort projektbeskrivelse og tidsplan skal sendes i både papirform og i elektronisk form på et USB-stik eller tilsvarende i en lukket kuvert/emballage som mærkes:

"Fortroligt" og "Udbud af Rostgårdsvej 2 og 5" til: Nordicals Nordsjælland A/S, Helsingørsgade 21, 2., 3400 Hillerød

Tilbuddet skal være Nordicals Nordsjælland A/S i hænde senest d. 27.01.2020 kl. 12.00

Kun tilbud der afgives på nærværende købsaftale i fuldt udfyldt stand og med vedlagt kort projektbeskrivelse, vil blive taget i betragtning.

Det påhviler tilbudsgiver at sikre sig, at tilbuddet er kommet rettidigt frem til Nordicals Nordsjælland A/S. Hvis der ønskes kvittering for modtagelsen kan dette ske ved, at tilbudsgiver skriver sin mailadresse på kuverten/emballagen.

Indkomne tilbud er i henhold til bekendtgørelsens § 4 fortrolige, indtil salg har fundet sted. Salg har fundet sted, når både køber og sælger har underskrevet købsaftalen.

Gribskov Kommune forbeholder sig ret til, ud fra varetagelse af en saglig kommunal interesse, at vælge mellem de indkomne tilbud eller forkaste dem alle.

Læs mere

Denne ejendom er solgt

Vil du vide mere?

Askvang 4, st., 3400 Hillerød

+4570230047

3400@nordicals.dk

Besøg vores mæglerside

Lignende ejendomme

Til top