Hans Henriksvej 1
3300 Frederiksværk

Sagsnr. 12-8499

Ejendomstype

Etageareal

Grund

Energiklasse

289 m²

1.047 m²

G

Lys, nyistandsat investeringsejendom i Frederiksværk

På adressen venter seks lyse, flotte lejligheder, der alle nyder godt af enten terrasser eller altanmiljøer. Her kan man blandt andet se frem til en stor, fælles have, hvor man kan samles og nyde solens stråler. Herudover sikrer adressen kort vej til skøn natur og alle hverdagens fornødenheder. Helt klart et kig værd!

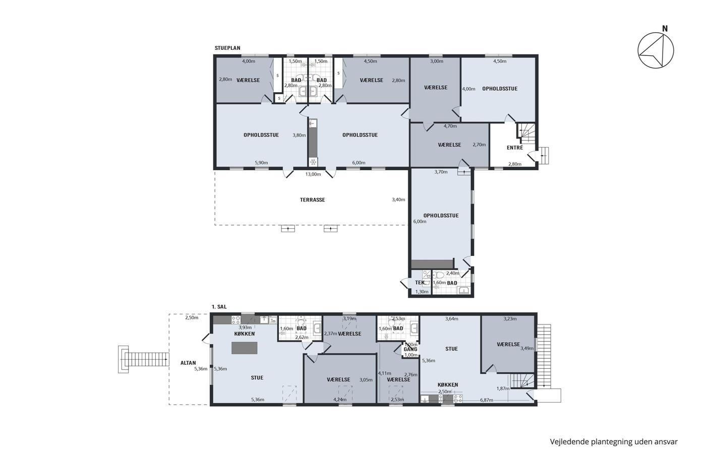
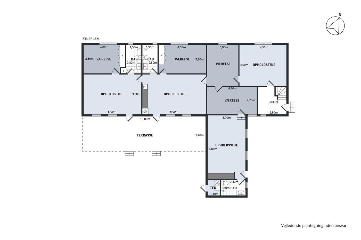
Der er tale om seks lækre 2-værelseslejligheder, som er placeret i en nyistandsat og lys ejendom. Til hver lejlighed kan man forbinde boligens inde- og udeliv ved at åbne ud til enten terrasser eller altanmiljøer. Hertil kan man på adressen nyde et fælles, stort havemiljø, en aflukket parkeringsgård samt fælles vaskefaciliteter.

Både inde og ude prydes ejendommen af kvalitetsbevidste og stilrene materialer. De mange vinduespartier beriger alle lejlighederne med et skønt lysindfald både i stueplan og på første sal. På første sal kan man endvidere nyde et hyggeligt loft-til-kip og ovenlysvinduer.

Med lejlighederne følger en central placering i Frederiksværk, hvilket sikrer kort vej til gode indkøbsmuligheder, butikker og spisesteder. Fra adressen kommer man også ubesværet med offentlig transport, da busforbindelser er placeret blot 750 meter væk. Skal man med toget, kan man tilmed cykle til Frederiksværk Station på bare fem minutter. Skøn natur kan nydes omkring i Vinderød Skov eller omkring Arresø.

Vi glæder os til at vise ejendommen og mulighederne frem for dig!

Læs mere

Denne ejendom er solgt

Vil du vide mere?

Christian Jessen

chj@nordicals.dk

+4540518040

Askvang 4, st., 3400 Hillerød

+4570230047

3400@nordicals.dk

Besøg vores mæglerside

Lignende ejendomme

Til top