Hermannsgade 2B
3300 Frederiksværk

Sagsnr. 12-8095

Ejendomstype

Etageareal

Grund

Energiklasse

236 m²

836 m²

C

Mulighedsrig investeringsejendom med god beliggenhed

Centralt i Frederiksværk er denne investeringsejendom med boligudlejning beliggende. Der er mange muligheder i ejendommen grundet den ideelle beliggenhed og det vedligeholdte interiør, som gør, at boligen på længere sigt har mulighed for at blive en god indtjeningskilde, der kan give passiv indkomst. Investerer man i denne bolig, medfører der byggeret.

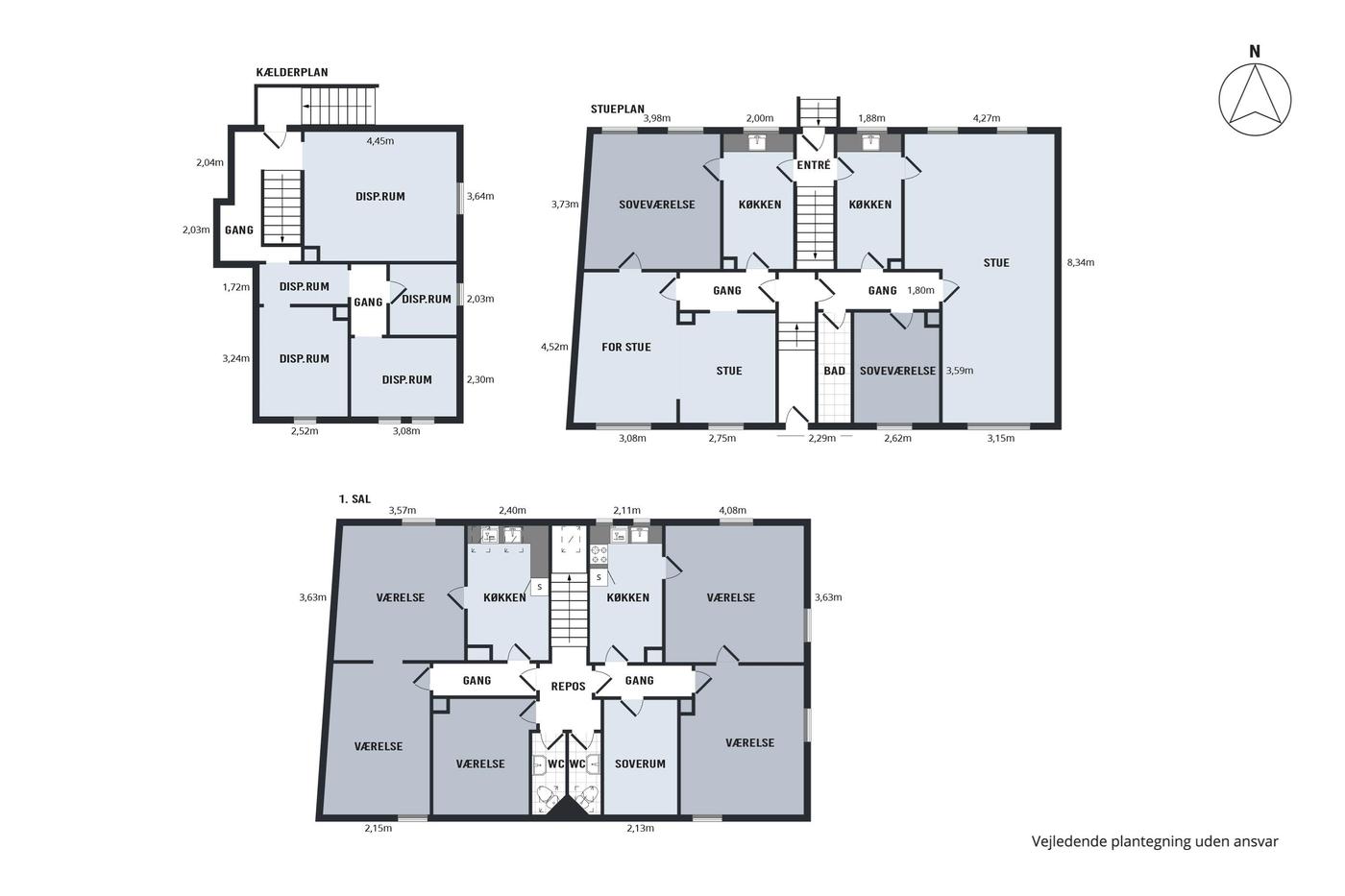
Bygningen har været beliggende på grunden siden sin opførelse i 1903, men har sidenhen gennemlevet en total istandsættelse, der har resulteret i nogle lejligheder med en flot og moderne indretning med materialer i en god kvalitet, der dermed holder vedligeholdelsesudgifterne lave. Ejendommen har et samlet areal på 296 m2 fordelt over 4 lejligheder, der er beliggende på henholdsvis første og anden sal. Lejlighederne har omtrent samme rumfordeling med en entré, stort køkken, badeværelse med separat bruseniche samt stue. I stueplan er der endvidere en fordelingsgang, der adskiller bad og værelse og på første sal, får man desuden et disponibelt rum. Køkkenerne er praktisk indrettet med masser af bordplads samt alt det essentielle i hvidevarer. Tilhørende boligen er der desuden en kælder og parkeringsfaciliteter.

Investeringsejendommen er beliggende centralt i Frederiksværk, hvor man har det mest nødvendige i sin nærhed, som er med til at gøre den attraktiv for lejeren. Her kan man blandt andet nævne den korte afstand til Frederiksværk Station, der kan tilkommes på gåben på blot 5 minutter samt busforbindelser, der krydser lige forbi huset. Indkøb kan let foretages, da Kvickly ligger lige overfor ejendommen.

Læs mere

Denne ejendom er solgt

Vil du vide mere?

Christian Jessen

chj@nordicals.dk

+4540518040

Askvang 4, st., 3400 Hillerød

+4570230047

3400@nordicals.dk

Besøg vores mæglerside

Lignende ejendomme

Til top