Falkevej 15
3400 Hillerød

Sagsnr. 12-8529

Ejendomstype

Etageareal

Grund

Energiklasse

360 m²

1.200 m²

B, D

Ejendom med blandet bolig og erhverv

På Falkevej 15 ligger en stor og stilren ejendom, der giver jer optimale muligheder for at samle bolig og erhverv under samme tag. Her kan I nyde et solrigt udemiljø, mens adressen sikrer jer en bekvem hverdag både som familie og som erhvervsdrivende. Velkommen!

I Hillerøds gamle industrikvarter er I sikret en optimal placering og en god synlighed blandt andre erhvervsdrivende. Her kommer I nemt med offentlig transport med 250 m. til busforbindelser, mens I også herfra fletter ubesværet ind på motorvejen. Når arbejdsdagen går på hæld, kan I som familie glæde over nær afstand til indkøbsmuligheder samt skøn natur, mens ungerne også kommer ubesværet til skole og sportsfaciliteter.

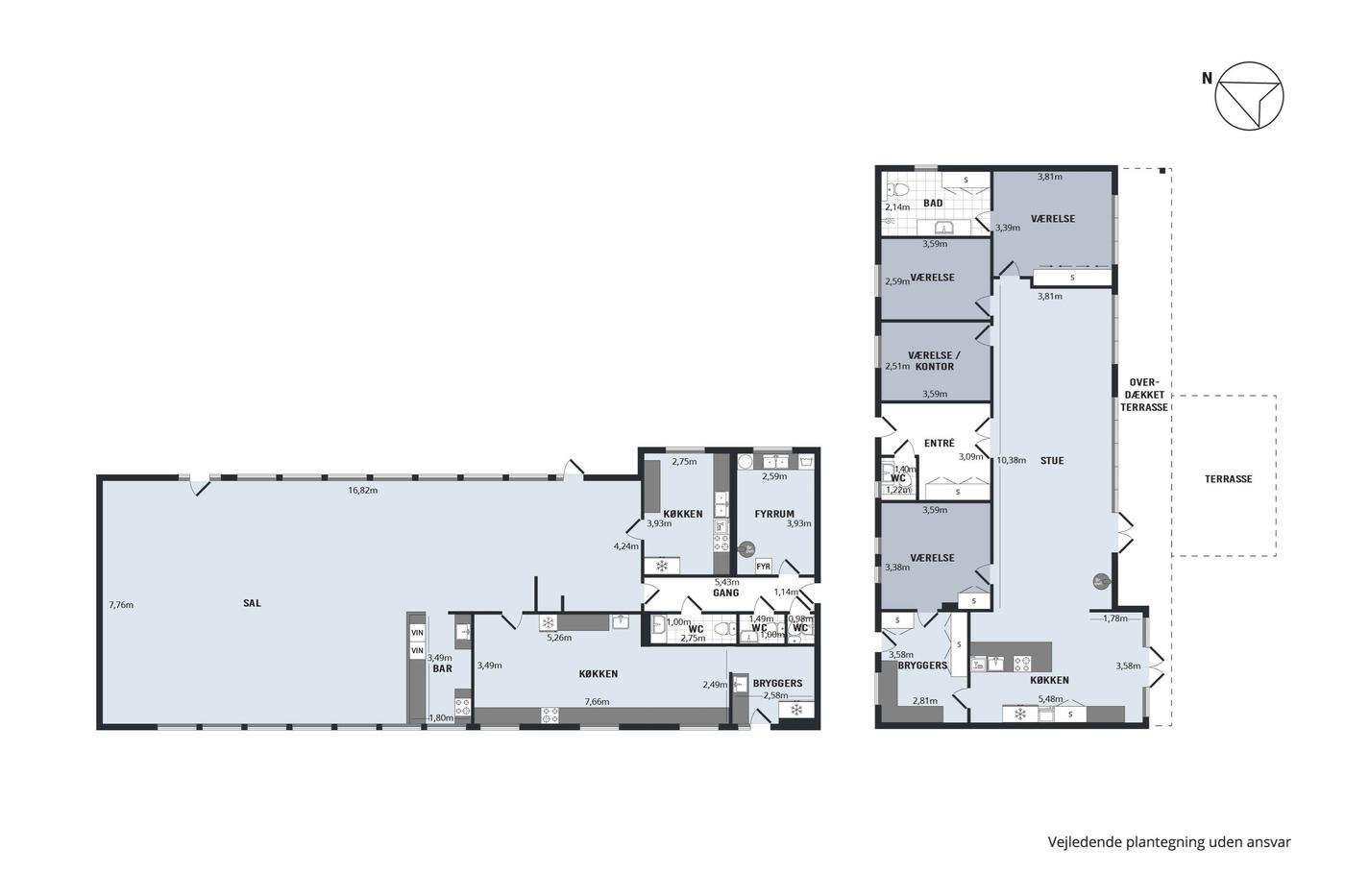
Den store grund huser to velholdte bygninger fra 1968 og fra 1970. Begge huse er løbende vedligeholdt og moderniseret, hvorfor I her bare skal koncentrere jer om at flytte ind. Den ældste bygning giver jer 216 kvadratmeter, og her giver de to velfungerende køkkener og den store lyse sal jer ideelle muligheder for at drive catering eller andet håndværk. Festsalen er indrettet med bar, og her er plads til et utal af borde og stole, mens I herfra også kan nyde direkte udgang til det solrige udemiljø. Bygningen rummer også et fyrrum, et bryggers og tre gode toiletter.
I den anden bygning fra 1970 venter 144 kvadratmeter, og her er der skabt optimale rammer for familielivet. Her kan I bl.a. glæde jer over et lækkert køkken i åben forbindelse til stuen, hygge fra brændeovnen, kvalitetsbevidste materialer i køkken og bad samt gode værelser.

På grunden er desuden en dejlig have og et vestvendt terrassemiljø, der både giver jer mulighed for afslapning, leg og udendørsservering. På adressen er der endvidere gode parkeringsforhold.

Læs mere

Denne ejendom er solgt

Vil du vide mere?

Claus Bro

cbr@nordicals.dk

+4540336326

Askvang 4, st., 3400 Hillerød

+4570230047

3400@nordicals.dk

Besøg vores mæglerside

Lignende ejendomme

Til top