Høgevej 8A
3400 Hillerød

Sagsnr. 12-8500

Ejendomstype

Etageareal

Grund

879 m²

2.801 m²

Flotte, lyse kontorlokaler med ideel placering i Hillerøds erhvervsområde

På adressen venter lyse og lækre kontorlokaler, som står fuldstændig klar til at danne ideelle rammer om jeres virksomhed. Her er der gode muligheder for opbevaring eller produktion i de store lagerrum, mens adressen placerer jer ideelt i Hillerøds erhvervsområde nær motorvejstilkørsel og busforbindelser. Helt klart et besøg værd!

Den store, flotte brugerejendom er opført i 2005, hvilket sikrer jer stilrene og kvalitetsbevidste materialer. Bygningens store glasfacader giver jer ydermere et lyst arbejdsmiljø, hvor medarbejderne kan nyde en fin udsigt ud over området. Omkring bygningen kan I glæde jer over befæstede udearealer, og her er der desuden gode parkeringsforhold til biler og cykler.
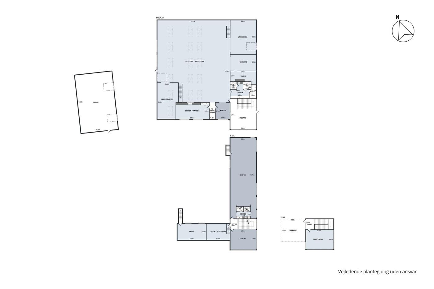
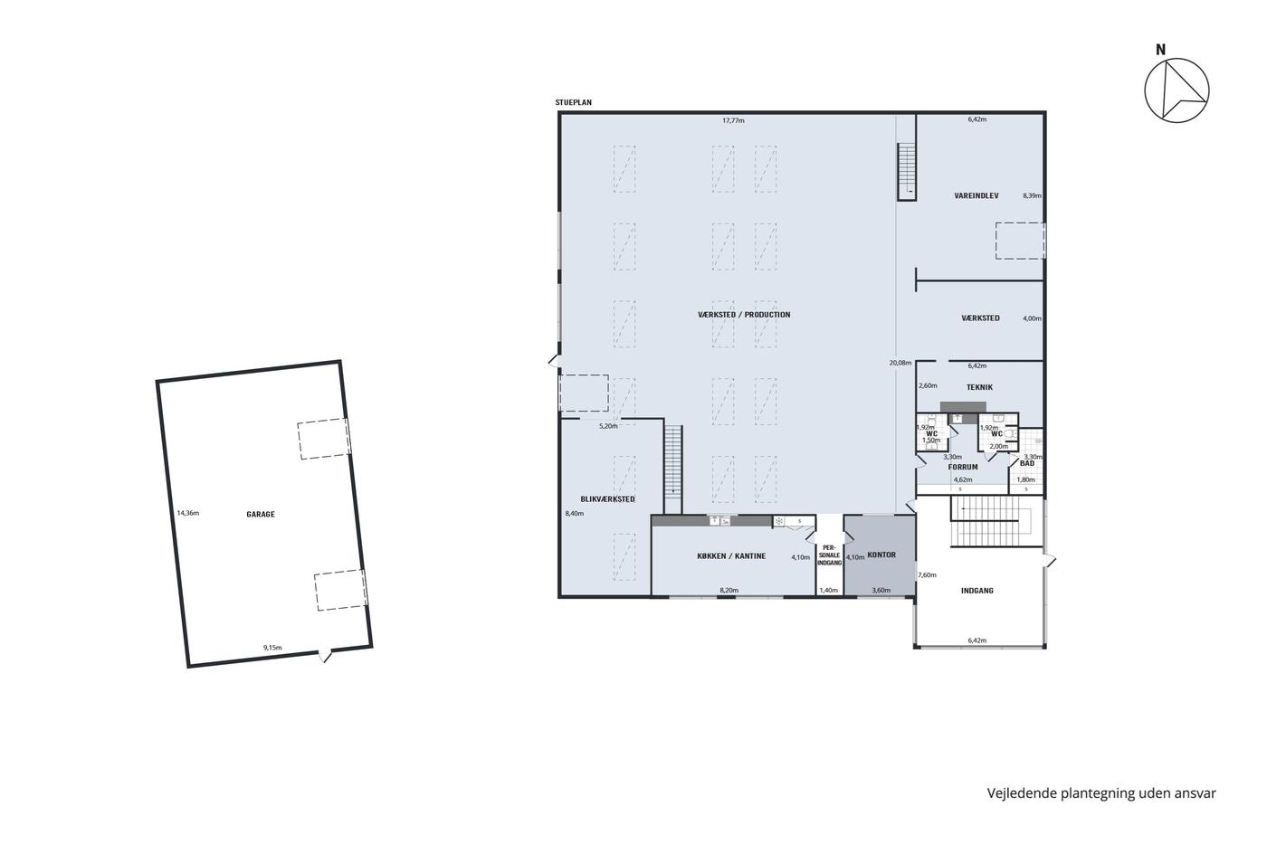
Bygningen er fordelt i tre etager, der giver jer en ideel kombination af lager og kontorlandskaber. Her er der i stueplan et stort værksted, der egner sig godt til lagerrum eller produktion. Her er der også et køkken med kantine, mens etagen også rummer mindre kontorer og værksteder samt et bad og to toiletter. Med bygningens store porte, er der her gode muligheder for varelevering.
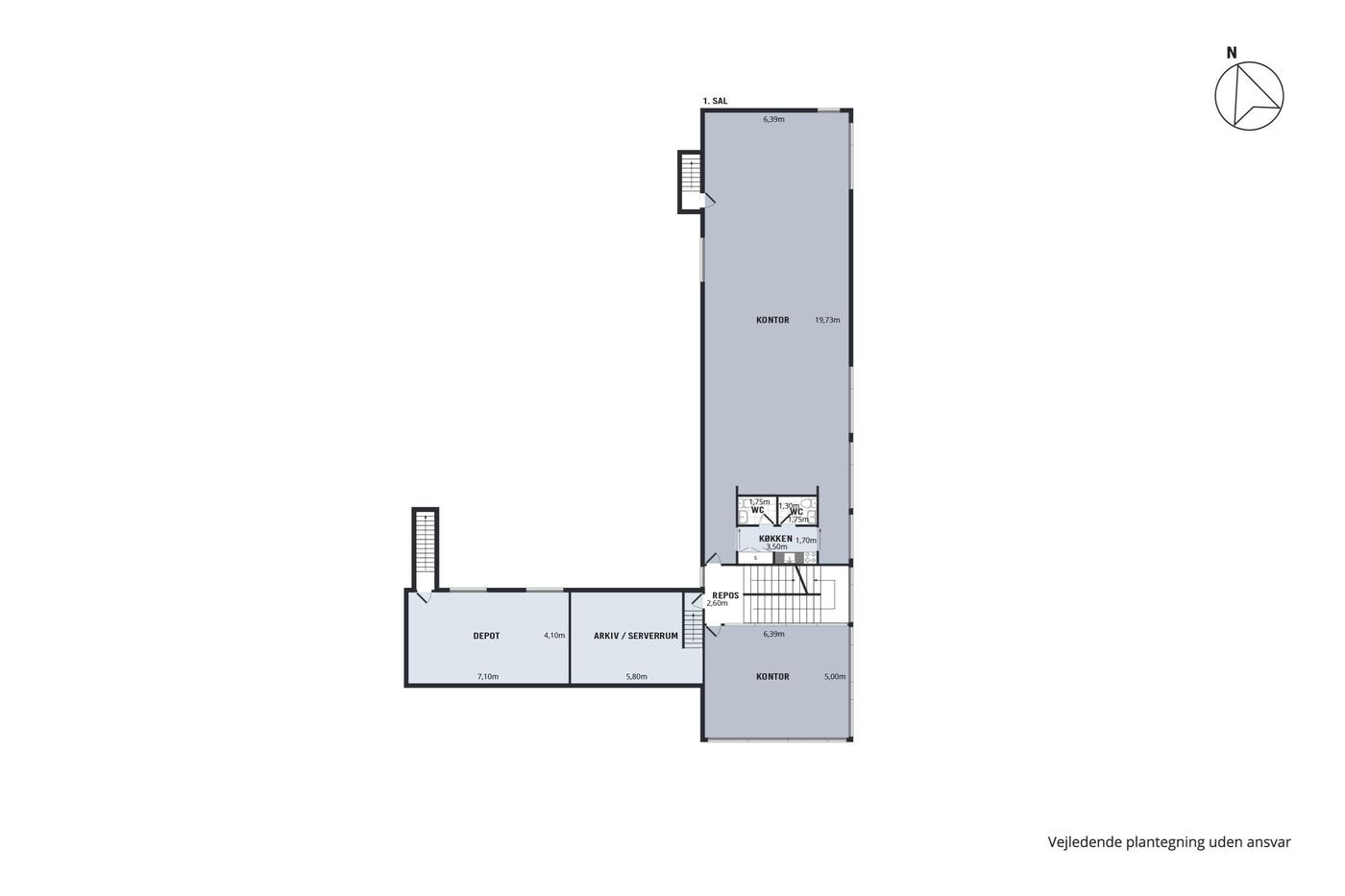
På første sal venter et stort, åbent kontorlandskab, som kan rumme en masse borde og stole. På etagen er også et køkken, et selvstændigt kontor, depotrum, kopirum og to toiletter.
På anden sal får I glæde af et stort mødelokale, og heroppe har I direkte udgang til et stort, vestvendt terrassemiljø, hvor frokostpausen kan nydes i de varme måneder.

Her er I ideelt placeret i et præsentabelt erhvervsområde, hvilket giver jer gode tilkørselsmuligheder til motorvejen og nær afstand til busforbindelser. I det hyggelige erhvervsområde i Hillerød er I omgivet af andre erhvervsdrivende, mens I også her er nær indkøbsmuligheder. Busforbindelser venter blot 220 m. væk, mens I er et stenkast fra motorvejstilkørsel.

Læs mere

Denne ejendom er solgt

Vil du vide mere?

Christian Jessen

chj@nordicals.dk

+4540518040

Askvang 4, st., 3400 Hillerød

+4570230047

3400@nordicals.dk

Besøg vores mæglerside

Lignende ejendomme

Til top