Elmevej 33 m.fl.
3450 Allerød

Sagsnr. 12-8822

Ejendomstype

Etageareal

Grund

Energiklasse

901 m²

8.921 m²

C, D, E, G

Attraktiv portefølje bestående af 6 boligejendomme

Nu udbydes en spændende porteføjle af boligudlejningsejendomme, hvor af 6 ud af 7 lejemål allerede er udlejede.

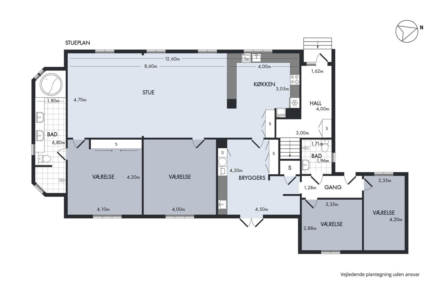
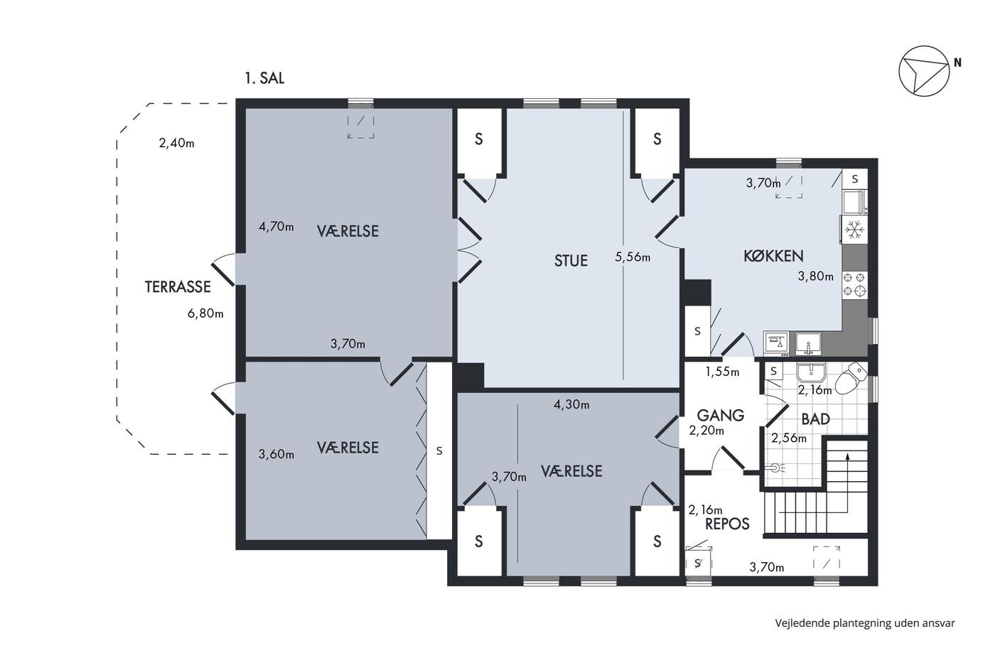
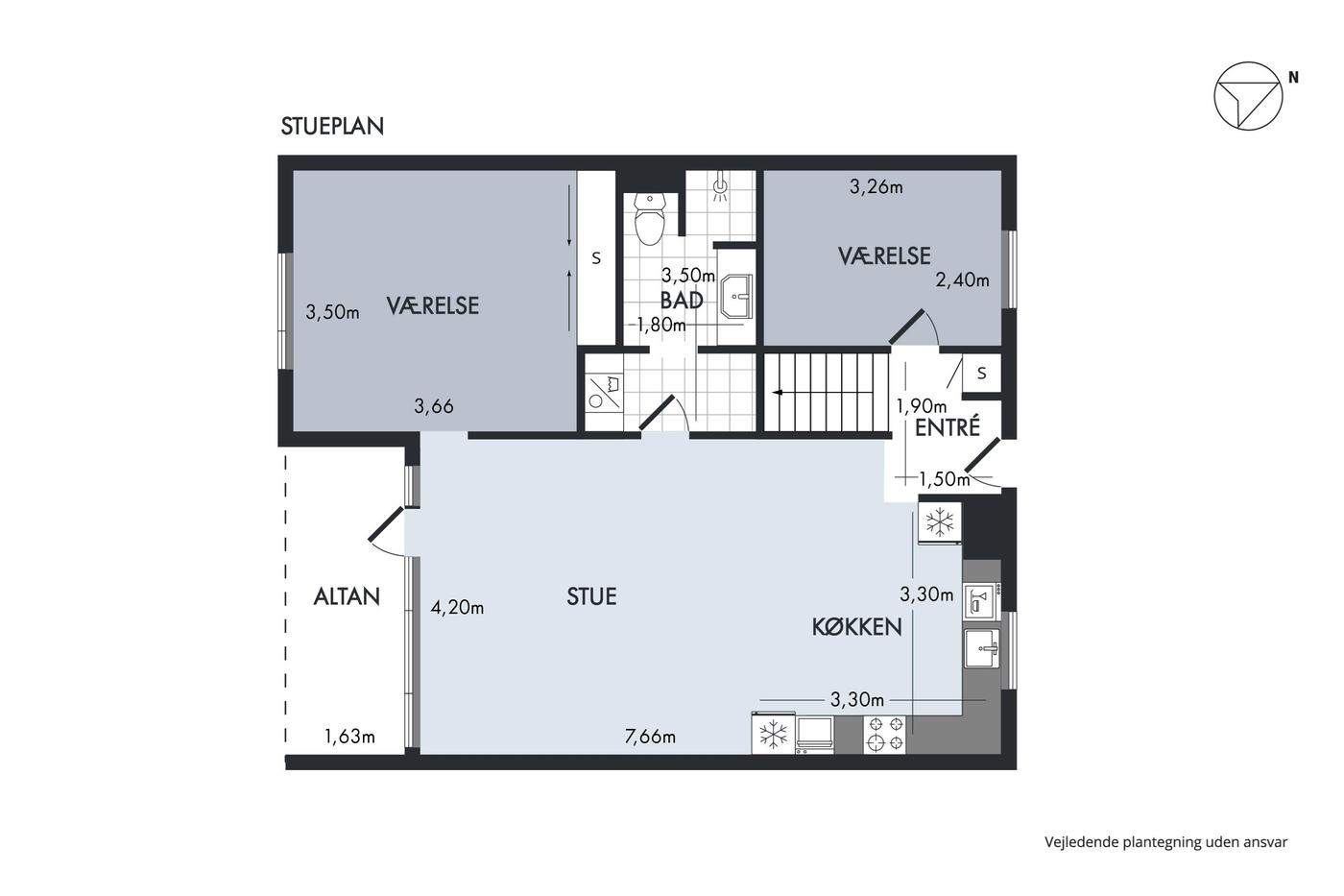
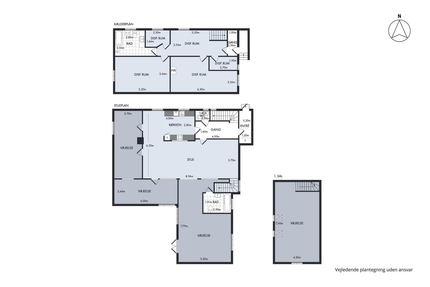
Ejendommene er beliggende på Birkebakken 6, 3460 Birkerød, Elmevej 33, 3450 Allerød, Hostrupsvej 30, 3. 305, 3400 Hillerød, Langesvej 12, 3400 Hillerød, Mosekrogen 30, 3450 Allerød og Pilevang 2, 2980 Kokkedal. Langesvej 12 er opdelt i 2 lejligheder, hvoraf 1. salen er udlejet.

Fælles for ejendommene er, at de hver især har et stort leje- eller salgs potentiale.

Ejendommene er fordelt centralt i Nordsjælland på nogle rigtige attraktive adresser. De har alle adresser i skønne boligområder tæt på centrum, hvor hverdagens fornødenheder er lige ved hånden, så man er sikret en bekvem hverdag. Der er generelt kort afstand til byens handlemuligheder og levende gadebillede samt togstation og indfaldsveje, som skaber en hurtig og bekvem forbindelse til resten af byerne.

Læs mere

Denne ejendom er solgt

Vil du vide mere?

Christian Jessen

chj@nordicals.dk

+4540518040

Askvang 4, st., 3400 Hillerød

+4570230047

3400@nordicals.dk

Besøg vores mæglerside

Lignende ejendomme

Til top