Rønnealle 41
3450 Allerød

Sagsnr. 12-9214

Ejendomstype

Etageareal

Grund

Energiklasse

363 m²

998 m²

E

Attraktiv erhvervsejendom med nyrenoverede lokaler i Lillerød

Drømmer du om at have din egen klinik, eller går du med tankerne om kontor eller noget helt tredje? I så fald bør du læse med nu, når vi præsenterer alle detaljerne ved denne attraktive erhvervsejendom på Rønnealle 41.

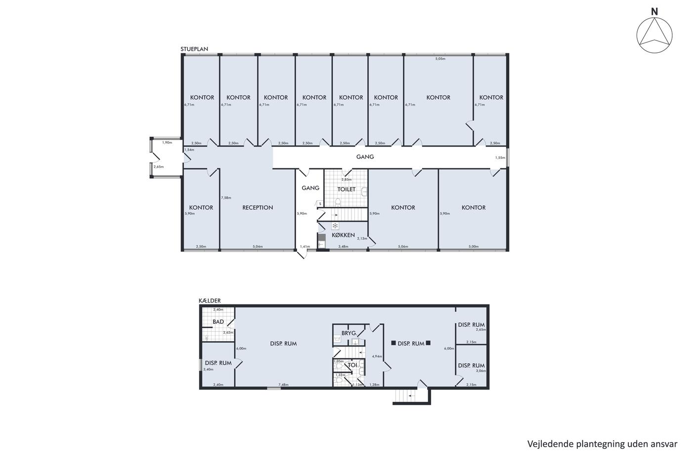
Vi åbner døren op for flotte, nyrenoverede lokaler, der vil udgøre de perfekte rammer for lige netop det erhvervseventyr, du går og drømmer om. Ejendommen byder sig til med en yderst god indretning, og lokalerne benyttes på nuværende tidspunkt som klinik, men der er mulighed for det hele. Du præsenteres nemlig for en stor og indbydende reception og hele 11 kontorlokaler, der varierer i størrelse og kan anvendes efter eget ønske. Praktikken er desuden sikret med gangareal, gæstetoilet og en hyggelig frokoststue, der er udstyret med de nødvendige hårde hvidevarer og har plads til spiseområde.

Indvendigt fremstår ejendommen pæn og istandsat fra start til slut, og ønsker du at benytte lokalerne til klinik, er den fuldstændig indflytningsklar. Ejendommens faciliteter er på samme tid yderst gode, og der er tilmed en stor, anvendelig kælder, som byder på bryggers, toiletfaciliteter samt bad og giver dig gode muligheder for opbevaring med mere.
Nuværende ejer har fået opsat solcelleanlæg og 2 elladestandere ved ejendommen. Der er ydermere klargjort til til ekstra ladestandere hvis dette skulle ønskes.

Beliggenheden trækker bestemt heller ikke ned, for ejendommens gode placering sikrer et godt kundeflow fra alle de nærliggende boliger - her mangler der altså ikke noget i kombination med yderst gode parkeringsfaciliteter. Der er under en kilometer til Allerød bymidte, hvor der er indkøbsmuligheder og gode forbindelser til offentlig transport med stationen, ligesom der er nem adgang til Hillerødmotorvejen.

Læs mere

Denne ejendom er solgt

Vil du vide mere?

Jakob Mygind

jmy@nordicals.dk

+4541400030

Askvang 4, st., 3400 Hillerød

+4570230047

3400@nordicals.dk

Besøg vores mæglerside

Lignende ejendomme

Til top