Kajerødvej 19
3460 Birkerød

Sagsnr. 12-9021

Ejendomstype

Etageareal

Grund

Energiklasse

442 m²

1.293 m²

D

Charmerende og løbende vedligeholdt investeringsejendom i Birkerød

På Kajerødvej 19 udbydes denne charmerende ejendom, der egner sig perfekt som investeringsejendom for jer, som gerne vil nyde godt af et fremtidigt godt afkast. Ejendommen er løbende vedligeholdt, hvortil den rummer en række fine lokaler, der allerede er udlejet til en god og pålidelig lejer - I skal altså ikke løfte en finger!

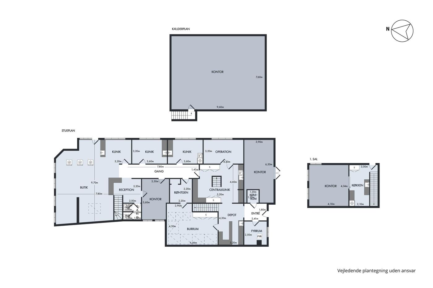
Ejendommen kan dateres tilbage til 1887, hvor facaden ses med hvidrammede sprossevinduer og stråtag. Den fine alder kan dog ikke mærkes hverken ude eller inde, da der er sørget for løbende vedligeholdelse. Indendørs venter en veltænkt planløsning med en god indretning, som er tilpasset den nuværende lejer. Der er her tale om en dyreklinik med et godt indgangs- og receptionsområde samt en række kliniklokaler, møderum, venteområder og selvfølgelig også de mere praktiske områder med køkken og toilet. Lokalerne er gennemgående lyse takket være de skønne sprossevinduer, der sørger for et indbydende og luftigt indre; og da det er løbende vedligeholdt, skal I ikke påtænke yderligere tid eller penge på istandsættelse.

Beliggenheden er ligeledes god, for ejendommen placerer sig trygt og godt i Birkerød blandt rolige parcelhuskvarterer og villaveje. Er kunderne i bil, kan de glæde sig over de gode tilkørselsforhold og nemme parkeringsmuligheder, hvor der bag ejendommen venter en rummelig parkeringsplads. I gåafstand til klinikken finder I desuden Birkerød Station, hvorfra både besøgende og medarbejdere er godt forbundne til det resterende Storkøbenhavn.

Læs mere

Denne ejendom er solgt

Vil du vide mere?

Claus Bro

cbr@nordicals.dk

+4540336326

Askvang 4, st., 3400 Hillerød

+4570230047

3400@nordicals.dk

Besøg vores mæglerside

Lignende ejendomme

Til top