Kildedalsvej 2
3460 Birkerød

Sagsnr. 12-8687

Ejendomstype

Etageareal

Grund

Energiklasse

356 m²

884 m²

D

Projekt ejendom med stort potentiale

Spændende projektmulighed med en rigtig god beliggenhed i centrum af Birkerød, i meget kort afstand til butikstorv med bl.a. dagligvareforretninger og i gå-afstand til stationen med gode forbindelser til Hillerød og København.

På grunden er der i dag en ældre daginstitution som er oplagt til at lave om til beboelseslejligheder. Dette giver en helt særlig mulighed for, at få en hel speciel investeringsejendom midt i Birkerød.
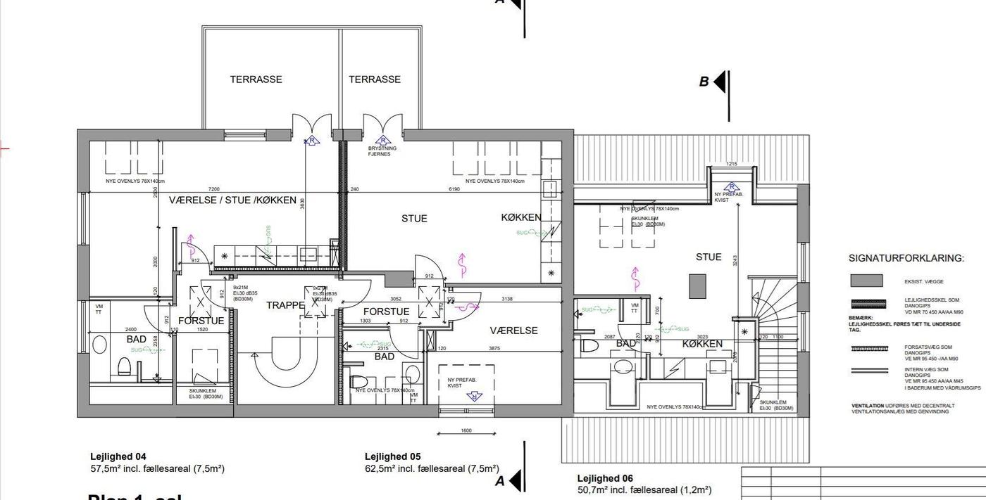
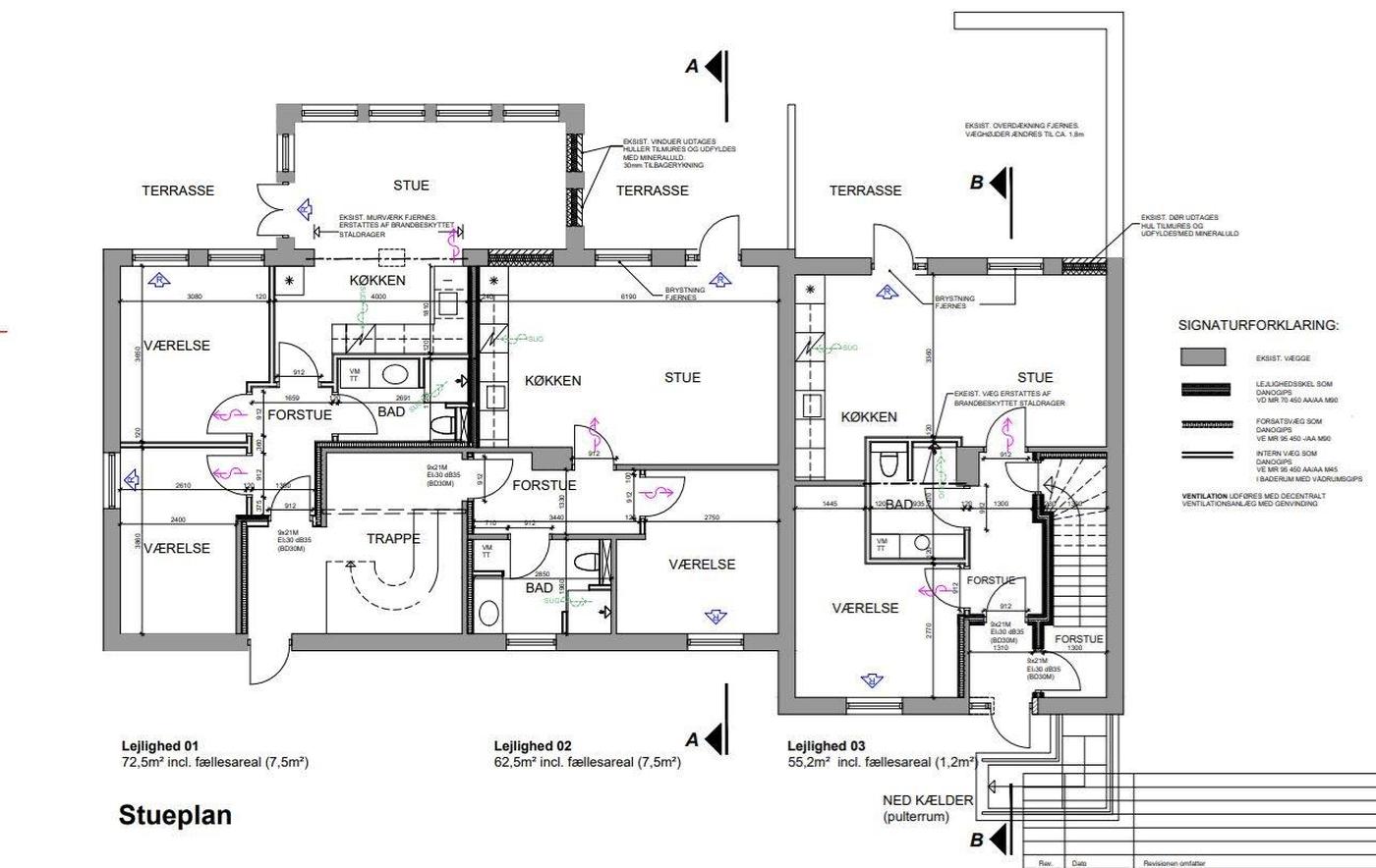
Grundens areal er 884 m² med en bebyggelsesprocent på 40%. Den nuværende bygning vil have 361 m² beboelses areal, fordelt på 6 lejligheder, fra 72 m² til 51m². Det er derfor rigtig god mulighed for, at få et rigtigt attraktivt afkast.

Ejendommen sælges som et håndværker tilbud, hvor der foreligger en byggetilladelse til 6 lejligheder.

Kontakt Nordicals Nordsjælland for mere information, og for aftale om eventuel besigtigelse af ejendommen.

Læs mere

Denne ejendom er solgt

Vil du vide mere?

Askvang 4, st., 3400 Hillerød

+4570230047

3400@nordicals.dk

Besøg vores mæglerside

Lignende ejendomme

Til top