Helsingørsvej 2
3480 Fredensborg

Sagsnr. 12-9394

Ejendomstype

Etageareal

Grund

1.112 m²

2.239 m²

Boligprojekt i hjertet af Fredensborg

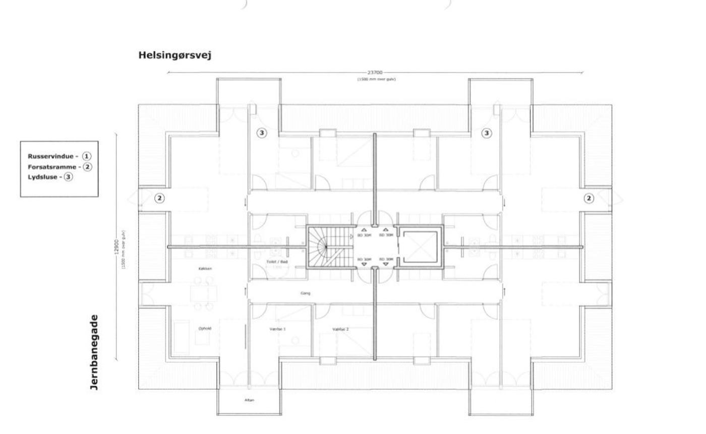
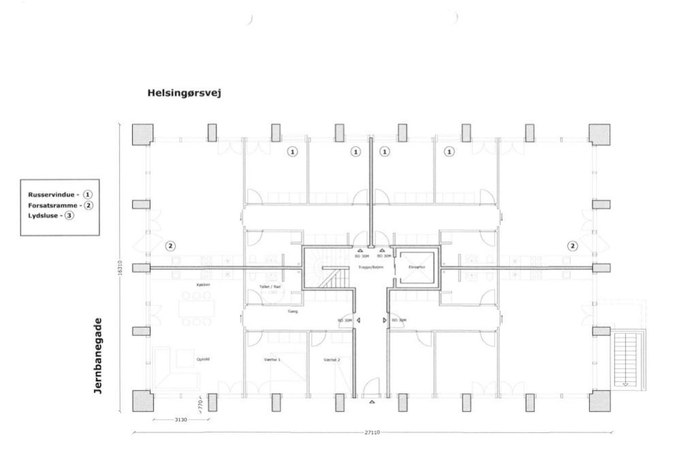
Nu udbydes denne attraktive projektejendom på Helsingørsvej 2 i Fredensborg med byggetilladelse til opførelse af 12 lejligheder med et
samlet boligareal på 1.119 m². Ejendommen er beliggende i en ureguleret kommune, hvilket giver en stor fleksibilitet i huslejesætningen
og dermed en særdeles attraktiv investering.

Ejendommen fremstår som en solid bygningsskal, der kan genanvendes, hvilket reducerer byggeomkostningerne betydeligt. Den skal
dog gennemgå en omfattende renovering, hvor du har mulighed for at sætte dit eget præg på lejlighedernes indretning og kvalitet.
Dette giver en unik mulighed for at skabe moderne og attraktive udlejningsboliger med lave driftsomkostninger.

Projektpotentiale:
Med en byggetilladelse til 12 lejligheder og et samlet boligareal på 1.119 m² tilbyder ejendommen et stort udviklingspotentiale i
Fredensborg, en by i vækst og med stigende efterspørgsel på moderne udlejningsboliger. Kombinationen af en ureguleret kommune og
en attraktiv beliggenhed giver en sikker lejeindtægt og mulighed for langsigtet værdistigning.

Beliggenheden på Helsingørsvej i hjertet af Fredensborg er yderst attraktiv med kort afstand til indkøb, offentlig transport og
Fredensborg Slot, hvilket gør lejlighederne særdeles eftertragtede for potentielle lejere.

Dette er en sjælden mulighed for at erhverve en projektejendom med stærkt udviklingspotentiale i en vækstkommune med stor
efterspørgsel på lejeboliger.

Læs mere

Denne ejendom er solgt

Vil du vide mere?

Deniz Alincak

dal@nordicals.dk

+45 2834 1801

Askvang 4, st., 3400 Hillerød

+4570230047

3400@nordicals.dk

Besøg vores mæglerside

Lignende ejendomme

Til top