Kirke Værløsevej 34
3500 Værløse

Sagsnr. 12-8578

Ejendomstype

Etageareal

Grund

Energiklasse

2.988 m²

3.241 m²

D

Attraktiv brugerejendom

Flot og velholdt ejendom opført i gule sten beliggende i attraktivt erhvervsområder

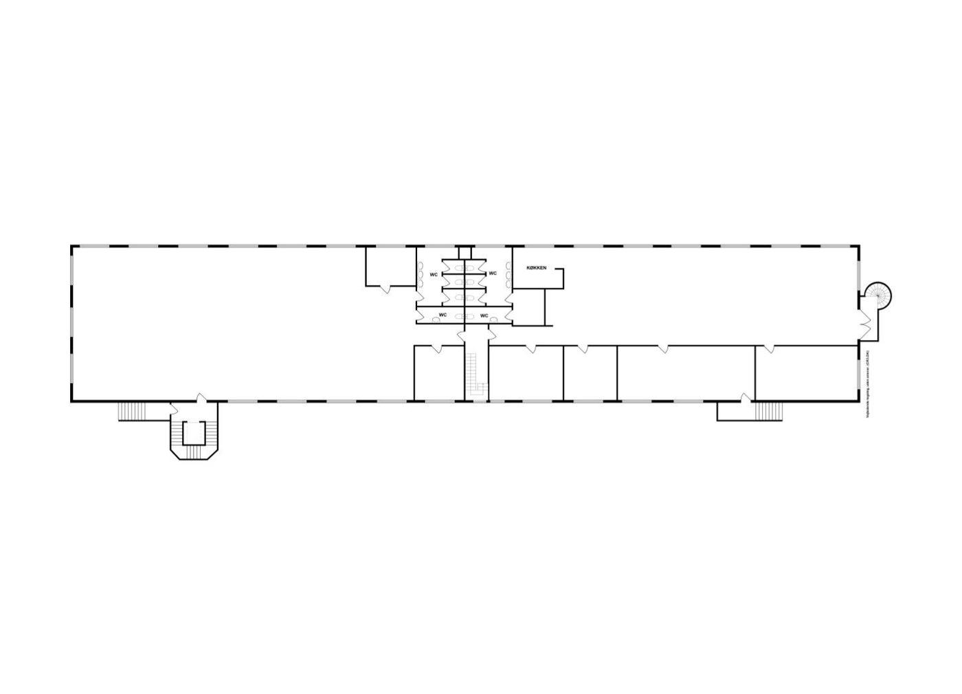
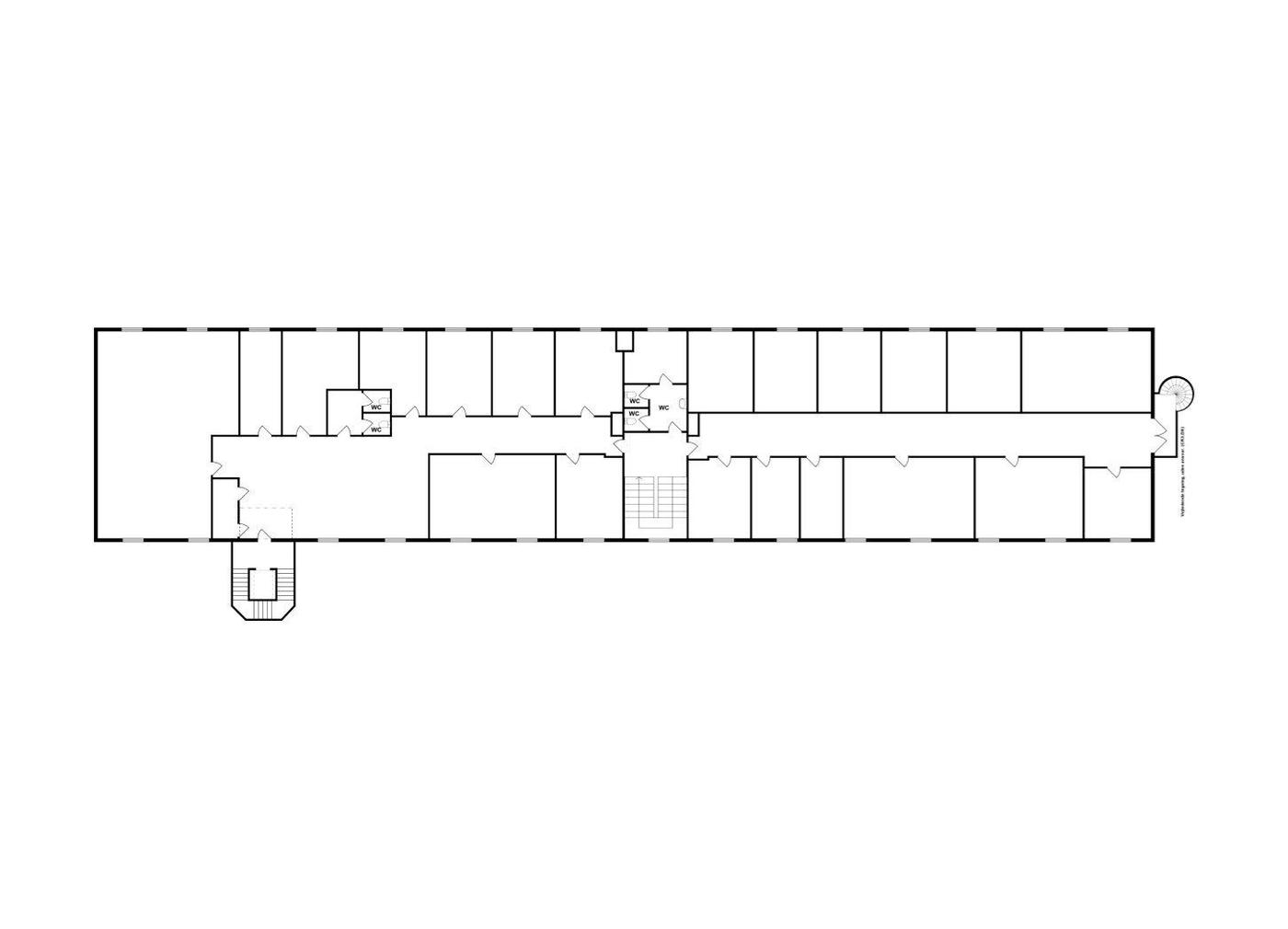
Ejendommen har et samlet areal på 2.988 m2, fordelt på 4 plan med 747 m2 pr. etage, som er forbundet via intern trappe og elevator.

I dag huser ejendommen foreningen DANA og A-kassen Frie, som har benyttet ejendommen siden 2011.
De fraflytter adressen når en ny ejer ønsker at overtage bygningen.

Bygningens stueetage fremstår pænt renoveret med lyse trægulve, samt nyere akustiklofter. I stueplan er tillige indrettet kantineområde med anretter-køkken.

Kontorerne på 1. & 2. sal er indrettet i varierende størrelser, og gulvene er belagt med tæpper.

I ejendommens underetage er det muligt at etablere let/fin produktion, eller lagerfaciliteter.
Det er muligt at få paller direkte ind via dobbelt dør.

Til ejendommen er tilknyttet ca. 40 parkeringspladser, placeret på ejendommens terræn.
Ejendommen er synligt beliggende i Værløses erhvervskvarter med ca. 10 minutter gang til Værløse Station.
Kvarteret er præget af mindre kontor- og produktionsejendomme, hvoraf Novo Nordisk blandt andet har etableret en afdeling, ligesom der er håndværksvirksomheder og træningscentret FitnessWorld.

Ejendommen kunne være ideel både til den mellemstore virksomhed, som skal have mere plads og den rette beliggenhed eller for en investor der vil have en ejendom der er meget ideel til udlejning.

Læs mere

Denne ejendom er solgt

Vil du vide mere?

Jakob Mygind

jmy@nordicals.dk

+4541400030

Askvang 4, st., 3400 Hillerød

+4570230047

3400@nordicals.dk

Besøg vores mæglerside

Lignende ejendomme

Til top