Lynghøjvej 10A
3540 Lynge

Sagsnr. 12-8495

Ejendomstype

Etageareal

Energiklasse

92 m²

E

Godt og billigt lejemål

Dette lejemål ligger placeret i et mindre butikscenter, som besøges af de lokale beboere. Lokalerne ligger side om side med en vinhandel, solcenter og spisested, hvor kunder og ansatte nemt kan parkere bilen lige foran butikken eller tage bussen, der holder mindre end 100m fra lokalerne. En ideelt beliggenhed for en erhvervsdrivende.

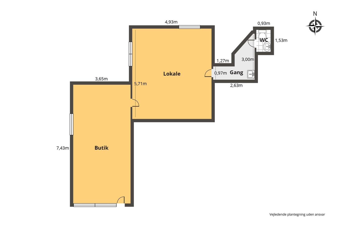
Her er der både mulighed for at indrette butik, kontor og klinik. Lejemålet fordeler sig nemlig over to gode lokaler, med flere forskellige anvendelsesmuligheder. Det første rum har en god synlighed fra gaden, og egner sig i særdeleshed som butikslokale, hvor der både er plads til at udstille varer.

Baglokalet danner de perfekte rammer for et tilhørende kontorområde, hvor du kan have din daglige gang og hvor der kan holdes kundemøder. Hvis et kontor ikke er nødvendigt, så egner det regulære lokale sig også godt som en stor frokoststue for de ansatte. Til baglokalet hører desuden et wc, samt en gang med en håndvask.

Læs mere

Denne ejendom er udlejet

Vil du vide mere?

Askvang 4, st., 3400 Hillerød

+4570230047

3400@nordicals.dk

Besøg vores mæglerside

Lignende ejendomme

Til top