Nøglegårdsvej 14
3540 Lynge

Sagsnr. 12-9618

Ejendomstype

Etageareal

Grund

Energiklasse

1.313 m²

2.001 m²

D

Kontantpris

Købspris pr. m²

Årlig driftsudgift

Årlig driftsudgift pr. m²

8.600.000 kr.

6.550 kr.

56.675 kr.

43 kr.

Brugerejendom til lager og produktion med god loftshøjde

På attraktiv placering i Lynge udbydes denne regulære og velindrettede erhvervsejendom, der er særdeles velegnet til lager, produktion eller kombineret værksteds- og kontorvirksomhed. Ejendommen fremstår funktionel og med en god intern disponering, hvor lager- og produktionsarealer suppleres af kontor, personalefaciliteter samt hems.

Stueplan rummer større sammenhængende lager- og produktionsarealer med god frihøjde, der giver optimale arbejdsforhold og fleksibilitet i indretningen. Der er etableret varemodtagelse med nem adgang, hvilket sikrer effektiv logistik i hverdagen. Herudover forefindes kontorafsnit, printerrum, fælles indgang, omklædningsfaciliteter, toiletter samt køkken - en samlet løsning, der understøtter både drift og administration under samme tag.

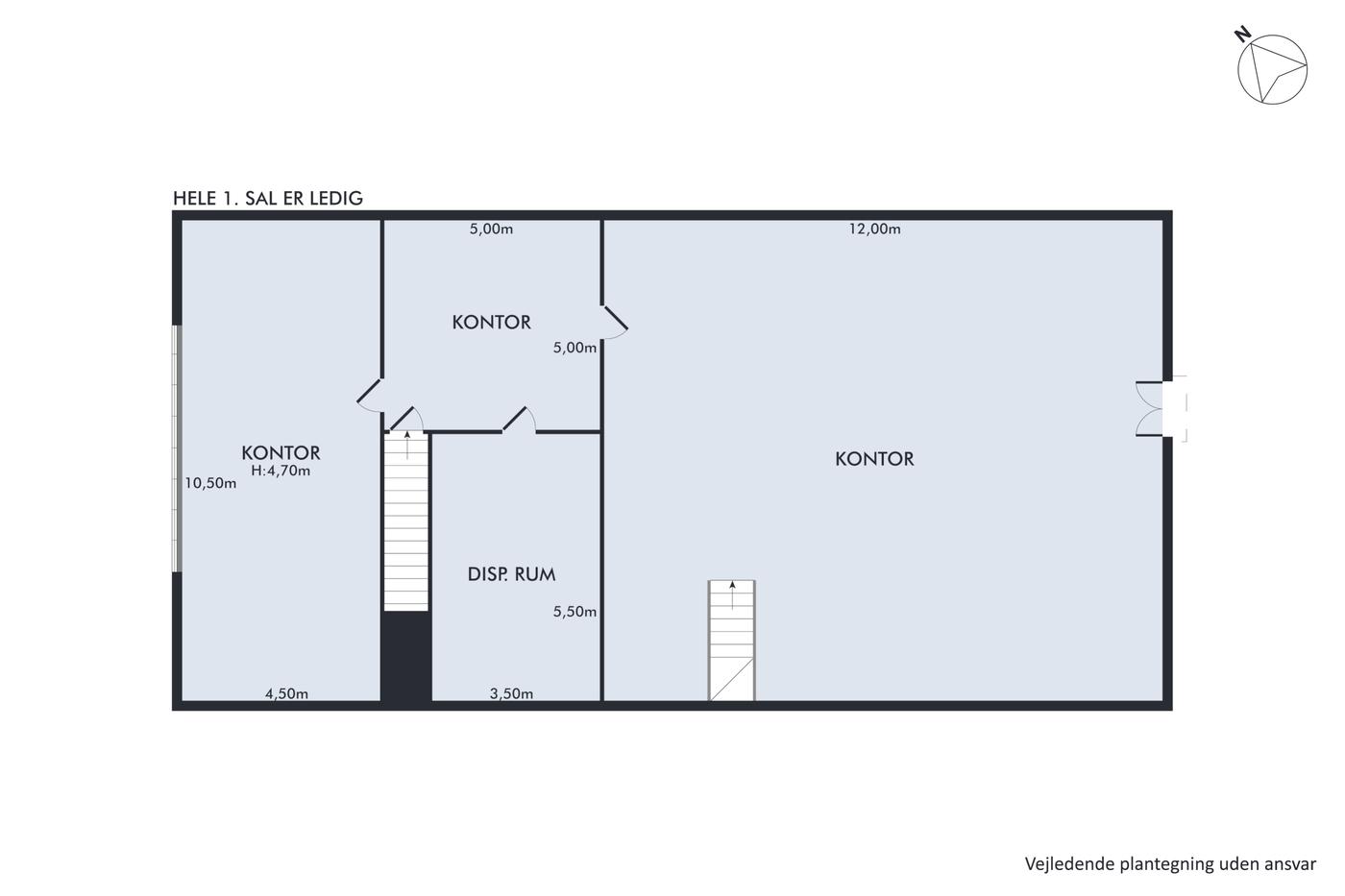
1. salen er indrettet med kontor- og disponibelt areal og giver mulighed for at samle administrationen adskilt fra produktionen. Den tilhørende hems bidrager med yderligere opbevaringskapacitet.

Ejendommen er beliggende på en hjørnegrund med god synlighed og tilkørselsforhold. Der er parkeringsmuligheder på egen grund, og området er præget af blandet erhverv med kort afstand til overordnet vejnet, hvilket giver let adgang for både medarbejdere og leverandører.

En oplagt mulighed for virksomheden, der ønsker egen base med lager og produktion samlet.

Læs mere

Vil du vide mere?

Christoffer Hendrich

chr@nordicals.dk

+4561603979

Askvang 4, st., 3400 Hillerød

+4570230047

3400@nordicals.dk

Besøg vores mæglerside

Lignende ejendomme

Til top