Smedevangen 8
3540 Lynge

Sagsnr. 12-8144

Ejendomstype

Etageareal

Grund

1.195 m²

2.390 m²

Erhvervsejendom med produktion- og kontorafdeling

På Smedevangen 8 i Lynge udbydes denne erhvervsejendom til salg.

Ejendommen er attraktivt beliggende i et godt erhvervsområde, hvor flere forskellige virksomheder drives. Området ligger i Nymølle, bare fem minutter fra hyggelige Lynge. Der er gode tilkørselsforhold for både personale, samarbejdspartnere og potentielle kunder, og hvis I skal med det offentlige, så er der busforbindelser lige rundt om hjørnet.

Erhvervet fremtræder præsentabelt med fine parkeringsmuligheder foran døren.

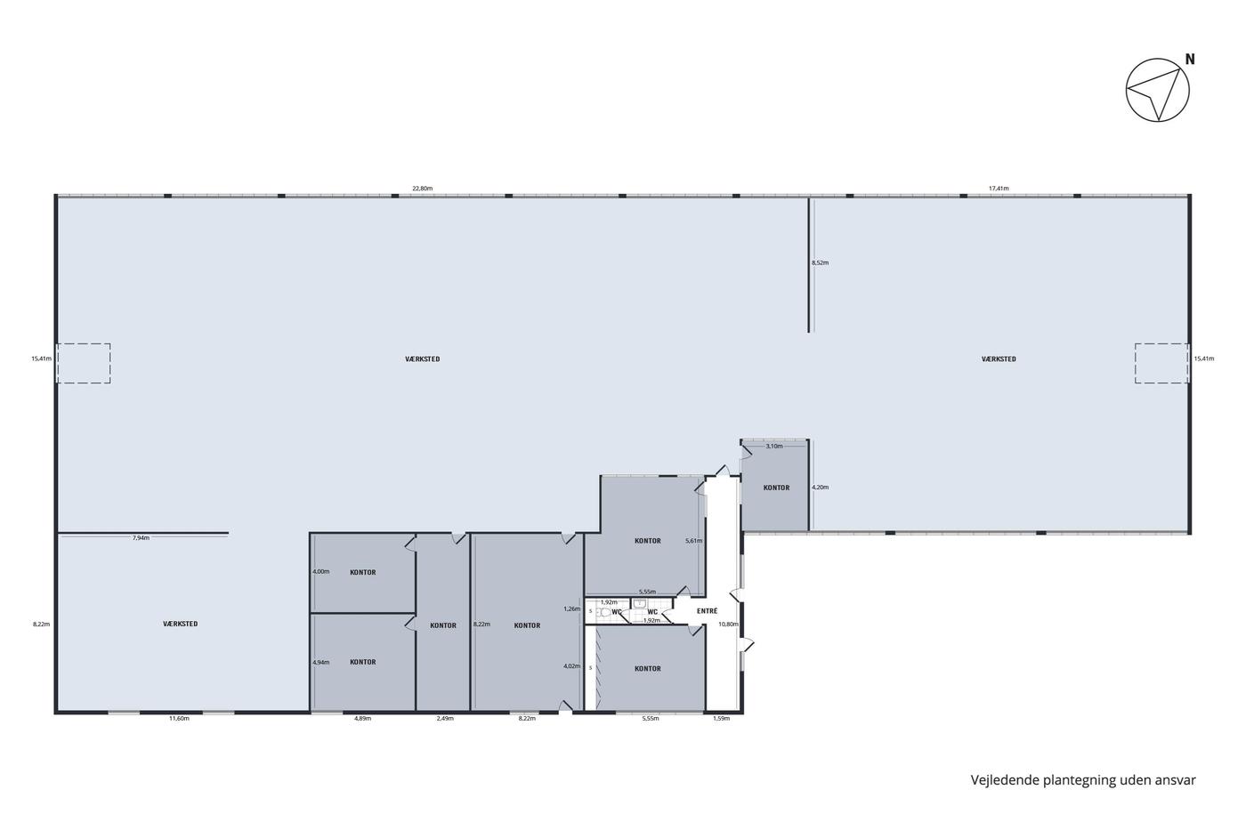
Ejendommen er godt indrettet med produktionsafsnit og en afdeling, hvor der er kontorlokaler og administration. Produktionsafsnittet har masser af plads, højt til loftet og gode porte, som giver nem adgang til lokalerne med bil og andet maskinværktøj. Alternativt kan lokalerne anvendes som lager. De i alt seks kontorer og et gennemgangsrum giver rig plads til administrationsteamet, åbne kontorlandskaber og dagligdagens møder. Gennemgående for ejendommen er en udmærket stand og gode lokaler, der giver masser af muligheder for at drive forskellige typer erhverv.

Kontakt os for en fremvisning i dag og oplev mulighederne på egen hånd.

Læs mere

Denne ejendom er solgt

Vil du vide mere?

Askvang 4, st., 3400 Hillerød

+4570230047

3400@nordicals.dk

Besøg vores mæglerside

Lignende ejendomme

Til top