Jernbanegade 13, ST.
3600 Frederikssund

Sagsnr. 12-8185

Ejendomstype

Etageareal

Grund

Energiklasse

419 m²

829 m²

C

PRÆSENTABEL ERHVERVSEJENDOM MIDT PÅ GÅGADE

På Jernbanegade 13 kan du nu udleve erhvervslivet med den helt rigtige adresse.

Vi befinder os midt på en stemningsfyldt gågade, hvor mange købelystne folk færdes hver dag. Erhvervslokalerne ligger midt i gadebilledet med god synlighed og store facadevinduer, som skaber blikfang og lokker folk indenfor. Her bliver I en del af et levende erhvervsliv og jeres nye naboer består bl.a. af spisesteder, banker, specialbutikker, frisører og forretninger, der alt sammen er med til at tiltrække kunder.

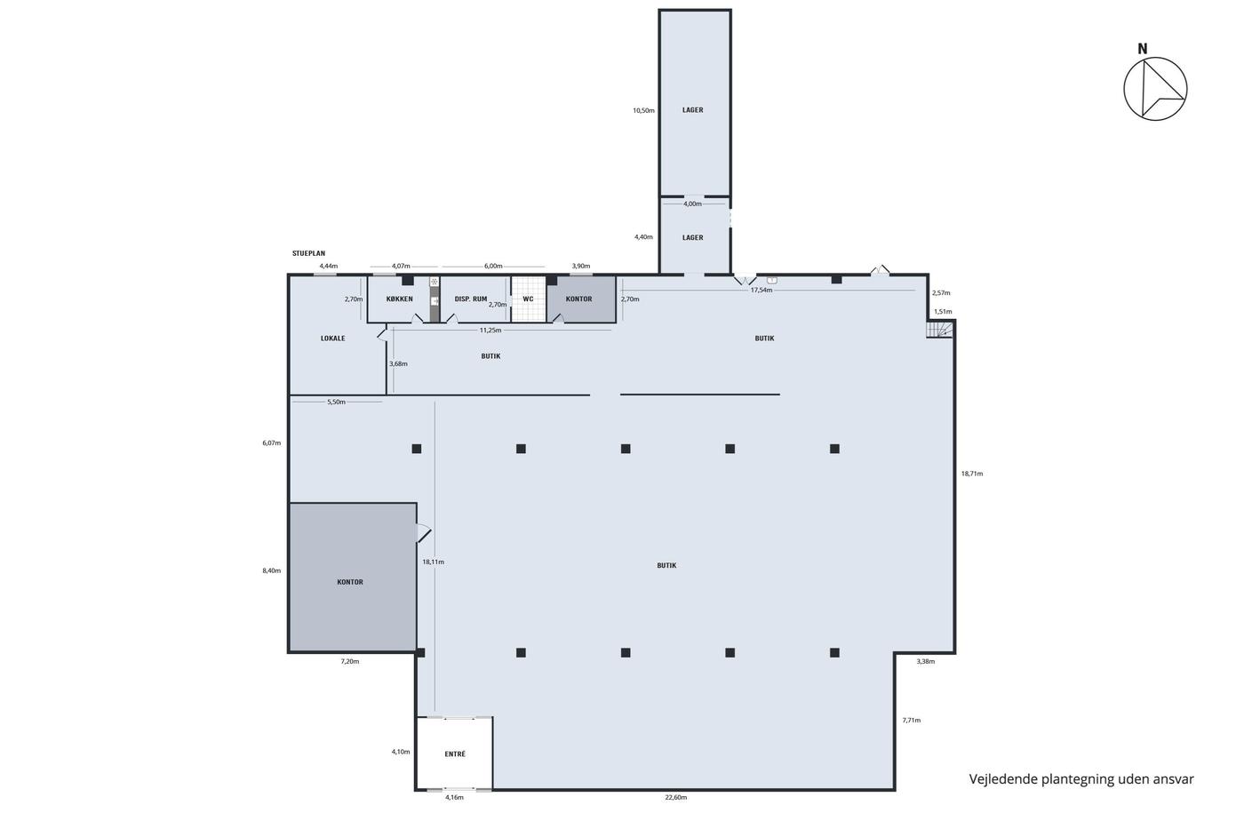
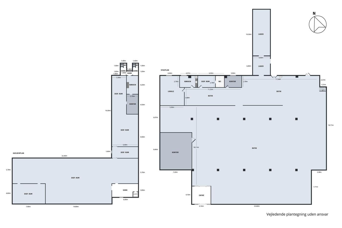
Indenfor ses store og lyse lokaler, der står klar til at danne ramme om din restaurant, café, klinik eller eventuelt butik. Med så indbydende lokaler som disse, er alle muligheder stort set åbne.

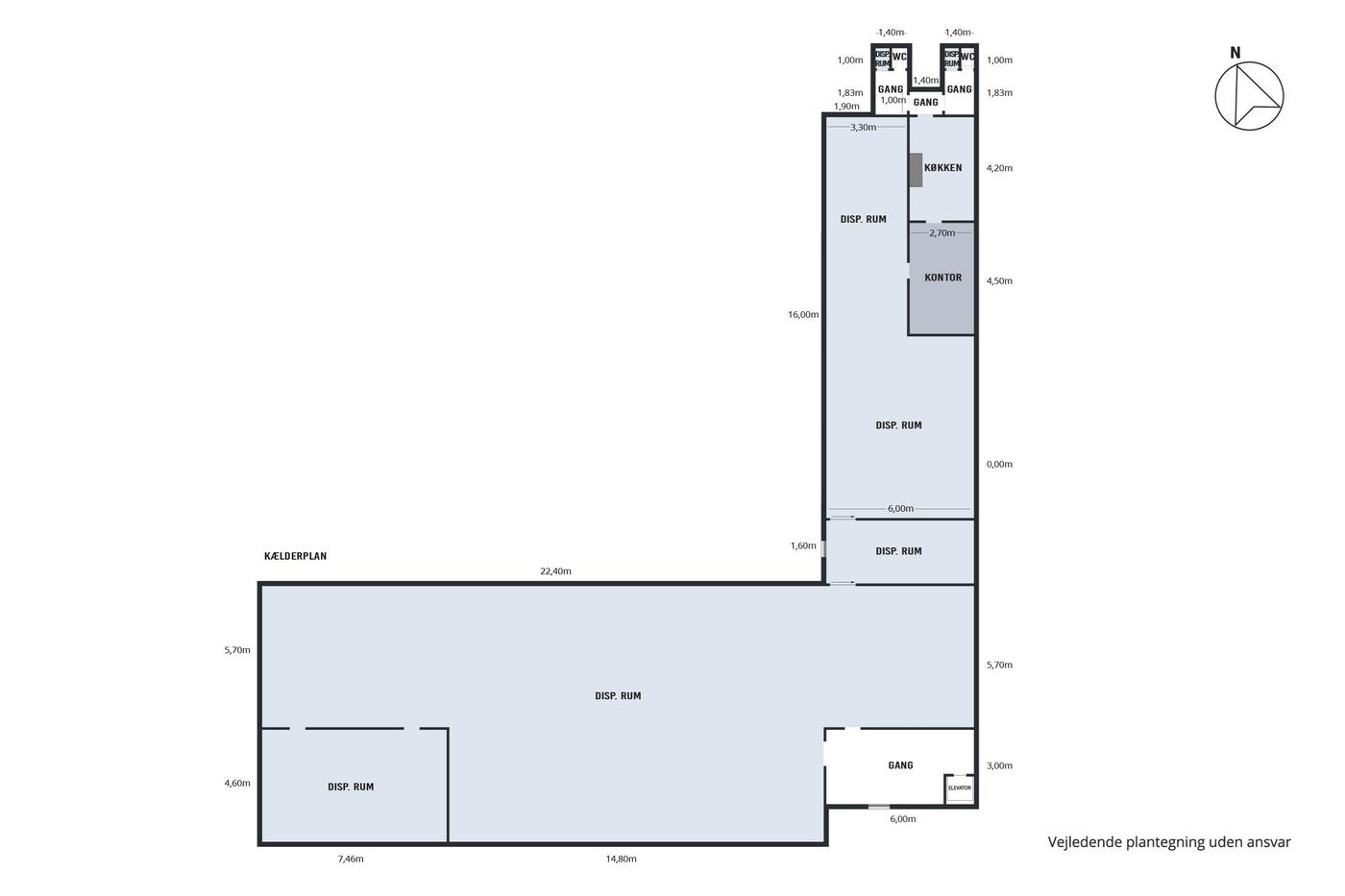
Fra gaden træder I direkte ind i meget stort lokale med masser af lys og plads. Hvis du drømmer om at drive restaurant, så vil det her være den perfekte spisesal, imens køkkenet kan indrettes i den tilstødende kantine. Lokalet er også ideelt som en luksuriøs klinik eller en stor og indbydende butik. Afslutningsvis er der to afdelinger med toiletfaciliteter, der nemt kan opdeles til mænd og kvinder eller personale og kunder.

Kontakt os for en fremvisning i dag.
Vi glæder os til at vise jer rundt.

Læs mere

Denne ejendom er udlejet

Vil du vide mere?

Claus Bro

cbr@nordicals.dk

+4540336326

Askvang 4, st., 3400 Hillerød

+4570230047

3400@nordicals.dk

Besøg vores mæglerside

Lignende ejendomme

Til top