Smedetoften 6
3600 Frederikssund

Sagsnr. 12-8142

Ejendomstype

Etageareal

Grund

2.237 m²

5.704 m²

Stor lagerejendom nord for København

I udkanten af Frederikssund ligger der en stor lagerbygning, som kan blive din. Så har du et firma, hvor der er behov for en masse lagerplads, er der her den helt perfekte erhvervsejendom, som vil kunne opfylde dine behov.

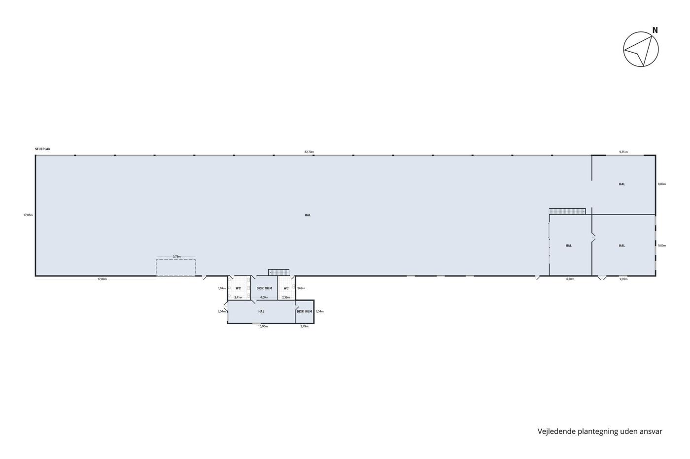
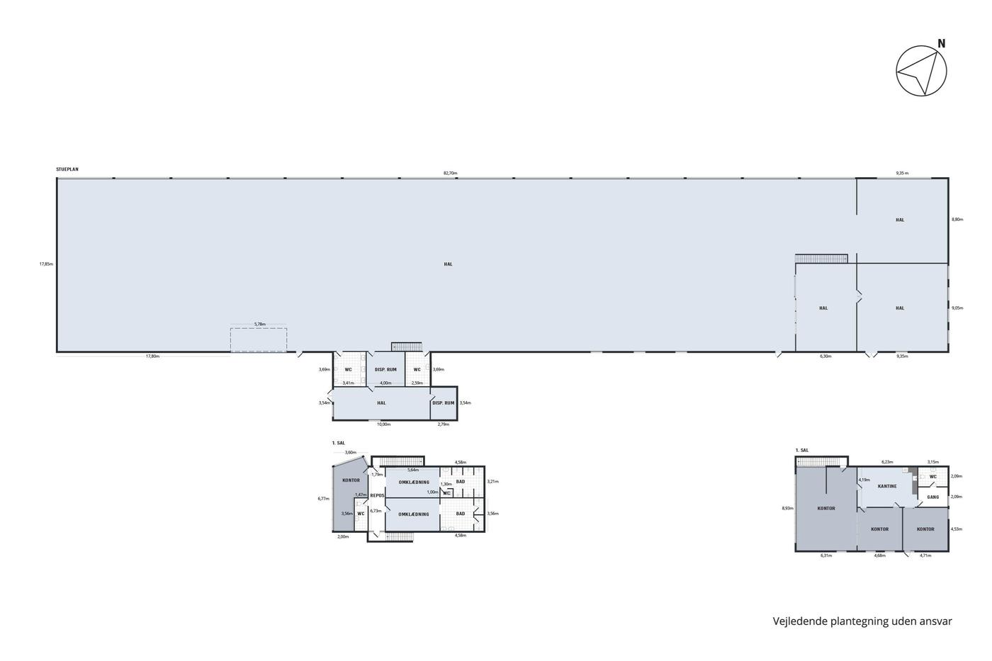
Erhvervsejendommen har et samlet areal på imponerende 2273 kvadratmeter, og her er altså masser af plads til lager og produktion.

Ejendommen består først og fremmest af at stort og højloftet lagerrum, hvor der er enormt meget plads. På ejendommens 1. sal ligger to omklædningsrum med tilhørende baderum, og dette er ganske oplagt, hvis du har ansatte, der har brug for et sted, hvor de kan klæde om. På 1. salen ligger også et lækkert kontorafsnit indrettet med tre store kontorlokaler og et område med køkken. I forlængelse af køkkenet ligger også et WC.

Bag den store lagerbygning er der en bred port, som gør det muligt let og problemløst at fragte varer både ind og ud af lageret.

Lagerbygningens placering i Frederikssund er ganske oplagt. Fra ejendommen er der kun 47 minutter i bil ind til centrum af København. I Frederikssund ligger derudover mange gode butikker, så skulle man have glemt frokosten eller have brug for nogle dele til en eventuel produktion, kan dette let klares i byen.

Ejendommen udbydes efter reglerne i Lov om kommunernes styrelse § 68 og Bekendtgørelse nr. 799 af den 24. juni 2011 om offentligt udbud ved salg af kommunens henholdsvis regionens faste ejendomme.

Henvendelse om udbudsmateriale og udbudsvilkår rettes til Nordicals Nordsjælland A/S.

Købstilbud skal være skriftligt og angive et fast beløb samt købers fremtidige anvendelse af ejendommen. Tilbud skal angives på den af Nordicals Nordsjælland A/S udarbejdede købsaftale og afleveres / fremsendes sammen med behørig billedlegitimation i lukket kuvert til Nordicals Nordsjælland A/S, Helsingørsgade 21, 2., 3400 Hillerød, mrk. "Smedetoften 6, 3600 Frederikssund".

Budfrist onsdag d. 27.11.2019 kl. 12.00

Ejendommen er under udmatrikulering hvorfor at der taget forbehold for, at det endelige areal bliver tinglyst.
Grundet udmatrikuleringen kan der muligvis kun opnås betinget skøde indtil udmatrikuleringen er endelig.

Læs mere

Denne ejendom er solgt

Vil du vide mere?

Askvang 4, st., 3400 Hillerød

+4570230047

3400@nordicals.dk

Besøg vores mæglerside

Lignende ejendomme

Til top