Solbakkevej 2 og Dysagervej 7
3630 Jægerspris

Sagsnr. 12-9029

Ejendomstype

Etageareal

Grund

2.266 m²

12.579 m²

Kontantpris

Købspris pr. m²

Årlig driftsudgift

Årlig driftsudgift pr. m²

8.100.000 kr.

3.575 kr.

50.840 kr.

22 kr.

Mulighedsrigt erhverv i form af veletablerede lagerhaller

På Solbakkevej kan vi nu præsentere dette lager/logistik eller værksted, der både råder over masser af plads inde i erhvervsmålet samt gode udendørs faciliteter og ideelle parkeringsmuligheder.

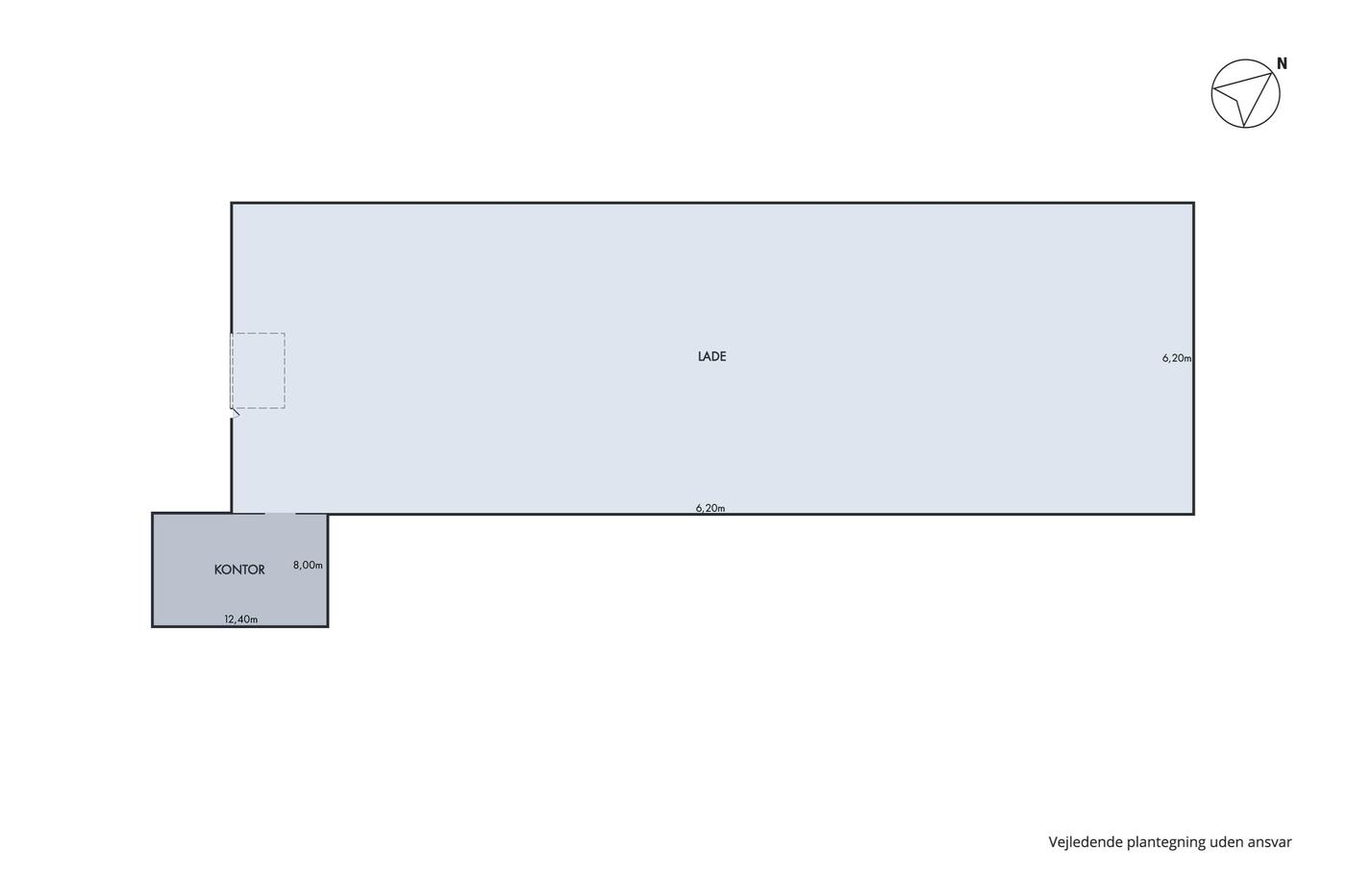
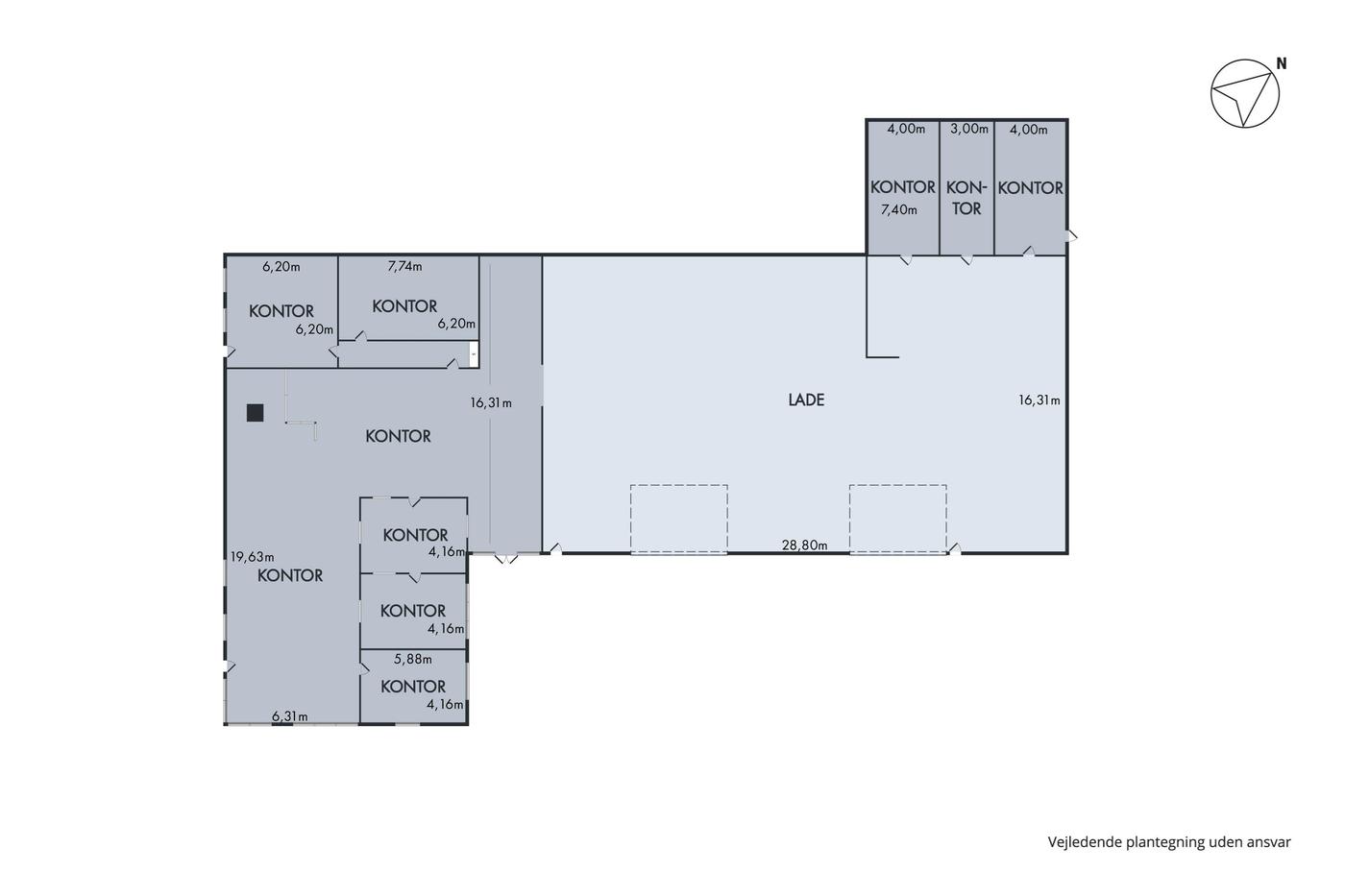
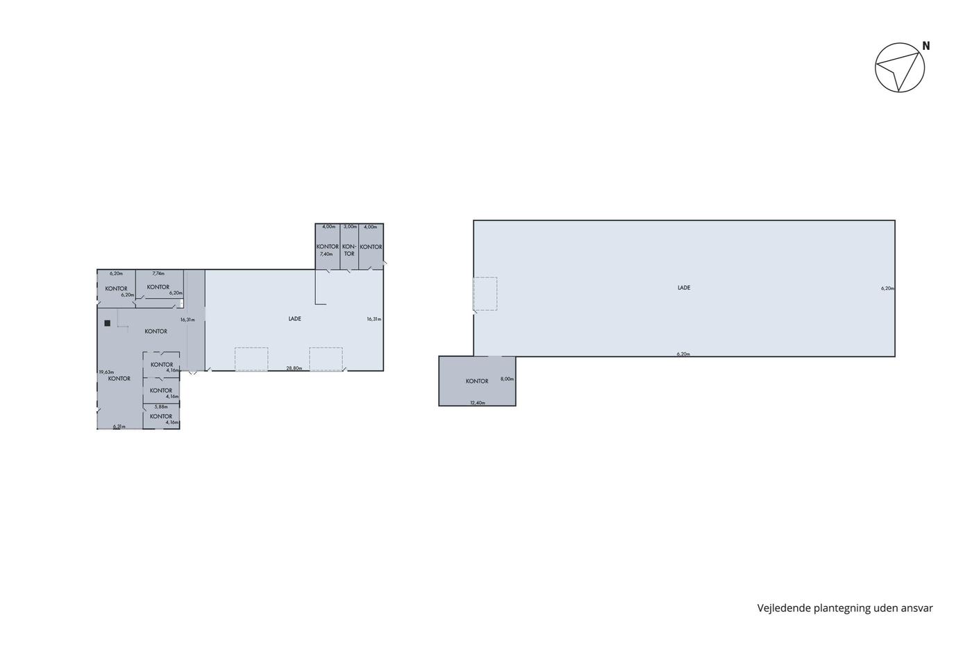
Ejendommen består af to lader, hvoraf den ene er ombygget med masser af kontorlokaler og et stort og åbent rum, mens den anden mestendels består af et lyst og pladsrigt lokale. Den ene bygning er moderniseret i en vis grad og kan med fordel benyttes til udlejning til forskellige kunder, om der søges lager eller velbelyste kontorrum, mens den anden bygning har bevaret ladens klassiske udlægning; her kan fremtidige ejer vælge at modernisere rummet og forvandle det til et smukt selskabslokale eller simpelthen bare etablere et funktionsdygtigt værksted. Mulighederne er mange!

Udendørs præsenterer ejendommen sig med optimale parkeringsforhold i form af en stor gårdsplads; denne kan ligeledes benyttes til opbevaring, mens græsarealet er til fremtidig fordel, hvis det er festlokalerne og de nydelige grønne omgivelser, man vil fokusere på. Bussen afgår lige om hjørnet fra erhvervet, mens Dalby ellers kan dække de nødvendige behov i Dagli'Brugsen. Derudover byder byen på skole samt ture ved Dalby Gadekær, mens beliggenheden kun seks kilometer nord for Skibby sikrer ideelle muligheder for besøg af andre byer, heriblandt både Frederikssund og Jægerspris.

Læs mere

Vil du vide mere?

Claus Bro

cbr@nordicals.dk

+4540336326

Askvang 4, st., 3400 Hillerød

+4570230047

3400@nordicals.dk

Besøg vores mæglerside

Lignende ejendomme

Til top