Tinghøjvej 14
3650 Ølstykke

Sagsnr. 12-8968

Ejendomstype

Etageareal

Grund

572 m²

5.880 m²

Mulighedsrigt lagerlejemål nær Ølstykke

Velkommen til det nordøstlige Sjælland, hvor dette lejemål på Tinghøjvej 14 står klar med flere praktiske rum til diverse opbevaring. Den geografisk gode placering mellem Ølstykke og Jyllinge gør lageret meget attraktivt, uanset hvilken nordøstsjællandsk by der er din daglige base.

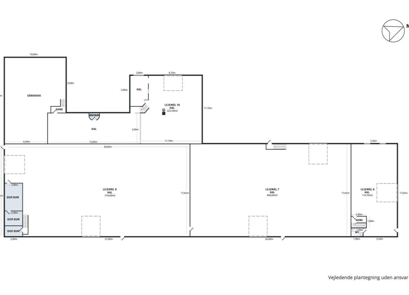
Lagerlejemålet er i middel stand, holder til i en bygning opført i 1971 og tilbyder som prikken over i'et 1243 regulære kvadratmeter med porte, der gør det nemt at få adgang med bilen. De mange kvadratmeter fordeler sig blandt andet på to store lagerrum og flere mindre disponible rum. Dette betyder selvsagt, at lejemålet åbner op for et hav af muligheder, som du kan gribe helt efter eget behov. Lagerejendommen indeholder ligeledes et lille toilet og en brændeovn til de køligere dage.

Til den sjællandske familie er beliggenheden af den slags, man ellers skal lede længe efter. Det tager nemlig kun omkring ti minutter at køre i bil til både Ølstykke og Gammel Ølstykke via motorvejen - hyggelige byer, der danner hjemlig ramme for adskillige familier og åbner op for et fint udvalg af butikker, skoler og daginstitutioner. Kører du derimod den modsatte retning via samme motorvej, når du byen Jyllinge samt udsigten over Roskilde Fjord på bare et øjeblik. Med motorvejen lige i nærheden giver lageret på Tinghøjvej 14 altså lynhurtig adgang til hele resten af Sjælland.

Hvis du går og leder efter nogle nemme og overskuelige lagerlokaler, så smut forbi Tinghøjvej - og nyd i samme ombæring de smukke omgivelser af marklandskaber og fjordudsigt.

Læs mere

Denne ejendom er udlejet

Vil du vide mere?

Claus Bro

cbr@nordicals.dk

+4540336326

Askvang 4, st., 3400 Hillerød

+4570230047

3400@nordicals.dk

Besøg vores mæglerside

Lignende ejendomme

Til top