Algade 8A
4000 Roskilde

Sagsnr. 20825148

Ejendomstype

Etageareal

Energiklasse

193 m²

D

Årlig leje

Leje pr. m²

Depositum

Årlig driftsudgift

Årlig driftsudgift pr. m²

458.375 kr.

2.375 kr.

229.188 kr.

50.600 kr.

262 kr.

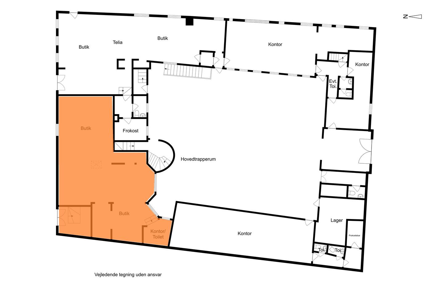
Flot og charmerende lokale i hjertet af Roskilde

I det "gamle" apotek tæt på Stændertorvet og i hjertet af Roskilde findes dette flotte lejemål.

Lejemålet er med 193 kvm. butik med en flot vinduesfacade ud mod Algade. Butikker i nærheden af lejemålet er bl.a. Lagkagehuset, Norlys, Roccamore, Matas. Butikken ligger i den gode ende af Algade og i en idyllisk ejendom, og fremstår flot og indbydende.

Lejemålet er hævet lidt over niveau, men med let adgang for alle, da der er lavet fin rampe. I lejemålet er der et stort salgslokale samt mindre personalerum, the-køkken og toilet bagerst i lokalet.

Lejemålet kan overtages og indrettes efter nærmere aftale, dog ønsker udlejer ikke, at have nogen former for café eller restauranter i lokalet.

Læs mere

Vil du vide mere?

Tonny Olsen

ton@nordicals.dk

+45 2020 7268

Allehelgensgade 8 , 4000 Roskilde

+45 4635 2292

4000@nordicals.dk

Besøg vores mæglerside

Lignende ejendomme

Til top