Jernbanegade 58, st.tv
4000 Roskilde

Sagsnr. 20825257

Ejendomstype

Etageareal

Energiklasse

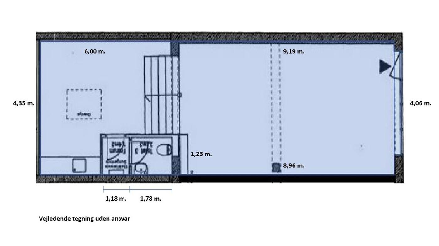
231 m²

D

Årlig leje

Leje pr. m²

Depositum

258.000 kr.

1.117 kr.

129.000 kr.

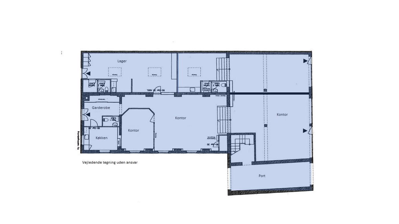
Lejemål til butik/kontor/klinik med en god planløsning i forskudte plan

Nu er det muligt at leje dette gode og synlige lejemål centralt i Roskilde. Tæt på stationen, butikker og det øvrige handelsliv i Roskilde.

Fra gaden kommer du ind i lejemålet til en flot butik/udstilling. Grundet lejemålets placering overfor et sydliggende grønt område med store træer, er der masser af lysindfald fra de store lydisolerede facadevinduer året rundt. Fra lejemålets forreste del bliver du ledt op ad nogle trapper til næste niveau, der ligeledes bruges til butik/udstilling, igen med godt lysindfald fra de store vinduer samt med yderligere store staldvinduer mod vest. Herefter kommer du til et godt møderum/kontor, garderobe/bagindgang/toilet og køkken. Fra det store åbne kontormiljø kan du komme ind i et tilstødende åbent lokale, der i dag bruges til lager.

Til lejemålet er det muligt at leje 2 stk. faste private parkeringspladser på bagsiden af huset. Derudover er det muligt at leje yderligere årlig parkering via Europark i et område, der er beliggende 20 meter fra lejemålet.

Kontakt Nordicals Sjælland P/S for yderligere oplysninger og aftale om fremvisning.

Læs mere

Vil du vide mere?

Tonny Olsen

ton@nordicals.dk

+45 2020 7268

Allehelgensgade 8 , 4000 Roskilde

+45 4635 2292

4000@nordicals.dk

Besøg vores mæglerside

Lignende ejendomme

Til top