Københavnsvej 196A
4000 Roskilde

Sagsnr. 11821210

Ejendomstype

Etageareal

Energiklasse

161 m²

D

Højloftet erhvervsejendom med port

Med absolut god beliggenhed direkte ved til- og frakørsel til Holbækmotorvejen udbydes nu mindre erhvervsejendom med i alt ca. 200 etage-m².

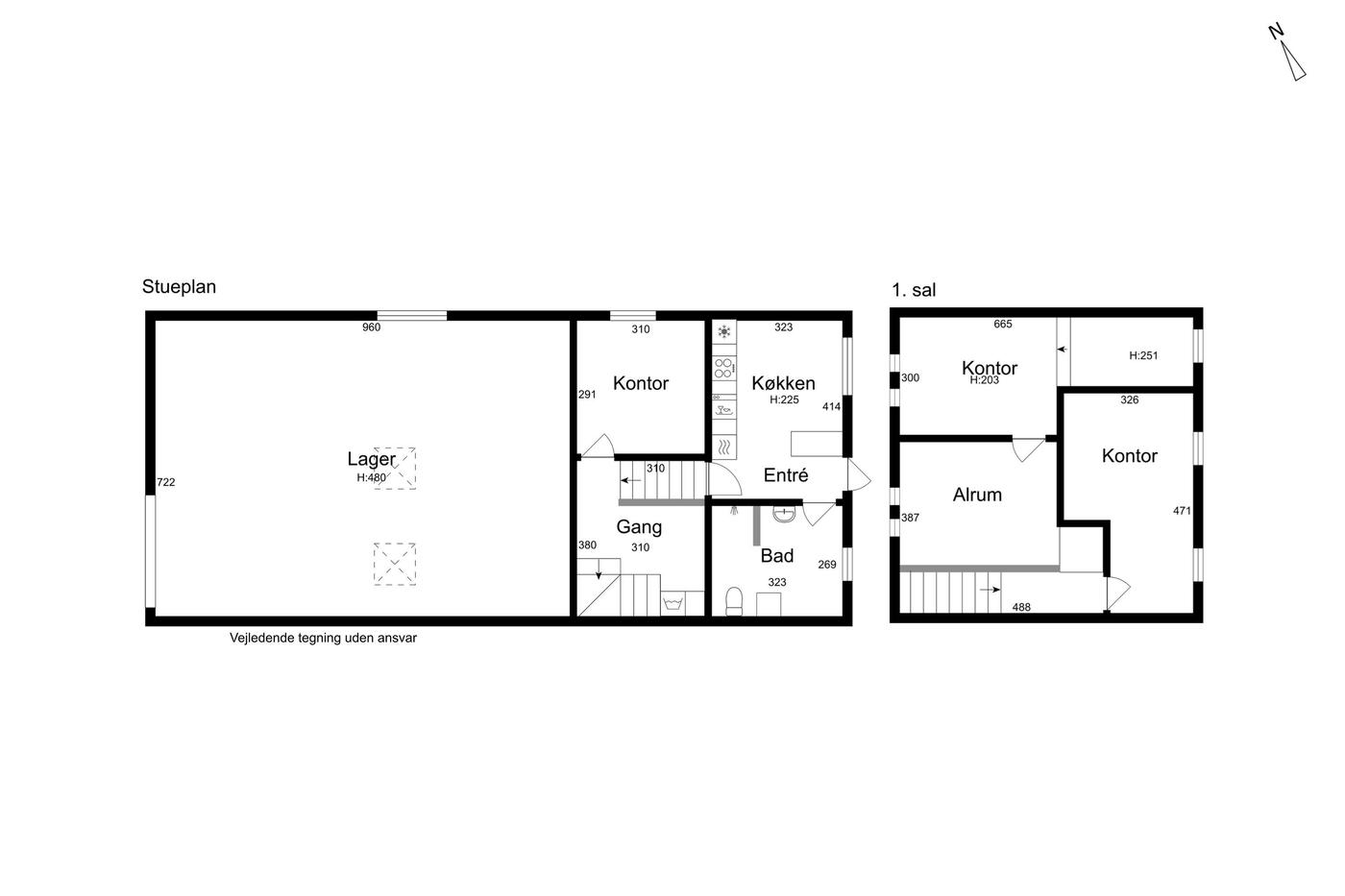
Ejendommen er opdelt i 3 erhvervsejerlejligheder, hvoraf ejerlejlighed nr. 1 udbydes her. Ejerlejlighedens BBR-areal er 161 m², og det tinglyste areal udgør 157 m².

Den udbudte ejerlejlighed indeholder indgangsparti med fordeling til badeværelse, køkken samt kontor, og på 1. salen (indskudt dæk) er etableret tre yderligere lokaler. Selve hallen er højloftet med støbt gulv, og med adgang via port med indbygget dør. I hallen er et indbygget toilet.

Ejendommen er opført som en box-ejendom i betonelementer, og hver ejer betaler egne driftsudgifter på ejendommen.

Anvendelig til mange typer virksomheder indenfor f.eks. håndværk, lager/logistik, webshop med lager, mindre produktion osv.

Ejendommen er tom, og kan købes med hurtig overtagelse.

Læs mere

Denne ejendom er solgt

Vil du vide mere?

Søren Mosbæk

smk@nordicals.dk

+45 2033 7733

Allehelgensgade 8 , 4000 Roskilde

+45 4635 2292

4000@nordicals.dk

Besøg vores mæglerside

Lignende ejendomme

Til top