Københavnsvej 170C
4000 Roskilde

Sagsnr. 20826039

Ejendomstype

Etageareal

Energiklasse

872 m²

D

Årlig leje

Leje pr. m²

Depositum

Årlig driftsudgift

Årlig driftsudgift pr. m²

654.000 kr.

750 kr.

327.000 kr.

15.000 kr.

17 kr.

Isoleret og opvarmet lejemål

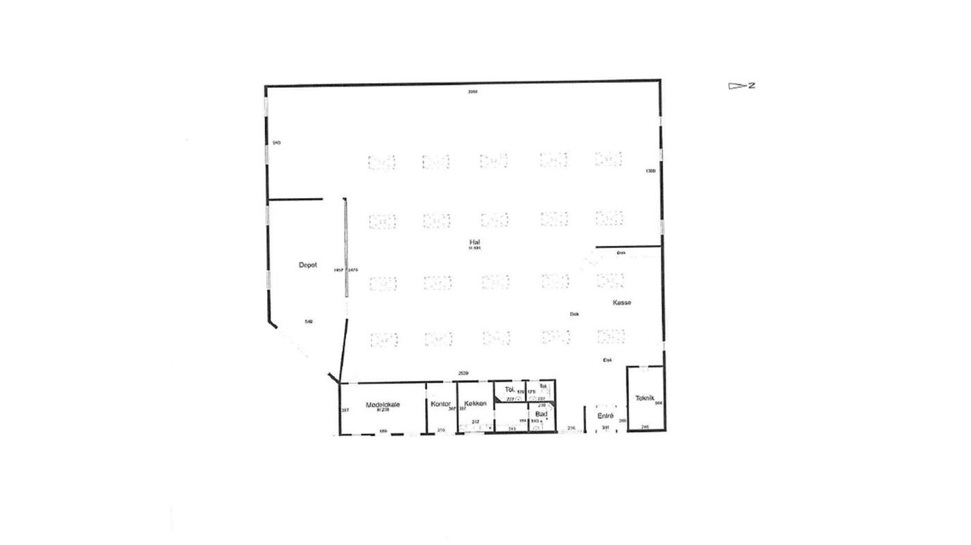
Lejemål til lager/produktion/værksted i Roskilde Øst.

Lejemålet ligger med indkørsel fra både Københavnsvej og Håndværkervej.

Du kommer ind i lejemålet via en enkeltdør eller dobbelt glasdør, og derfra videre en den store åbne hal med 5 meter til loft og betongulv. Der er en enkelt port med højde/brede på 4 meter. Der er yderligere kontor, køkken, mødelokale og toilet/bad.

Ejendommen er opbygget i betonelementer med ovenlysvinduer.

Grunden er belagt med fliser.



Udlejer ønsker ikke bilsalg eller autoværksted.

Læs mere

Vil du vide mere?

Tonny Olsen

ton@nordicals.dk

+45 2020 7268

Allehelgensgade 8 , 4000 Roskilde

+45 4635 2292

4000@nordicals.dk

Besøg vores mæglerside

Lignende ejendomme

Til top