Nørregade 43
4100 Ringsted

Sagsnr. 10S6058

Ejendomstype

Etageareal

Grund

Energiklasse

395 m²

881 m²

E

God investreingsejendom centralt i Ringsted

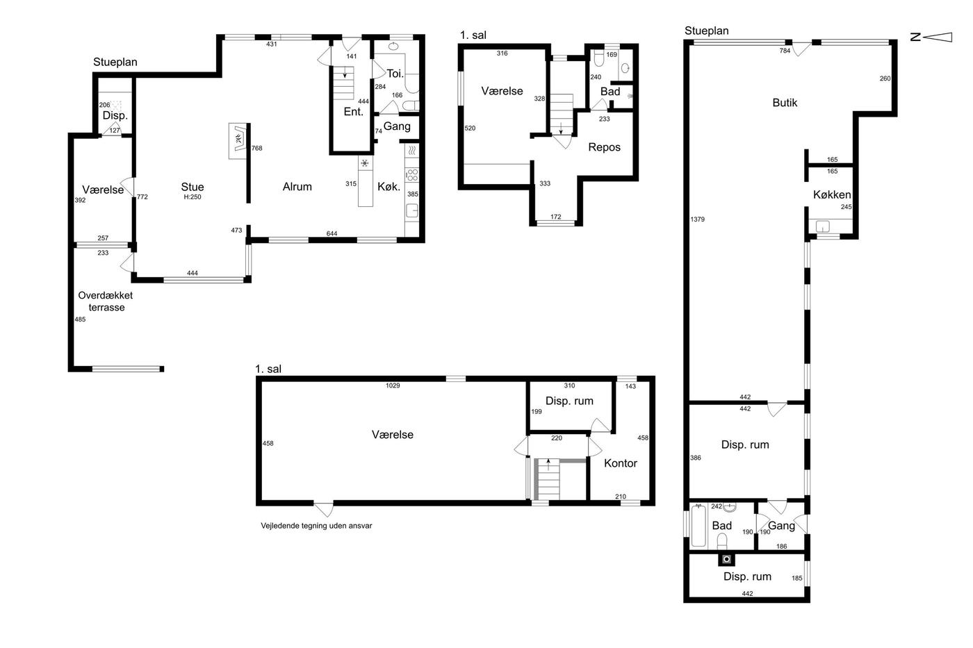
Ejendommen er beliggende på Nørregade - Ringsteds handelsgade, centralt i byen og fremstår generelt i pæn og præsentabel stand for såvel bolig som erhvervslejemålene - udvendigt med pudset og malet murværk, tegltag og termovinduer samt nyere fjernvarme anlæg.

Ejendommen består af to erhvervslejemål ud mod Nørregade, hvoraf det ene lejemål har udnyttede rum på første salen.
Fra overdækket port indgang er der adgang til et hyggeligt mindre gårdmiljø hvorfra der er adgang til boligdelen samt parkeringsmuligheder for lejerne.
Ud over erhvervslejemålene forefindes en velholdt bolig med egen have der ligger som en ugeneret oase midt i byen.

Læs mere

Denne ejendom er solgt

Vil du vide mere?

Christian S. Christiansen

chc@nordicals.dk

+45 3035 4212

Sorøvej 9A, 4200 Slagelse

+45 5850 1212

4200@nordicals.dk

Besøg vores mæglerside

Lignende ejendomme

Til top