Nørregade 13, 1.
4100 Ringsted

Sagsnr. 2017182

Ejendomstype

Etageareal

Grund

Energiklasse

620 m²

12.975 m²

D

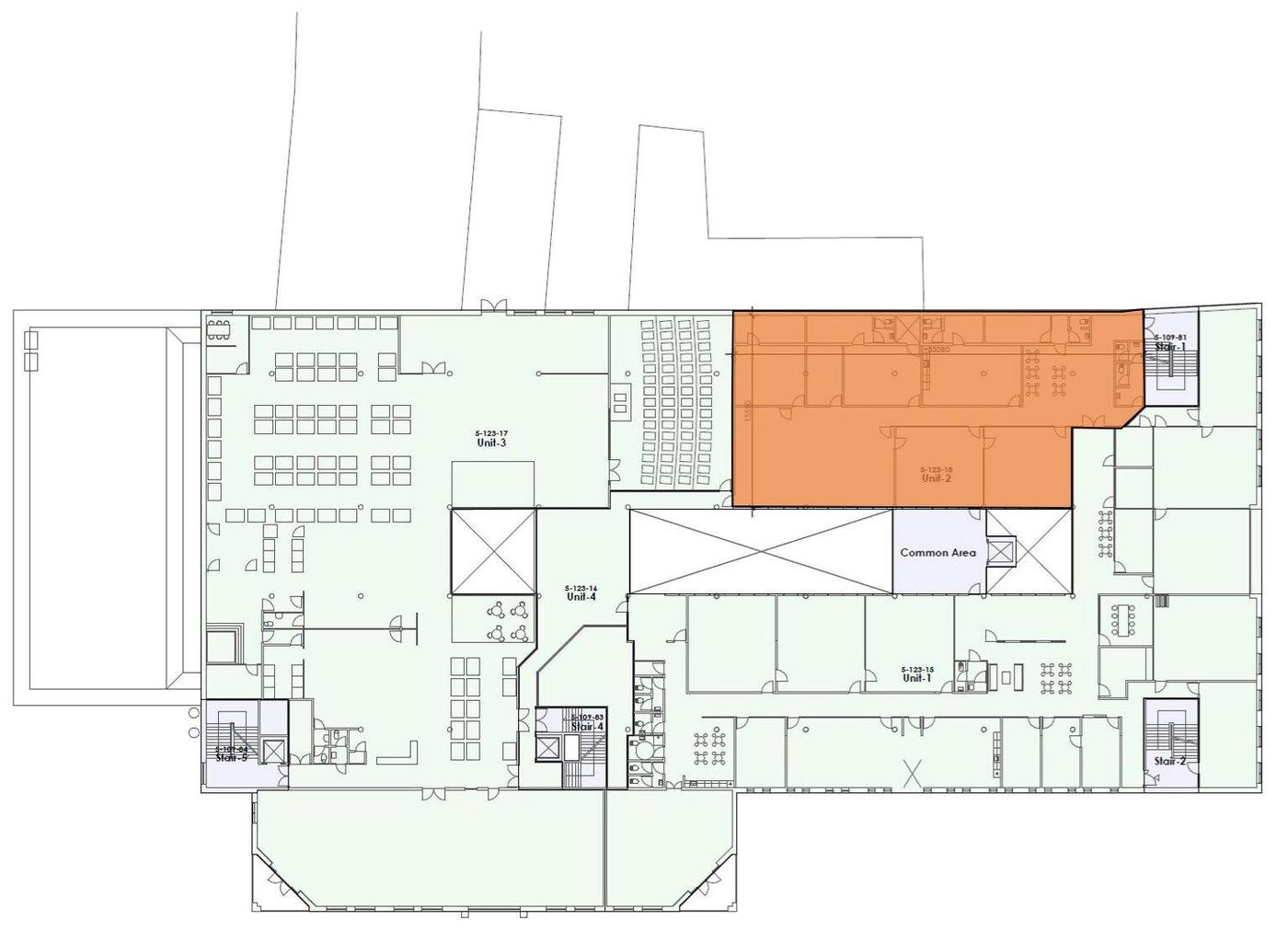
Kontor/klinik lejemål i Stakladen

Lejemålet er beliggende i større centerbebyggelse, helt centralt i Ringsted, og udgør et multianvendeligt kontor/klinik lejemål med en god kombination af kontor-/ møde-/ behandler rum med tilhørende køkken - og toilet faciliteter, mulighed for receptions-/venteområde m.v.

Elevator adgang fra centret sikrer endvidere gode adgangsforhold for gangbesværede.

Til ejendommen hører større P-plads med tidsbegrænsning samt mulighed for at leje særskilte P-pladser i ejendommens kælder.

Spændende centerbebyggelse under positiv udvikling.

Eventuel tilvirkning efter nærmere aftale med udlejer.

Læs mere

Denne ejendom er udlejet

Vil du vide mere?

Christian S. Christiansen

chc@nordicals.dk

+45 3035 4212

Sorøvej 9A, 4200 Slagelse

+45 5850 1212

4200@nordicals.dk

Besøg vores mæglerside

Lignende ejendomme

Til top