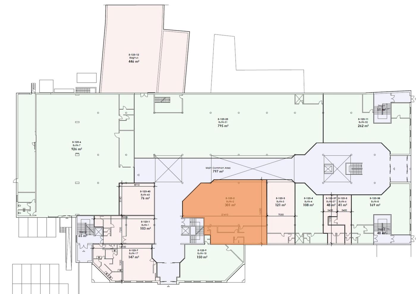
Nørregade 13, "Stakladen", butik nr. 2
4100 Ringsted

Sagsnr. 2018146

Ejendomstype

Etageareal

Grund

Energiklasse

376 m²

12.975 m²

C

Årlig leje

Leje pr. m²

Depositum

Årlig driftsudgift

Årlig driftsudgift pr. m²

263.200 kr.

700 kr.

131.600 kr.

60.536 kr.

161 kr.

Stort, regulært butikslokale

Lejemålet er beliggende som del af større centerbebyggelse i hjertet af Ringsted, omgivet af P-pladser og med mulighed for egen indgang.

Indvendigt udgøres det lejede af et godt og regulært butikslokale med tilhørende baglokale/kontor og toilet faciliteter m.v.
Lokalet er oplagt til mange former for detailhandel og kan evt. udvides

Eventuel tilvirkning efter nærmere aftale med udlejer.

Læs mere

Vil du vide mere?

Jesper Jensen

jje@nordicals.dk

+45 4055 1880

Sorøvej 9A, 4200 Slagelse

+45 5850 1212

4200@nordicals.dk

Besøg vores mæglerside

Lignende ejendomme

Til top